Proyecto, Progreso, Arquitectura. N31 (2024)

Arquitecturas para la industria

Noviembre 2024

ISSN 2171–6897 / ISSNe 2173–1616

© 2024. E. Universidad de Sevilla.

Creative Commons Attribution-NonCommercial-ShareAlike 4.0 International (CC BY-NC-SA 4.0)

LA FÁBRICA CLAUDE ET DUVAL DE LE CORBUSIER EN SAINT-DIÉ. UNA MÁQUINA PARA HUMANIZAR

LA FÁBRICA CLAUDE ET DUVAL DE LE CORBUSIER EN SAINT-DIÉ. UNA MÁQUINA PARA HUMANIZAR

Patricia de Diego Ruiz 0000-0003-0974-0016

Recepción: 15-10-2024. Aceptación: 18-11-2024

Cómo citar:

DE DIEGO RUIZ , Patricia. La fábrica Claude et Duval de Le Corbusier en Saint-Dié. Una máquina para humanizar. En: Proyecto, Progreso, Arquitectura. Sevilla: Editorial Universidad de Sevilla, noviembre 2024, nº 31 Arquitecturas para la industria, pp. 12-31. https://dx.doi.org/10.12795/ppa.2024.i31.01

RESUMEN A pesar del interés mostrado por Le Corbusier respecto a la industria y de ser la fábrica de Saint-Dié la única que logró construir, esta obra ha sido obviada en la mayor parte de las monografías y estudios del arquitecto; siendo, aún hoy, bastante desconocida.

La investigación estudia documental y analíticamente la fábrica para ahondar en su conocimiento, desvelar estrategias de su proceso creativo y situarla en el conjunto de la trayectoria global de su arquitecto en correspondencia con sus teorías sobre la actividad industrial y las ideas de “La Usine Verte”.

Esta manufactura textil marca un giro en la concepción de la arquitectura fabril de Le Corbusier. Revela una funcionalidad doméstica, cuyo control dimensional y técnico es ejecutado a la medida del hombre y el cuidado diseño de gran riqueza perceptiva que alberga, se enfoca en humanizar el entorno de trabajo. Destaca la estrategia urbana que aplica de apilamiento vertical, lo que, unido a una proto-conciencia ecológica, la sitúa, además, como un ejemplo valioso para el contexto actual de redefinición industrial.

PALABRAS CLAVE Fábrica Verde; arquitectura industrial; fábrica vertical; brise-soleil; policromía.

SUMMARY Despite the interest shown by Le Corbusier in industry and the fact that the Saint-Dié factory is the only one he managed to build, this work has been ignored in most of the monographs and studies of the architect, still being quite unknown even today.

The research focuses on the factory documentarily and analytically in order to gain deeper knowledge of it, reveal strategies of its creative process and place it in the overall trajectory of its architect in relation with his theories on industrial activity and the ideas of “La Usine Verte” (The Green Factory).

This textile manufacture marks a turning point in Le Corbusier’s conception of factory architecture. It reveals a domestic functionality, whose dimensional and technical control is executed at a human scale, and the careful design of great perceptive richness that it houses focuses on humanising the work environment. The urban strategy of vertical stacking stands out, which, together with an ecological proto-consciousness, also places it as a valuable example for the current context of industrial redefinition.

KEYWORDS Green Factory; industrial architecture; vertical factory; brise-soleil; polychromy.

INTRODUCCIÓN

El volumen 5 de la Obra Completa editada por William Boesinger comienza con la obra de la fábrica de Saint-Dié, presentada de una manera que induce a una serie de relaciones que no han sido suficientemente estudiadas. Una planta y una perspectiva del Plan de Le Corbusier del año 1945 para la reconstrucción de parte de la ciudad destruida en la Segunda Guerra Mundial, introducen al lector gráficamente en un planteamiento urbano de gran escala en el que encuadrar el proyecto de la fábrica. El texto refuerza este enfoque, destacando a esta pequeña fábrica como la única “llama pura[1] que permanece de aquel esfuerzo de concepción de una evolución posible en términos modernos para la ciudad francesa devastada. Se vincula, por tanto, esta fábrica con el área fabril del Plan ubicada en la franja al margen sur del río Le Meurthe (figura 1).

1. Plan para la reconstrucción del Centro Cívico de Saint-Dié con la zona industrial sobre la mancha gris (la parte de la ciudad no afectada por el bombardeo).

EL PENSAMIENTO DE LE CORBUSIER EN EL ÁMBITO INDUSTRIAL

Las principales ideas teóricas de Le Corbusier sobre la arquitectura y urbanismo industrial se concretan en el proyecto de “La Usine Verte”, realizado para el Ministerio de Armamento en la localidad de Moutiers-Rozeille, y en el planteamiento teórico de la estructura morfológica autosuficiente denominada “la ciudad industrial lineal”. Ambos quedaron sintetizados en el libro Les trois établissements humains[2] publicado en el año 1943.

La “ciudad industrial lineal” estaba en pleno campo, organizada a través de cuatro bandas paralelas: las vías de circulación de mercancías; el área recluida para fábricas; la autovía; y el espacio de residencia y equipamientos conformando los modernos poblados industriales. La disposición territorial se apoyaba en una materialización arquitectónica desarrollada por Le Corbusier años antes para el ministro de armamento Raoul Daforty como posible prototipo de edificación industrial (figura 2). La fábrica militar de cartuchos Aubusson de 3500 trabajadores fue paralizada definitivamente en la fase de cimentación en junio de 1940, al producirse la derrota de Francia en la guerra, pero Le Corbusier la presenta como “el pretexto para propuestas que podrían conducir a importantes reformas en la manera de construir establecimientos industriales y en el arte de proporcionar al trabajo condiciones favorables tanto para la explotación técnica como para el bienestar físico y moral de los trabajadores y del personal[3].

2. Diagrama de la ‘ciudad lineal industrial’ y perspectiva de ‘La Fábrica Verde’, la factoría militar Aubusson de 1940.

El análisis de esta propuesta nos lleva a interpretar que los principios de especialización taylorista y lineal fordista del ámbito industrial americano tienen una traslación arquitectónica consecuentemente reflejados en la división del proceso productivo en varias naves, según los materiales que transforman, y en el sentido lineal de dirección única que, a modo de cadena de trabajo, establece el recorrido productivo que las interrelaciona. Un nivel adicional de división ‘científica’ aplicado a los agentes que operan en la fábrica, explica que Le Corbusier plantee una segregación de los flujos de materiales y peatonales tanto en planta como en altura. El plano del suelo queda reservado para el transporte de mercancías y productos, mientras que la gran masa de obreros es disciplinalmente conducida por una red de pasajes tubulares elevados al nivel de las cubiertas, con escaleras que permiten el descenso hasta una entreplanta de vestuarios, para posteriormente bajar hasta el puesto de trabajo dentro de la nave. Todo el conjunto queda así diseñado como un complejo orden espacial a través de la mecanización de las circulaciones entendidas como circuitos de un engranaje tridimensional eficaz.

Un nuevo nivel de subclasificación se aplica al establecer diferentes tipologías asociadas a los dos grandes grupos de funciones para hacerlos claramente distinguibles. Los edificios de apoyo o auxiliares con preminencia de uso humano como la administración, control, comedores, servicios sociales o enfermería adoptan formas paralepipédicas con cubierta plana. Las edificaciones fabriles que conforman el corazón productivo que ocupa la mayor parte del complejo, son las grandes ‘salas de máquinas’, con configuración tradicional de nave rectangular con cubiertas en forma de dientes de sierra.

Esa iconografía industrial directamente asumida por Le Corbusier de estructura de hormigón, entrepaños de ladrillo y cerchas repetitivas, es alterada con la interrupción puntual de su opacidad lateral por ventanales para proporcionar vistas del entorno natural al operario. Asomarse para sentir el sol y reconectar con la naturaleza, figuradamente descansando del trabajo mecanizado (figura 3) es, por tanto, la condición sine qua non que el arquitecto define para alcanzar las nuevas condiciones de trabajo que considera propias de la segunda era mecanizada y del concepto de ‘fábrica verde’[4], cuyo valor principal sería “que el trabajo se realiza verdaderamente en condiciones naturales. Se tienen en cuenta el lugar, el sol, las perspectivas paisajísticas y una serie de factores sensibles[5].

3. Alzado y perspectiva interior de una de las naves de ‘La Fábrica Verde’.

LA FÁBRICA EN SAINT-DIÉ. UN EJEMPLO DE ARQUEOLOGÍA INDUSTRIAL

El rotundo rechazo al plan de Saint-Dié por parte de las autoridades locales y de las asociaciones vecinales y de damnificados, generó una realidad más compleja en la que el arquitecto suizo habría de operar para reconstruir la fábrica de la familia Duval. Bombardeos y un incendio provocado por los alemanes durante la ocupación, ocasionó la destrucción parcial de varias de sus naves dejando inoperativa la producción. Le Corbusier planteó inicialmente el traslado a otro solar más favorable, pero, dado el daño limitado sufrido, el Ministerio de Reconstrucción señaló como inevitable la localización de la nueva fábrica en la misma parcela si se quería hacer uso de la indemnización oficial. Las restricciones económicas y la escasez de materiales obligaron a una actuación en dos fases. La primera de ellas urgía a acondicionar las partes no dañadas y a reactivar con la mínima intervención de nuevo la actividad. Se generaba de este modo un contexto completamente alejado del escenario ideal ex novo, amplio y paisajístico de los entornos fabriles teóricos corbusieranos, para trasladarle a una casuística de operación de acupuntura urbana, bajo un planteamiento que hoy podríamos denominar como de arqueología industrial.

La calcetería Claude y Duval fue fundada por Paul Duval en el año 1909 en Saint-Dié, ciudad que llegó a ser uno de los principales nodos de la producción textil francesa a lo largo del siglo pasado. Fue construida en un solar privilegiado en cuanto a su ubicación, cercano a la catedral, entonces importante iglesia abadial, y casi en continuación también del principal eje urbano de la ciudad denominado la Rue Thiers (figura 4). La parcela presentaba una forma irregular, delimitada al norte por la calle Cȏte Callot, desde donde se producía la descarga de materias, y lindaba al sur con el arroyo Robache[6] (figura 5). La disposición de la fábrica se articulaba en sencillos volúmenes yuxtapuestos de muros de fábrica y estructura metálica que concatenaban cubiertas a dos aguas, o en dientes de sierra con apertura acristalada al norte puntualmente. La actividad del conjunto se dividía en dos etapas diferenciadas y que podían operar de manera individualizada: la elaboración de bobinas de tejido y la confección de prendas de ropa[7].

4. Plano de situación de la fábrica textil Claude y Duval.

5. Estadios de reconstrucción de la fábrica Claude y Duval.

Le Corbusier se hará cargo con su estudio ATBAT[8] de la reconstrucción que incluirá una ampliación. Para ello los Duval adquirieron dos parcelas adicionales al norte y al sur ubicadas a ambos lados de los edificios remanentes (figura 5). La urgencia por recuperar cuanto antes la marcha de la fábrica derivó en que la primera fase se concretara en el reacondicionamiento de las naves traseras que permanecían como área conjunta para calcetería y taller de confección, en la reconstrucción temporal del pequeño resto en pie del bloque original de oficinas y en la construcción de una edificación temporal en una de las parcelas adquiridas. Todo ello permitió recuperar ya en junio de 1945 el 30% de la producción, y mitigar, en parte, la inusual dilación que conllevó la reconstrucción total hasta el año 1951.

Para la segunda fase de la reconstrucción, fue acordado diseñar un nuevo edificio lineal que recogiera el total de la actividad de confección y, así, volver a destinar posteriormente las naves preexistentes a la primera etapa de fabricación de bobinas de telas. Se buscaba lograr doblar la producción, y dado que la sección de confección suponía por sí sola alrededor del 67% del personal y el 60% del espacio requerido, la concentración en el nuevo edificio satisfacía a ambas partes. La explicación detallada del funcionamiento interno de los dos ciclos de fabricación junto con unos datos generales de dimensionamiento aportados por la propiedad a mediados de 1946, fueron el punto de partida sobre el que el estudio ATBAT desarrolló un esquema de organización interno de superficies[9] e interrelaciones entre las diversas actividades productivas que atañían a la confección de ropa que usan como base para el diseño.

La secuencia lineal descendente de los dos ciclos de producción era mantenida, pero se buscaba distinguir los mismos a nivel volumétrico, clarificando con ello la organización global e imponer un orden claro a la tendencia de los entornos fabriles de ir añadiendo pequeños cobertizos o pabellones de manera acumulativa según necesidades. El apego familiar con la historia de su empresa motivó a los Duval a requerir a ATBAT que no ocupara todo el solar, para preservar el carácter del lugar, y que se hiciera coincidir el extremo noreste del bloque lineal del anteproyecto con la esquina del resto que había quedado en pie del edifico de oficinas original (figuras 5 y 6). Se manifiesta así la voluntad de dar una cierta continuidad a la memoria con el levantamiento de lo nuevo precisamente sobre la huella de lo antiguo. Actitud que Le Corbusier hace suya reubicando, además, las nuevas salas técnicas en el mismo lugar de los restos bombardeados del sótano tras proceder a su acondicionamiento.

6. Extremo sureste del edificio de confección sobre la huella del resto del bloque antiguo de oficinas original. Continuidad histórica y ecos en la materialidad.

UN NUEVO ORDEN PARA LA FÁBRICA ‘URBANA’

La existencia de varios bocetos demuestra que la idea primigenia manejada era proyectar una fábrica vertical, con tanteos previos de un bloque compacto cuadrado o rectangular de hasta seis niveles[10], y que finalmente quedó acotado a un bloque lineal de tres plantas de aproximadamente 80 m de largo por 12,5 m de crujía con una cuarta planta parcial para oficinas y azotea (figura 7).

7. Planta baja con acceso, vestuarios y vivienda del conserje. Planta primera, planta tercera con galería y planta cuarta.

La propuesta supone un cambio radical en el planteamiento de la distribución funcional de la fábrica por elementos como naves aisladas y conectadas en horizontal que Le Corbusier venía defendiendo, hacia una estructura compacta por apilamiento con organización de actividades secuencial descendente. En este giro de la arquitectura industrial corbusierana hacia el desarrollo de la cadena productiva internamente de un único edificio y en sentido vertical, destaca especialmente[11] como referente la fábrica de tabaco Van Nelle de Brinckman y Van der Vlugt, visitada por Le Corbusier en la década de los treinta. Su elogio entusiasta de la modernidad y bienestar de sus espacios de trabajo, y las coincidencias que presenta con esta manufactura en el recorrido fabril descendente, la ubicación de un espacio a doble altura orientado a norte o la escalera de caracol de conexión interna, parecen refrendarlo[12].

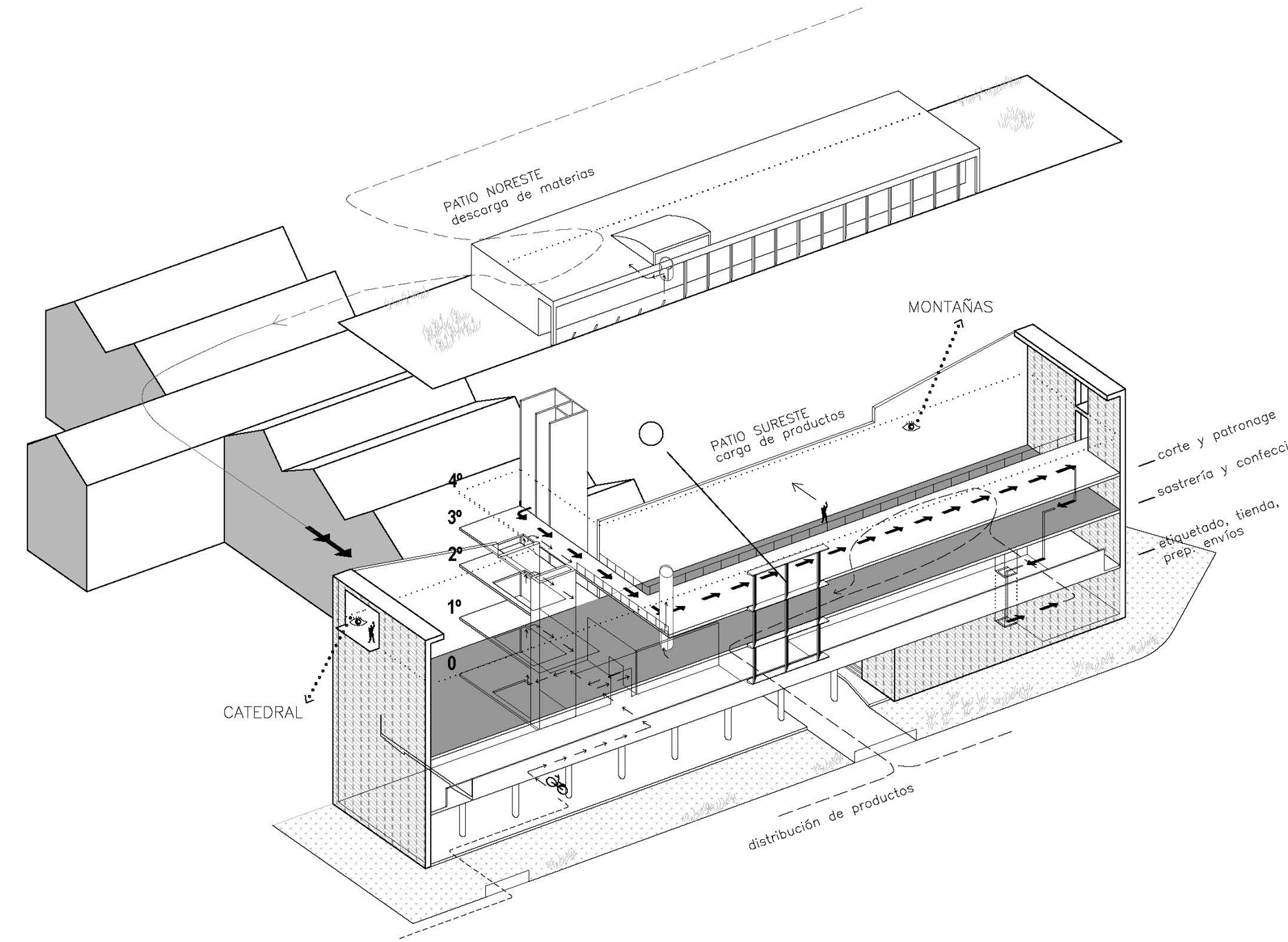
El reconocimiento de la eficacia del pensamiento fordista por parte de Le Corbusier queda patente en su explicación de la génesis de ‘La Fábrica Verde’: “La ‘cadena’ califica, en efecto, un verdadero sistema impuesto a las fabricaciones para intentar la parcelación de todas las etapas[13]. Una aplicación consecuente se rastrea en la estructuración organizativa del programa para Claude y Duval segregada por plantas con distintas alturas según sus funciones. Las bobinas manufacturadas en el primer proceso que se destinan al segundo de confección de ropa son alojadas en la primera planta de un volumen intermedio, que hace de nexo y articula la transición del conglomerado de naves de dientes de sierra preexistentes con el nuevo bloque lineal transversal (figuras 5 y 8). Desde este nivel las mismas se trasladan a través del gran montacargas del bloque de circulaciones al área de corte situado en la galería de la planta tercera y descienden al taller de sastrería de doble altura de la planta segunda. Las piezas cosidas se clasifican y almacenan posteriormente en la planta primera donde, desde el área de tienda colindante a nivel, se empaquetan y preparan los envíos que bajan por un pequeño ascensor a la planta baja para ser distribuidos en el muelle de carga (figuras 8 y 9).

8. Sección por bloque de circulaciones y volumen de nexo con almacenamiento de bobinas en planta primera.

9. Dibujo en axonométrica del conjunto de la fábrica Claude y Duval.

Mientras el circuito de materiales y productos se realiza por medio de elevadores mecánicos y un tobogán, ya desaparecido, los tránsitos de personas fueron pensad

os inicialmente como exclusivamente peatonales, en consonancia con el pensamiento del arquitecto suizo de estimular el ejercicio físico como contrapunto al sedentarismo creciente. Los Duval exigieron la colocación de un ascensor para el personal y visitantes, que se situó yuxtapuesto al gran montacargas. La secuencia de acceso ideada para los trabajadores en la fábrica de Aubusson permanece en esta obra, con el progresivo aparcamiento de su medio de transporte (bicicletas y motos alojadas bajo el inmueble), acceso desde la entrada a los vestuarios colindantes en la planta baja, ascenso hasta su nivel correspondiente, y previo paso por los aseos, ubicación en el puesto de trabajo. En la fábrica Claude et Duval se aborda la organización mediante el entretejido preciso de su programa donde el itinerario “reproduce las fases de un circuito sanguíneo, o nervioso, en el cuerpo de un ser organizado[14] (figura 9).

El siguiente salto cualitativo importante que introduce esta obra frente a los proyectos de arquitectura fabril previos de Le Corbusier se concreta en la alteración del asentamiento del edificio industrial. Los distintos ejemplos anteriores reflejan un firme contacto con el terreno. Esta disposición parece descansar en la lógica de la mayor facilidad del tránsito de materias que permite y en la economía de la transmisión del peso de las máquinas al terreno. Sin embargo, la moderada envergadura de la maquinaria que necesitaba la fábrica textil de los Duval y el desnivel entre ambos extremos de la parcela permite plantear al arquitecto una inversión en relación con el plano del suelo. La fábrica se eleva ahora sobre pilotis en un gesto moderno (figura 10). La epopeya de un plano verde continuo permitiendo el paso bajo los edificios en las zonas residenciales y de usos públicos visionado para sus ciudades modernas se traslada también al ámbito industrial en esta pequeña fábrica.

10. Imagen de Lucien Hervé de la fábrica desde la calle que cubre el arroyo Robache.

La traslación rehúye la simple suspensión del bloque sobre columnas. El diseño del suelo alberga pequeñas complejidades en su topografía y materialidad que delimitan las zonas de aparcamiento, los movimientos de los flujos de trabajadores, de vehículos y el acceso a la vivienda del conserje por medio de variaciones del nivel con podios reducidos, de pistas de cemento al nivel de la calle o de escalones respectivamente. La secuencia de pilares en la planta baja no es homogénea y abierta por todos sus lados al paisaje, sino que se encuentra ‘contaminada’ por potentes planos que descienden hasta el suelo construidos con piedra arenisca rosada de los Vosgos recuperada de los bombardeos en la ciudad. Previamente, Le Corbusier había planteado el uso de material de demoliciones, como en las Casas Murondins, de 1940, pero Enmanuel Rubio[15] detecta en esta reutilización una ‘estética de la ruina’ naciente en Le Corbusier que enlazaría con la corriente existencialista de posguerra. Gargiani y Rossellini[16] abundan en el detalle de su aparejo y los comparan con el muro del Pavillon Suisse de la Ciudad Universitaria de París, pero manteniendo la misma materialidad y cuidado rejuntado en su aparejo, el rol que juegan en la configuración del espacio de planta baja los distingue claramente. En la residencia estudiantil el muro de mampostería oculta su apoyo en recesión, lo que le otorga una cualidad abstracta como lienzo, al tiempo que, mediante su curvatura, conduce dinámicamente la fluidez del movimiento bajo el edificio. Los dos muros de hastiales de la fábrica Claude y Duval, por el contrario, parten claramente del suelo, comunican una misión portante y anclan el bloque y el espacio bajo el mismo al terreno. Son paramentos que introducen la construcción tradicional “reservada para el simbólico ‘muro diplomático’ de mampostería”[17] como alianza con el lugar.

Le Corbusier los usa también para ocultar la casuística formal de las edificaciones circundantes y conducir la mirada al jardín meridional junto al Robache; intención reforzada mediante el uso del recrecido inclinado bajo el forjado en la planta baja que actúa como marco visual (figura 11 y 13). La entrada a la fábrica configura el tercer plano que construye visualmente el espacio bajo el bloque como una antesala comunal al aire libre. En ella, Le Corbusier dispone unos bancos y un reloj colgado del techo para control del tiempo de descanso. La presencia de la secuencia trasera de naves preexistentes queda silenciada en este espacio mediante la interposición de un muro construido con baldosas de acera también recuperadas del bombardeo. Al ser estas también de la misma piedra rosada de Vosgos, se establece claramente un diálogo material con los hastiales. Este muro enmarca, junto con el tabique técnico que unifica las conducciones en el extremo contrario, un amplio panel de vidrio que deja traslucir desde el espacio bajo pilotis el vestíbulo de acceso a la fábrica con el control de asistencia. En consonancia con la preocupación del arquitecto por mantener el orden y transmitir civismo en los entornos fabriles, la casa del conserje opera como una fachada urbana que coloniza la ‘libre’ planta baja para delimitar el espacio trasero del patio sureste de carga de productos, haciendo su posible desorden inaccesible a las miradas de los transeúntes con la interposición de su masa (figuras 8 y 9).

11. Antesala bajo los pilotis con la entrada a la fábrica, enmarcando el paisaje con la inclinación del techo.

13. Detalle del parasoles y carpinterías con distintas modulaciones. Sección transversal con la doble altura del taller de sastrería.

En su anhelo por dotar al espacio de trabajo de sol y perspectivas paisajísticas, se plantea el bloque que acoge el ciclo de confección con sus dos fachadas longitudinales completamente acristaladas. No en vano, la reconexión con el medio circundante, así como una conciencia del paso del tiempo y de la secuencia del ciclo solar, eran también condiciones necesarias según la visión cosmogónica corbusierana. Pero para estos años el arquitecto ya había sufrido el escarnio[18] del uso no mediatizado del pan-de-verre, y mostraba su reticencia al uso indiscriminado de inmensas extensiones de vidrio y de planos de luz artificial de muchos edificios fabriles americanos, reflexionando que “la luz baja de los techos o de grandes ventanales, provoca temperaturas frías o calientes según la estación[19]. Consecuentemente, el brise-soleil fue parte integrante de la fachada sureste a la calle Robache desde el inicio, y el primero realmente diseñado y ejecutado de su trayectoria. Este ‘órgano arquitectónico’, como gustaba denominarlo Le Corbusier, lograba cumplir el objetivo de alcanzar una intensidad lumínica adecuada, lo más constante posible, y minimizaba los contrastes excesivos para la labor precisa de costura, al tiempo que matizaba la incidencia solar directa al controlar la entrada de calor[20].

En su voluntad de lograr el mejor confort térmico para los trabajadores, este edificio incorpora otro de los postulados defendidos como propios de la nueva era mecanizada: la ‘máquina de aire exacto’. Un sistema de climatización diseñado por la empresa NEU[21] acondiciona térmicamente la fábrica mediante impulsión de aire caliente o frío, según la temporada, dividiendo el sistema en dos grupos, de manera que se proporcionen diferentes temperaturas a varios espacios de manera independizada. Siguiendo criterios higienistas, el aire se recircula de manera constante con aporte del exterior[22] y la instalación de unos intercambiadores permite la recuperación de calor, de modo que el aire mecanizado permanece renovado y filtrado de posibles partículas nocivas garantizando el bienestar de trabajadores y minimizando su coste. Se permite también la ventilación natural, mediante la apertura seleccionada de ventanas y, por supuesto, mediante el acceso a la antesala bajo los pilotis o a la azotea (figura 12) para sentir el clima y el contacto con la naturaleza. En la terraza de cubierta se disponen grandes jardineras y el agua de lluvia que cae sobre la misma es recogida a través de bajantes que atraviesan todo el volumen interno del bloque, comunicando su función de conducir las aguas, hasta el nivel de sótano para... verterlo al arroyo que discurre oculto.

12. Espacio de la azotea con grandes jardineras y techumbres que encuadran la naturaleza y la visión de la catedral.

La consecución de un ser organizado eficiente en su distribución, con un ambiente técnicamente salubre, de confort lumínico y térmico adecuado, y que permite, además, el visionado de las influencias cósmicas, no resulta suficiente para caracterizar el ambiente de trabajo donde se produce ese ‘lapso de la vida que ocupa la parte más vasta de la misma’[23]. Le Corbusier se pregunta retóricamente: “¿Es del todo necesario o hasta posible, poner en juego, en la dura vida del trabajo cotidiano, elementos de distracción, cuando no la introducción en el implacable rigor del trabajo moderno, de factores de distensión o, más todavía, introducir la alegría de vivir mediante disposiciones precisas y premeditadas?[24].

La búsqueda de una variedad espacial y la intermediación de una riqueza plástica que cualifique el espacio y excite la mirada, para alejarla del tedio de la tarea mecanizada y repetitiva, conducen a Le Corbusier a realizar una singular y elaborada configuración de cada una de las superficies en esta fábrica. La aplicación del Modulor a la estructura, al brise-soleil y a las particiones de las fachadas, se realiza con tres secuencias numéricas autónomas pero sincronizadas para configurar una sinfonía perceptiva[25] (figura 13). Klinhamer[26] encuentra en la aplicación de pigmentos primarios y neutrales combinados en varias superficies de esta fábrica, el uso de las mismas proporciones matemáticas para generar así una ‘cuarta voz’ que interactúa con la musicalidad de los otros ritmos en perfecta armonía. Lo que está fuera de duda es el papel protagonista otorgado al color en la fábrica Claude y Duval. A la cadencia fija de los tres elementos permanentes mencionados que definen el “juego de sutileza casi musical: un contrapunto y una fuga al ritmo del ‘Modulor’[27], se suma la vibración variable del espacio por medio de su cualificación con tonalidades intensas. Las instalaciones vistas pintadas en gamas brillantes complementan a un patrón de color fragmentado superpuesto en áreas concretas de paredes y techos. El trabajador percibe, así, transiciones, diversas pautas y áreas acentuadas para evitar la monotonía del ambiente.

Le Corbusier hablaba del rol emocional que el muro de mampostería existente en su estudio, equivalente al de los hastiales de esta fábrica; representaba para él: “La piedra nos habla; se comunica con nosotros a través del muro. Su superficie es rugosa pero suave al tacto. Este muro se ha convertido en una compañía a lo largo de mi vida[28]. El protagonismo otorgado a estos frontispicios de mampostería como elementos estructuralmente portantes que elevan los talleres de confección de manera monolítica, evocan con su gesto heroico la metáfora del ave fénix; el simbolismo de la reconstrucción de la nueva fábrica como triunfo ante la barbarie alemana[29] (figura 13). Sbriglio ha detectado un valor simbólico adicional en el uso de la mampostería por parte del arquitecto suizo, al interpretar el muro de su estudio en París como expresión de la relación entre el arquitecto-artista y las técnicas y materiales que usa[30]. La decisión de dejar expuesta la materialidad de los muros hastiales y de usar la potencia de su plástica como telones de fondo en este espacio longitudinal fabril, denota un distanciamiento de Le Corbusier con la estética de la máquina tras la guerra. La síntesis expresada por contraposición del pan-de-verre con el muro de mampostería representa una reconciliación entre la técnica mecanizada moderna y la tradición constructiva material y cultural.

El espacio a doble altura en la planta segunda del nuevo bloque, donde se disponen el mayor número de trabajadores en la cadena de confección y de toda la fábrica como conjunto, adquiere un estatus representativo y espacial equivalente al existente en los ejemplos residenciales corbusieranos. Para él se diseñan carpinterías de madera fabricadas ex profeso y en variedad formal, en vez de usar ventanas metálicas idénticas y en secuencia repetitiva. Con ello, los pan-de-verre estandarizados ejecutados para los bloques residenciales colectivos la Cité Refugé o el Pavillon Suisse, de apariencia lisa y continua, evolucionan aquí hacia una envolvente gruesa, de varias capas y de textura rítmica. Las cortinas se instalan adicionalmente como un último filtro de la fachada que permite controlar a voluntad individual la incidencia solar. Al ser de diversas tonalidades, su manipulación aleatoria introduce un dinamismo de color variable que contribuye como animación material. Con todo ello, queda articulada una síntesis compleja en las superficies que contribuye a una nueva definición ambiental de esta zona singular dentro de la fábrica. El espacio de sastrería se percibe con un carácter cercano y casero, casi como un ‘salón doméstico familiar’ (figura 14).

14. Paralelismos entre la sala a doble altura del taller de sastrería y el apartamento-estudio de Le Corbusier en París.

La planta de oficinas se conecta directamente con la azotea ajardinada y con la producción por medio de una escalera de caracol ubicada en un vestíbulo que actúa como sala de espera; donde el mobiliario individual y reconfigurable induce el uso informal y espontáneo del área, y que recibe claridad de manera indirecta a través de un saliente curvo en techo por el que se fuerza a la luz a deslizarse provocando un efecto relajante e íntimo[31] (figura 15). Aquí se persigue también una calidad doméstica con la ubicación de grandes reproducciones fotográficas en blanco y negro de cuadros de Le Corbusier a modo de tapices modernos y mediante el profuso uso del color y maderas en revestimientos que se extienden a las oficinas. El cuidado diseño de los despachos y del mobiliario[32] aporta adicionalmente una nota de calidad y de fantasía a los habitualmente fríos entornos fabriles.

15. Imágenes contemporáneas del vestíbulo de espera con la escalera de caracol y zona de oficinas en planta cuarta.

LA DOMESTICACIÓN DE LA FÁBRICA

En conclusión, el Plan de Saint-Dié refleja un giro en el pensamiento del urbanismo industrial de Le Corbusier. ”La ciudad industrial lineal” de hasta 100 km, aislada de la ciudad de intercambios, da paso a un planteamiento conjunto de ambas unidades coordinado y en situación de proximidad, con el plano continuo de tránsito peatonal distendido que se extiende también al área industrial. Sus edificios fabriles presentan una nueva caracterización formal con cubierta plana y limitadas naves de dientes de sierra yuxtapuestas, preconizando parcialmente la solución adoptada para la fábrica Claude y Duval.

Si la Unidad de Habitación de Marsella realiza el sueño de ‘la máquina de habitar’ colectiva, diseñada reiterativamente hasta haber logrado una primera consecución coherente en el año 1952, la fábrica de Saint-Dié se aleja del modelo formal diseñado por Le Corbusier en 1940 para Aubusson como prototipo La Usine Verte. Un nuevo arquetipo fabril compacto es desarrollado para experimentar, disruptivamente, con la cadena funcional lineal en sentido vertical en su mejor adaptación al contexto urbano. Con una reactivación de esas ‘estructuras profundas’[33] que Curtis explica como latentes en el pensamiento de Le Corbusier y susceptibles de ser acomodadas a diferentes funciones, el organismo tripartito aplicado previamente a la vivienda y edificación institucional —edificio sobre pilotis, cuerpo funcional y terraza-jardín— se incorpora para la redefinición del modelo industrial y de su iconografía moderna[34]. Las nociones ambientales y de garantía de un buen entorno de trabajo del ideal genérico de ‘fábrica verde’ permanecen, y son parámetros fundamentales en la concepción de la renovada calcetería. El edificio genera paisaje en una trama urbana maximizando el espacio circundante con sus retranqueos, naturalizando el plano del suelo con la elevación del volumen para generar transparencias e incorporar elementos vegetales junto a la calle principal, y disponiendo un jardín suspendido en la azotea con elementos de recorte y encuadre desde donde divisar el paisaje periférico.

La eficacia de la organización lineal de sentido único de la producción de confección que se asume en el proyecto no implica el plegado de Le Corbusier a la mera funcionalidad habitual en la arquitectura industrial y una renuncia a la exploración de su espacio como ‘hecho plástico’. En una continua experimentación de su recherche patiente, existe en la manufactura Claude y Duval una novedosa vocación clara de coordinar la vastedad propia del volumen de la ‘sala de máquinas’ a la escala del hombre mediante el control dimensional del Modulor, y con el establecimiento de un entramado de relaciones sensoriales. Esos factores sensibles se potencian con fachadas acristaladas que permiten el seguimiento del ciclo solar y las perspectivas lejanas, así como con la dotación de zonas de estancia bajo los pilotis y en la azotea como áreas para la distensión que aseguren el bienestar físico y moral durante el periodo de trabajo. Le Corbusier desplaza al mundo de la fábrica el uso del color como activador espacial y el contraste de materiales cálidos, no sintéticos ni industrializados, que le alejan de su previa asimilación de la arquitectura fabril como objeto tipificado, de naturaleza repetitiva y materialidad mecánica estandarizada. En consonancia con la ‘dislocación de conceptos’ de su proceso creativo señalada por Colquhoun[35], en la fábrica Claude y Duval encontramos numerosas ‘transferencias domésticas’ de elementos empleados en ámbitos residenciales previos, compartidos con la Unité de Marsella[36] ejecutada en paralelo, y especialmente de su apartamento en París[37]. Todos ellos actúan como dispositivos que permiten construir una percepción casi familiar de la fábrica y estimular un sentido de apropiación de su espacio en el trabajador.

Con este proyecto Le Corbusier inaugura un periodo de madurez donde el dogmatismo se flexibiliza y muestra su capacidad de adaptación a los condicionantes específicos climáticos, culturales y de posguerra. La irrupción de una proto-conciencia ecológica se evidencia en el uso de restos materiales del bombardeo y en el aprovechamiento del sótano que, más allá de la consideración de ahorro, activan la reutilización poética y simbólica del residuo como conexión con el pasado. En el ámbito técnico, la captación y reconducción del agua, la recuperación de calor en la climatización, la potenciación de la luz natural y los controles pasivos, refuerzan dicha actitud. Se transciende, así, el objetivo de aportar un ambiente salubre y bien iluminado, construyendo Le Corbusier una verdadera ‘máquina para humanizar’ que pretende transmitir la alegría de vivir en el entorno de trabajo y, de alguna manera, domesticar la fábrica.

Este edificio es pionero en estrategias de rehabilitación y reciclaje industrial y, al tiempo, se erige como destacado patrimonio arquitectónico ‘vivo’ al subsistir en su uso como fábrica de ropa y escuela de moda[38], haciendo perdurar la memoria productiva textil de la ciudad frente a los procesos generalizados de desindustrialización y deslocalización. El nuevo arquetipo de ‘fábrica vertical’ puede, además, contribuir a dar forma al pensamiento y sensibilidad de nuestra época, y revelarse como estrategia conveniente para una posible reindustrialización compatible dentro del ámbito urbano en la próxima época de industrialización que ya se avecina.

Biografía de la autora

Patricia de Diego Ruiz (Madrid 1975) Prof. Ayudante Doctor de Proyectos Arquitectónicos de la Escuela de Arquitectura Superior de la Universidad de Alcalá de Henares. Doctorado Internacional en Proyectos Arquitectónicos por la Universidad Politécnica de Madrid con calificación de Sobresaliente cum laude. Becaria FPI y estancia internacional de investigación en Gran Bretaña. Antiguo miembro del GIPC-UPM y actual miembro de de los Grupos de Investigación ‘Arquitectura, Historia, Ciudad y Paisaje’ y ‘Proyecto y materiales de arquitectura’ de la UAH.

Investigadora en varios Proyectos I+D. Ha publicado en revistas como En Blanco, Cuaderno de Proyectos Arquitectónicos, PpA, Colecciones de la Universidad de Deusto y escrito capítulos en libros varios.

Bibliografía

BOESINGER, W., ed. Manufacture de St-Dié, 1946-1951. En: Le Corbusier. Oeuvre complète. Volume 5: 1946-1952. Basel: Birkhäuser, 2013 [1953], pp.12-23.

BOESINGER, W., ed. Urbanisation de Saint-Dié. En: Le Corbusier. Oeuvre complète. Volume 4: 1938-1946. Basel: Birkhäuser, 2013 [1946], pp. 132-139.

BOESINGER, W., ed. La Citté linéaire industrielle. En: Le Corbusier. Œvre complète. Volume 4. 1938-46. Basel: Birkhäuser, 2013 [1946], pp. 72-75.

BOESINGER, W., ed. L’Usine Verte. En: Le Corbusier. Oeuuvre complète. Volume 4: 1938-1946. Basel: Birkhäuser, 2013 [1946], pp. 76-79.

CURTIS, William J.R. Le Corbusier. Ideas and Forms. Nueva York: Phaidon, 2015 [1986]. ISBN 9780714868943.

COLQUHOUN, Alan. Desplazamiento de conceptos en Le Corbusier. En: Arquitectura moderna y cambio histórico. Barcelona: Gustavo Gili, 1978. (Publicación original: Displacements of Concepts in Le Corbusier. En: Architectural Design. London: A.D. Editions, 1972, n.º 43).

COVA MORILLO-VELARDE, Miguel Ángel de la. El agua y el caracol. Atmósferas adiabáticas a través de las maquetas de las villas à la mode tropicale de Le Corbusier. En: Proyecto, Progreso, Arquitectura. Arquitecturas para tiempos cálidos [en línea]. Sevilla: Editorial Universidad de Sevilla, 2021, n.º 26, pp. 48-65 [consulta: 30-09-2024]. ISSN-e 2173-1616. DOI: https://doi.org/10.12795/ppa.2022.i26.03.

DÍAZ SEGURA, Alfonso; MOCHOLÍ FERRÁNDIZ, Guillermo. Les Maisons Loucheur. “La máquina para habitar” se industrializa. En: Proyecto, progreso, arquitectura. Montajes habitados: vivienda, prefabricación e intención [en línea]. Sevilla: Editorial Universidad de Sevilla, 2012, n.º 6, pp. 34-49 [consulta: 30-09-2024]. ISSN-e 2173-1616. DOI: https://doi.org/10.12795/ppa.

DUVAL, Jean-Jacques. Le Corbusier, l’écorce et la fleur. Paris: Editions du Linteau, 2006. ISBN 2-910342-38-7.

DELGADO CÁMARA, Enrique. La geometría del agua. Mecanismos arquitectónicos de manipulación espacial. Directores: Alberto Campo Baeza y Rodrigo Pemjean Muñoz. Tesis doctoral. Universidad Politécnica de Madrid, ETSA, Departamento de Proyectos Arquitectónicos, 2015, pp. 372-379. DOI: https://doi.org/10.20868/UPM.thesis.40743.

GARGIANI, Roberto; ROSELLINI, Anna. Le Corbusier, Béton Brut and Ineffable Space, 1940-1965, Surface Materials and Psychophysiology of Vision. Lausanne: EPFL Press, 2011. ISBN 9782940222506.

KLINKHAMMER, B. Counterpoints and fugues: Le Corbusier’s idea of colour for the Factory Claude and Duval in St. Dié. En: WIT Transactions on The Built Environment [en línea]. Southampton: WIT Press, 2005, vol. 83, pp. 83-94 [consulta: 30-09-2024]. ISSN-e 1743-3509. Disponible en: https://www.witpress.com/elibrary/wit-transactions-on-the-built-environment/83/15294.

LE CORBUSIER. El urbanismo de los tres asentamientos humanos. Buenos Aires: Editorial Poseidon, 1981.

LE CORBUSIER. Manufacture de Bonneterie à St-Dié. En: LE CORBUSIER y A.WOGENSKY, Architectes. Techniques et Architecture. Paris: Travail, 1948, 8.º année. n.º 9-10, pp. 63-65. Disponible en: https://archive.org/details/techniques-et-architecture_1948_8_9-10/page/62/mode/2up.

MANASSEH, Thierry. Etude d’une œuvre de Le Corbusier: La manufacture Claude et Duval. Director: Franz Graf. Máster. Ecole Polytechnique Féderale de Lausannne, Yvan Delemontey Laboratoire des Techniques de Sauvegarde de l’Architecture Moderne, enero de 2014.

RAMOS CARRANZA, Amadeo. Dibujos y arquitectura: La Fiat-Ligotto 1916-1927. Directores: Juan Luis Trillo de Leyva y Manuel Trillo de Leyva. Tesis doctoral. Universidad de Sevilla, ETSA, Departamento de Proyectos Arquitectónicos, 2005. Disponible en: https://docomomoiberico.com/tesis/dibujos-y-arquitectura-la-fiat-lingotto-1916-1927/.

RUBIO, Emmanuel. “Faire tenir debout des murs faits des pierres d’une ruine”. Le Corbusier face à la brutalité de l’histoire. En: SBRIGLIO, Jacques, dir. Le Corbusier et la question du brutalisme. Marseille: Parenthèses, 2013, pp. 88-105. ISBN 978-2-86364-284-9.

SBRIGLIO, Jacques. Immeuble 24 N.C. et Appartement Le Corbusier. Birkhäuser: Foundation Le Corbusier, 1996, p. 52. ISBN 3-7643-5432-1. Disponible en: https://dokumen.pub/download/immeuble-24-nc-et-appartement-le-corbusier-apartment-block-24-nc-and-le-corbusiers-home-9783035604122-9783764354329.html.

Le Corbusier et Saint-Dié-des-Vosges. En: Destination Vosges Portes d’Alsace Tourisme [en línea] [consulta: 30-09-2024]. Disponible en: https://http://www.vosges-portes-alsace.fr/fiches/940001612-le-corbusier-et-saint-die-des-vosges/.

La obra arquitectónica de Le Corbusier, una contribución excepcional al movimiento moderno [en línea] [consulta: 30-09-2024]. Disponible en: https://lecorbusier-worldheritage.org/es/manufacture-a-saint-die/.

Saint-Dié-des-Vosges et Le Corbusier [en línea] [consulta: 30-09-2024]. Disponible en: http://usine.duval.free.fr/.

Usine Claude-et-Duval. Saint-Dié-des-Vosges, France, 1946-1950. En: Fondation Le Corbusier [en línea] [consulta: 30-09-2024]. Disponible en: https://www.fondationlecorbusier.fr/oeuvre-architecture/realisations-usine-claude-et-duval-saint-die-france-1946-1950/.


[1]From all the effort at Saint-Dié, there remains but one small pure flame. En: BOESINGER, W., ed. Le Corbusier. Oeuvre complète. Volume 5: 1946-52. Basel: Birkhäuser, 2013, p. 13. ISBN 978-3-7643-5507-4.

[2] El libro recoge las reflexiones llevadas a cabo por los miembros de la Asamblea de Constructores por una Renovación Arquitectónica “ASCORAL”, que estaba presidida por Le Corbusier, pero que sintetizaba en realidad la labor desarrollada por once unidades de trabajo.

[3]Elle fut le prétexte de propositions pouvant entraîner d’importantes réformes dans la manière de construire les établissements industriels et dans l’art de doter le travail de condicitions favorables tant à l’exploitation techinique qu’au bien-être physique et moral des ouvries et du personnel”. En:BOESINGER, W., ed. Le Corbusier. Oeuvre complète. Volume 4: 1938-1946, Basel: Birkhäuser, 2013, p. 76. ISBN 978-3-7643-5506-7.

[4] Le Corbusier maneja de manera libre este concepto imperante en el ámbito francés y lo adopta para denominar el nuevo ideal de fábrica que propone para el tiempo moderno, como distinción por contraposición a la ‘fábrica negra’ heredada de la Primera Revolución Industrial.

[5] “… que le travail s’effectue véritablement dans des conditions de nature. Il est tenu compte du siet, du soleil, des perspectives paysagistes et d’une masse de facteurs d’ordre sensible”. En: BOESINGER, W, op. cit. supra, nota 3.

[6] El arroyo se cubriría durante la fase de desarrollo del proyecto de reconstrucción de la fábrica.

[7] Manasseh desgrana el funcionamiento previo de la fábrica, así como la íntima relación existente entre Le Corbusier y Jean-Jacques Duval, hijo del fundador, quien le recomendó para proyectar el Plan de Saint-Dié y se implicó especialmente en la obra de la fábrica condicionando la solución.

[8] A cargo de la tarea estaría André Wogenscky, director del área de arquitectura dentro del estudio Ateliers de Batissement (ATBAT) que aparece en la publicación del proyecto como coautor; asistido por Francis Gardien para la mayor parte de las visitas de obra, y con apoyo técnico del ingeniero Vladimir Vodiansky.

[9] El esquema era lineal y de sentido único. Ver: MANASSEH, Thierry. Etude d’une œuvre de Le Corbusier: La manufacture Claude et Duval. Director: Franz Graf. Máster. Ecole Polytechnique Féderale de Lausannne, Yvan Delemontey Laboratoire des Techniques de Sauvegarde de l’Architecture Moderne, enero de 2014, p. 29. FLC 33630.

[10] Ibid., p. 39. FLC 09728 y FLC 09734.

[11] También pudieron ser inspiración el Edificio Daily Express de Londres de sir Owen Williams inserto en una trama urbana consolidada y la fábrica Fiat Lingotto en Turín, con su ciclo productivo también completo pero ascendente, igualmente visitada y por la que arquitecto confesó admiración. Consultar la tesis: RAMOS CARRANZA, Amadeo. Dibujos y arquitectura: La Fiat-Ligotto 1916-1927. Directores: Juan Luis Trillo de Leyva y Manuel Trillo de Leyva. Tesis doctoral. Universidad de Sevilla, ETSA, Departamento de Proyectos Arquitectónicos, 2005. Disponible en: https://docomomoiberico.com/tesis/dibujos-y-arquitectura-la-fiat-lingotto-1916-1927/.

[12] La Van Nelle fue además visitada por Wogenscky en 1948 durante el proceso de reconstrucción, y se trató de concertar una cita para Jean-Jacques Duval al año siguiente. FLC Q3-13-389-001.

[13] CORBUSIER, LE. El urbanismo de los tres establecimientos urbanos. Barcelona: Editorial Poseidón, 1981, p. 104. ISBN 9788485083190.

[14] Ibid., p. 105.

[15] RUBIO, Emmanuel. “Faire tenir debout des murs faits des pierres d’une ruine”. Le Corbusier face à la brutalité de l’histoire. En: SBRIGLIO, Jacques, dir. Le Corbusier et la question du brutalisme. Marseille: Parenthèses, 2013, p. 96. ISBN 978-2-86364-284-9.

[16] GARGIANI, Roberto; ROSELLINI, Anna. Le Corbusier, Béton Brut and Ineffable Space, 1940-1965, Surface Materials and Psychophysiology of Vision. Lausanne; EPFL Press, 2011, p. 108. ISBN 9782940222506.

[17] Al igual que los muros medianeros de piedra de las casas Loucheur caracterizan materialmente y delimitan el espacio de uso bajo ellas. Ver: https://idus.us.es/browse?value=D%C3%ADaz%20Segura,%20Alfonso&type=author; https://idus.us.es/browse?value=Mochol%C3%AD%20Ferr%C3%A1ndiz,%20Guillermo&type=author. Les Maisons Loucheur. “La máquina para habitar” se industrializa. En: Proyecto, Progreso, Arquitectura [en línea]. Sevilla: Editorial Universidad de Sevilla, 2012, n.º 6, p. 44 [consulta: 30-09-2024]. ISSN-e 2173-1616. DOI: https://doi.org/10.12795/ppa.2012.i6.02.

[18] Fueron graves los problemas sufridos por los usuarios de la Cité de Refuge y el Pavillon Suisse ante el uso de unas prístinas fachadas acristaladas al sur y ambos edificios hoy tienen un brise-soleil superpuesto. En la difícil reconciliación de lo ideal con lo pragmático, la solución del brise-soleil trataba de mantener el principio moderno del muro de vidrio conquistado haciéndolo compatible con la orientación y la singularidad del clima, por medio de una reflexión medioambiental adecuada.

[19] LE CORBUSIER, op. cit. supra, nota 13, p. 102.

[20] El brise-soleil fue defendido ante los recelos del cliente, ajustado y extremadamente depurado mediante la consultoría al ingeniero André Salomon. Esta conciencia de adecuación climática y el uso de estrategias pasivas de acondicionamiento iría incrementándose hasta liderar gran parte de su concepción formal arquitectónica futura, especialmente en la India, orientándola a lograr ‘atmósferas adiabáticas’. Consultar COVA MORILLO-VELARDE, Miguel Ángel de la. El agua y el caracol. Atmósferas adiabáticas a través de las maquetas de las villas à la mode tropicale de Le Corbusier. En: Proyecto, Progreso, Arquitectura. Arquitecturas para tiempos cálidos [en línea]. Sevilla: Editorial Universidad de Sevilla, 2021, n.º 26, pp. 48-65 [consulta: 30-09-2024]. ISSN-e 2173-1616. DOI: https://doi.org/10.12795/ppa.2022.i26.03.

[21] Esta casa comercial es la misma que actúa en la Unidad de Habitación de Marsella. Hay grandes similitudes en las soluciones propuestas para ambos proyectos y comparten el uso de las torretas 'Vega' como elementos de climatización.

[22] La toma se realiza a través de una potente manga de aire de reminiscencias navales situada en la planta baja y por medio de tomas varias localizadas en diversas partes del perímetro.

[23] LE CORBUSIER, op. cit. supra, nota 13, p. 104.

[24] Ibid., p. 95.

[25] Ver El Modulor o BOESINGER, W, op. cit. supra, nota 1, p. 14 para profundizar en las dimensiones de los mismos.

[26] KLINKHAMMER, B. Counterpoints and fugues: Le Corbusier’s idea of colour for the Factory Claude and Duval in St. Dié. En: WIT Transactions on The Built Environment [en línea]. Southampton: WIT Press, 2005, vol. 83, p. 93 [consulta: 30-09-2024]. ISSN-e 1743-3509. Disponible en: https://www.witpress.com/elibrary/wit-transactions-on-the-built-environment/83/15294.

[27]A l’ocassion de la construcción de cette usine, on a pu jouer un jeu d’une subtilité quasi musicale: un contre-point et fugue réglés sur le ‘Modulor”. En: BOESINGER, W, op. cit. supra, nota 1, p. 13.

[28]Stone can speak to us; it speaks to us through the wall. Its covering is rough yet smooth to the touch. This wall has become my lifelong companion. En: SBRIGLIO, J. Immeuble 24 N.C. et Appartement Le Corbusier. Birkhäuser: Foundation Le Corbusier, 1996, p. 52. ISBN 3-7643-5432-1. Disponible en: https://dokumen.pub/download/immeuble-24-nc-et-appartement-le-corbusier-apartment-block-24-nc-and-le-corbusiers-home-9783035604122-9783764354329.html.

[29] Le Corbusier quedó profundamente impresionado al ver los restos del bombardeo de Saint-Dié acumulados ordenadamente reproduciendo el trazado geométrico de la ciudad. Ver: Le plan de reconstruction de Saint-Dié (1945). Disponible en: http://usine.duval.free.fr/reconstruction_grandidier.htm.

[30] Ibid., p. 52.

[31] Este espacio de introspección es el germen y antecedente de la solución adoptada posteriormente por Le Corbusier para las habitaciones de El Hospital de Venecia. Consultar las exploraciones, avances y pruebas a escala 1:1 de este mecanismo lumínico y ambiental en: DELGADO CÁMARA, Enrique. La geometría del agua. Mecanismos arquitectónicos de manipulación espacial. Directores: Alberto Campo Baeza y Rodrigo Pemjean Muñoz. Tesis doctoral. Universidad Politécnica de Madrid, ETSA, Departamento de Proyectos Arquitectónicos, 2015, pp. 372-379. DOI: https://doi.org/10.20868/UPM.thesis.40743.

[32] El mobiliario es de Jean Prouvé, Le Corbusier y Charlote Perriand, siendo este último quien diseña las piezas ad hoc del despacho principal, que además dispone de un gran ventanal-tabique pivotante que integra la vista y uso de la terraza casi de modo particular.

[33] Deep structures. En: CURTIS, William J.R. Le Corbusier. Ideas and Forms. Nueva York: Phaidon, 2015, p. 426. ISBN 9780714868943.

[34] Esta fábrica define un giro en los proyectos industriales de Le Corbusier e influirá en ejemplos posteriores como el Centro de Cálculo Electrónico en Rho, Milán.

[35] COLQUHOUN, Alan. Desplazamiento de conceptos. En: Le Corbusier. Arquitectura moderna y cambio histórico. Barcelona: Gustavo Gili, 1978. ISBN 84-252-1988-4.

[36] Por ejemplo, el remate del cuerpo construido en la azotea con mosaico de azulejos de colores, el sistema de climatización, el uso de colores brillantes, y otros que no llegaron a realizarse como la chimenea de forma escultural.

[37] El muro de mampostería vista, las carpinterías con parteluces, el color como activador espacial, los techos curvos que hacen deslizar la entrada de luz, los paneles-puerta o el uso de las cortinas de tela, son elementos que se encuentran en la vivienda-estudio de Le Corbusier.

[38] La fábrica Claude y Duval es actualmente una fábrica de ropa, aunque de lujo, y su programa mixto la acerca al ideal de Le Corbusier que entendía la industria como lugar de ‘producción’ y ‘capacitación’. El impulso recibido con su catalogación al ser incluida en la Lista de Patrimonio Mundial en julio de 2016, ha generado además una conciencia social de su valor convirtiéndolo en un hito arquitectónico de Saint-Dié, que representa un valor atemporal y que ha expandido su influencia derivando en la mejora del entorno por parte de las autoridades locales.