|
Proyecto, Progreso, Arquitectura. N32 (2025) Arquitectura flexible Mayo 2025 ISSN 2171–6897 / ISSNe 2173–1616 © 2025. E. Universidad de Sevilla. Creative Commons Attribution-NonCommercial-ShareAlike 4.0 International (CC BY-NC-SA 4.0) |
|
Sara Fernández-Trucios
0000-0001-5905-6322
Persona de contacto / Corresponding author: sfernandez8@us.es. University of Seville. Spain.
Tomás García García
0000-0003-4575-7683
Francisco Montero-Fernández
0000-0002-0985-7612
Recepción: 15-09-2024. Aceptación: 09-03-2025
Cómo citar:
FERNÁNDEZ-TRUCIOS, Sara, GARCÍA GARCÍA, Tomás y MONTERO-FERNÁNDEZ, Francisco. Espacios domesticos flexibles: las envolventes de tres edificios de los años cincuenta en Milán. En: Proyecto, Progreso, Arquitectura. Sevilla: Editorial Universidad de Sevilla, mayo 2025, nº 32, Arquitectura flexible, pp. 66-85. https://dx.doi.org/10.12795/ppa.2025.i32.04
|
RESUMEN Superar la dificultad de manipular los límites de la casa en un edificio en altura a través de la flexibilidad técnica de la envolvente, genera el argumento para una manera de entender la relación interior-exterior de la vivienda. Una fachada definida como umbral capaz de albergar un uso o una actividad en su espesor, puede generar flexibilidad en el espacio doméstico. Las fachadas de la vivienda colectiva milanesa de posguerra son paradigma mundial de la arquitectura del siglo XX. La innovación tecnológica derivada de la industrialización permitió aunar la construcción de paisaje urbano con la innovación tipológica, que respondía a los nuevos modos de vida. Proponemos un método de investigación por escalas basado en la construcción de dibujos y maquetas, para analizar tres casos de vivienda colectiva y en particular su perímetro como objeto de estudio. Nos referimos a la envolvente espesa del Condominio XXI Aprile de Asnago y Vender, la estratificación y el solape de capas del edificio en Via Dezza de Gio Ponti y la piel quebrada y modulada del edificio en Via Quadronno de Mangiarotti y Morassutti. Una triada que ofrece tres modos de hacer, lo que permitirá identificar diversas estrategias de flexibilidad perimetral y reflexionar sobre su viabilidad de aplicación en la vivienda mínima del presente y futuro, haciendo posible su adaptación a los requerimientos específicos que demandan una sociedad y un clima cambiantes. PALABRAS CLAVE flexibilidad perimetral; fachada habitada; paisaje urbano; vivienda colectiva; arquitectura de posguerra; Milán. |
SUMMARY The challenge of manipulating the boundaries of a high-rise building through the technical flexibility of the envelope provides a compelling argument for understanding the relationship between the interior and exterior of the dwelling. A façade, defined as a threshold and capable of accommodating a use or activity within its thickness, can generate flexibility in the domestic space. The façades of postwar Milanese collective housing are a global paradigm of 20th-century architecture. Technological innovation resulting from industrialisation enabled the integration of urban landscape construction with typological innovation, responding to new ways of life. We propose a research method by scales based on the construction of drawings and models to analyse three cases of collective housing, particularly their perimeter as an object of study. We refer to the thick envelope of the Condominio XXI Aprile by Asnago and Vender, the stratification and overlap of layers in the building on Via Dezza by Gio Ponti, and the folded and modulated skin of the building on a Quadronno by Mangiarotti and Morassutti. This triad presents three approaches, enabling the identification of various perimeter flexibility strategies and reflecting on their potential application in minimal housing of the present and future. Consequently, it will be possible to adapt to the specific requirements of a changing society and climate. KEYWORDS Perimeter flexibility; inhabited façade; urban landscape; collective housing; postwar architecture; Milan. |
Los cambios en los grupos de ocupación y modos de vida ponen constantemente en evidencia la necesidad de revisar la calidad de nuestros hogares. Requerimos casas capaces de adaptarse a las condiciones específicas en cada momento. Montaner y Muxi afirman que “la solución para afrontar la diversidad necesaria de tipos de viviendas radica en desarrollar mecanismos de flexibilidad”[1] y, por tanto, esta cualidad debe ser entendida como un indicador de calidad sobre todo en el ámbito doméstico como referente tipológico básico de la definición de nuestras ciudades.
Según Ignacio Paricio y Xavier Sust, quienes describen la flexibilidad como “cualquier disposición constructiva o formal que permita cierta diversidad en las maneras de ocupación”[2] podemos argumentar que la envolvente puede ser considerada como uno de los elementos arquitectónicos relevantes para la definición de un espacio doméstico flexible. Su condición básica establece la relación exterior/interior, de manera que alimenta la definición espacial y funcional de la vivienda de las aportaciones que el contexto le aporta a la definición del proyecto arquitectónico. La envolvente se convierte en un elemento de composición arquitectónica que ha de integrarse dentro del organismo de la arquitectura junto a los otros sistemas que la componen, de manera que el conjunto de sistemas estructural, de instalaciones, constructivos, compositivo que constituyen la fisicidad del objeto se implementan con las condiciones de contorno aportadas por su envolvente como sistema independiente.
En las viviendas premodernas, los espacios intermedios de relación con el exterior -tales como patios, porches o zaguanes- acotados por límites claramente definidos, eran los que aportaban flexibilidad al habitar por su condición de ambiguos y carecer de uso específico. A partir del siglo XX la arquitectura supera la entidad espacial cerrada tradicional. La independencia de la estructura es clave para la interpretación de los conceptos de “planta libre”, “fachada libre”[3] o “fenêtre en longueur”, tres de los cinco puntos de una arquitectura nueva enunciados por Le Corbusier en 1926. Ideas que abren camino a la interpretación del elemento de fachada como un conjunto de ámbitos o capas capaces de contener en sí misma una actividad, es decir, pasa de ser límite a umbral.
La capacidad de la envolvente de hacer flexible la casa depende, a nuestro parecer, de tres cuestiones: la geometría de su directriz, es decir, la forma que adquiere el perímetro; espesor y capas que la componen; y la atención al hueco en cuanto a tamaño, proporción y composición. Asimismo, la innovación técnica aportará un valor añadido a estos tres aspectos. Los ejemplos seleccionados serán más flexibles cuantos más parámetros dispongan de los citados a continuación.
La forma del perímetro de la casa influye de manera determinante en su capacidad de adaptación. “Su forma exterior, prismática, cilíndrica u otra, tiene sus propias razones o las razones que puedan derivarse (…) de su vecindad con otras cajas, pero esa forma nunca explica cuál es el objeto contenido”[4]. Se abre la posibilidad de que la función no determine la forma y que, para ello, la envolvente no sea exclusivamente la piel plástica que se adecua al uso, establecida desde la optimización del volumen más eficiente.
Los romanos plantearon la importancia del espesor del muro en el diseño perimetral del espacio. Imaginemos viviendas como si se trataran de un “edificio elemental primitivo, compuesto de un grueso muro (…) con nichos excavados en el interior del espesor: el Panteón, por ejemplo, donde la pared es lisa y continua (de un espesor que alcanza casi 7 metros), pero no maciza, sino cavada en el interior”[5], decía Bettini. Esta conciencia sobre el espesor lleva a tomar en consideración un límite interno y otro externo. El perímetro comienza a aportar flexibilidad cuando ambas líneas se separan lo suficiente como para llenarse de contenido, ya sean objetos, servicios técnicos y de control climático o vegetación. En esta línea, Yves Lion desarrolla una propuesta teórica con el proyecto de viviendas Domus Demain (1987), situando el equipamiento de la casa en su perímetro. Los muebles de cocina, baño y escritorios conforman una envolvente espesa y activa.
La liberación de la fachada de su dependencia estructural ha permitido que el solape, superposición o plegado de capas de diferente espesor, materialidad u opacidad -unas estáticas y otras dinámicas-; sea una estrategia más que sugerente para la conformación del umbral doméstico en la actualidad. Sustituyendo a la simple porosidad superficial que supone un hueco de ventana en un muro opaco y de espesor continuo de 30 cm. Estas acciones proyectuales de conformación de la fachada generan espacios intersticiales sin una actividad definida, que desde su independencia e indeterminación tienen la capacidad de favorecer a la flexibilidad del habitar. Son “los nuevos zaguanes, galerías, miradores, patios (…), diafragmas periféricos para el control térmico y acústico, pero también como espacios de extensión del interior de la vivienda, como cámaras de descarga de actividades de la casa”[6].
Favoreciendo la flexibilidad de los espacios, encontraremos en los casos de estudio huecos horizontales compuestos de dos o más capas, indeterminados, que hacen que el interior y el exterior no se toquen; algunos casuales o aleatorios, cuyo tamaño y posición es elegido por los propios usuarios; y otros cuya modulación permite su descomposición en partes iguales -opacas y transparentes- susceptibles de ser intercambiadas. Estos modos de hacer están alejados de la composición de huecos absolutamente rígida de la vivienda-estuche, donde cada estancia tiene un tamaño de hueco establecido en función de su uso. Gracias a esta composición libre de los huecos, la vivienda pierde precisión y especialización de sus espacios, abriendo la posibilidad de establecer estrategias funcionales flexibles.
La vivienda colectiva milanesa de la segunda mitad del siglo XX es un referente de este contexto. Los arquitectos de posguerra reconstruyeron, desde lo doméstico, fragmentos de la ciudad bombardeada, respondiendo a los nuevos modos de habitar y reinterpretando el paisaje urbano en claves del Movimiento Moderno desde el respeto a las “preexistencias ambientales”, concepto clave del pensamiento teórico de la arquitectura de posguerra que E. Rogers desarrolla en las páginas de Casabella[7]. Del mismo modo, Luigi Moretti reflexiona sobre los requerimientos del momento en el contexto físico y social en el que se enmarcan los tres proyectos seleccionados:
“Uno de los requisitos hoy fundamentales (…) es la flexibilidad funcional (…). La importancia de esta exigencia deriva del hecho de que las zonas centrales de una ciudad atraen a categorías de usuarios muy dispares (…). Las solicitudes del espacio residencial van desde el apartamento de dos habitaciones (…), hasta la residencia de lujo. [Luego, posiciona la fachada como una estrategia para alcanzar la flexibilidad, invitando a realizar] el vuelo de los forjados entre 1,4 m y 2,7 m de manera que permita el cierre de los exteriores según se desee, es decir, con o sin logias y cualquiera que sea la división de las estancias interiores”[8].
En esta reflexión, las fachadas de la capital lombarda adquieren un papel fundamental: son envolvente de lo privado y a la vez con vocación pública; piel intermediadora entre interior y exterior; un límite habitado de espesor variable con carácter identitario y social. Destaca su flexibilidad constructiva, la innovación tecnológica y la prefabricación, llegando a surgir fachadas capaces de incorporar el factor tiempo. Asnago y Vender con la fachada espesa del Condominio XXI Aprile, Gio Ponti con la estratificación y solape de capas en el edificio en Via Dezza y Mangiarotti y Morassutti con la modulación y el plegado de la piel del edificio de viviendas en Via Quadronno, son capaces de trasladar estas reflexiones teóricas a la práctica arquitectónica. Analizamos los tres casos de estudio mediante la elaboración propia de maquetas y dibujos que son ideas construidas capaces de dar forma a los pensamientos; método que, como afirma Juhani Pallasmaa[9], implica pensar con las manos. Este material inédito ha requerido una labor previa de recopilación de fuentes y contraste de planos de proyecto básico publicados con planos de proyecto de ejecución de los archivos. Como resultado, se aportan unas plantas que muestran la realidad de lo construido, capaces de considerar las primeras intenciones de innovación tipológica y el desarrollo de la estructura, instalaciones y aspectos constructivos.
Si hablamos de flexibilidad perimetral, se hace imprescindible, en primer lugar, entender y dibujar, a la escala del detalle, la definición constructiva de la fachada. Seguidamente saltamos de escala para comprender cómo influye esto en la flexibilidad general de la planta y qué otras estrategias ayudan a alcanzarla. En este proceso se hace todavía más claro que la flexibilidad del conjunto se alcanza desde la definición de la envolvente, cuando basta con duplicar solo un extracto de planta -el que define la fachada- para entender las diferentes distribuciones que puede adoptar la casa. Nos proponemos como reto grafiar la flexibilidad, es decir, dibujar plantas llenas de gradientes, huellas y sombras; aspectos que consideramos ineludibles para la definición del umbral, pero que por su cualidad de intangibles o efímeros, casi nunca aparecen en los planos técnicos. Por último, pasamos a la escala de la ciudad para analizar cómo se genera la respuesta al paisaje[10].
Situado en una de las zonas más antiguas del centro histórico de Milán, fuertemente dañada por los bombardeos de la II Guerra Mundial, según Zucchi, el proyecto resuelve la antinomia entre el edificio cerrado de la forma urbana histórica, y el abierto que responde a los requisitos tipológicos modernos[11]. Un primer bloque más bajo, de tres plantas, mantiene el frente de la calle y un segundo volumen de ocho plantas, se asoma tras el primero en perpendicular, rodeado por el jardín.
La posición y forma de los diversos huecos de fachada permite leer desde el exterior la superposición funcional de oficinas y viviendas. Las ventanas rectangulares de proporción vertical se sitúan generalmente en las tres primeras plantas de los alzados sur y oeste, y enuncian el uso de oficinas. En contraposición, la fenêtre en longueur se desarrolla en toda la longitud de la fachada principal del volumen más alto, a partir de la tercera planta, ofreciendo a las estancias principales de las viviendas una relación panorámica total con el verde y la luz del sol. El modo en el que describe Le Corbusier la ventana alargada de la casa en el lago Lemán (1923-1924), podría ser aplicable a esta ventana: “Se extiende a lo largo una vivienda (…) gracias a lo cual se accede a una vista incomparable (…). Se trata de una innovación constructiva concebida para la posible función de una ventana: convertirse en (…) el actor principal de la casa”[12].
La ventana de Asnago y Vender está compuesta por una doble piel de paños de vidrio transparente -igual que la de Piero Portaluppi en la Villa Necchi Campiglio (1935)- con carpintería de hojas de 60 cm de aluminio pivotantes verticales al exterior y carpintería de madera de roble de hojas correderas al interior (figura 1). Un macetero intermedio permite que la vegetación se convierta en material de construcción y que la envolvente adquiera mayor inercia (figura 2). La ventana es realmente un jardín de invierno que permite la captación de luz natural y energía solar y el control de los intercambios de temperatura, contribuyendo al acondicionamiento del edificio en la cara oeste. Además, su espesor (80 cm) contiene una tira de luz artificial, un estor de lamas horizontales y una persiana que actúan como filtro para regular la luz natural[13]. En definitiva, la ventana se convierte en un diafragma de condiciones de luz, temperatura y ventilación, a la vez que captura y construye el paisaje que acompaña a la vida doméstica, aportando e integrando su propia definición espacial que es capaz de incluir a la vegetación propia en el paisaje que se observa, permitiendo registrar el paso del tiempo, las estaciones, las condiciones climáticas y el sonido urbanos como componentes de un paisaje y entorno que cualifica la vivienda.
1. 1.1. Vista interior de la ventana longitudinal del Condominio XXI Aprile. Milán, 1953. 1.2. Vista exterior de un extracto de la fachada oeste del Condominio XXI Aprile, Milán, 1953.
2. Sección constructiva de la ventana longitudinal del Condominio XXI Aprile.
Este hueco horizontal, de unos 30 m por 2 m de altura, muestra de forma difusa la variedad distributiva y dimensional de las estancias en las diferentes plantas[14], al mismo tiempo que ofrece una respuesta homogénea y abstracta al paisaje. De esta manera, la atención al detalle constructivo de la ventana es la que aporta flexibilidad al conjunto, absorbiendo la libertad de movimiento de los tabiques que acometen perpendicularmente a la piel interna, la línea exterior de pilares y algunos bajantes de instalaciones.
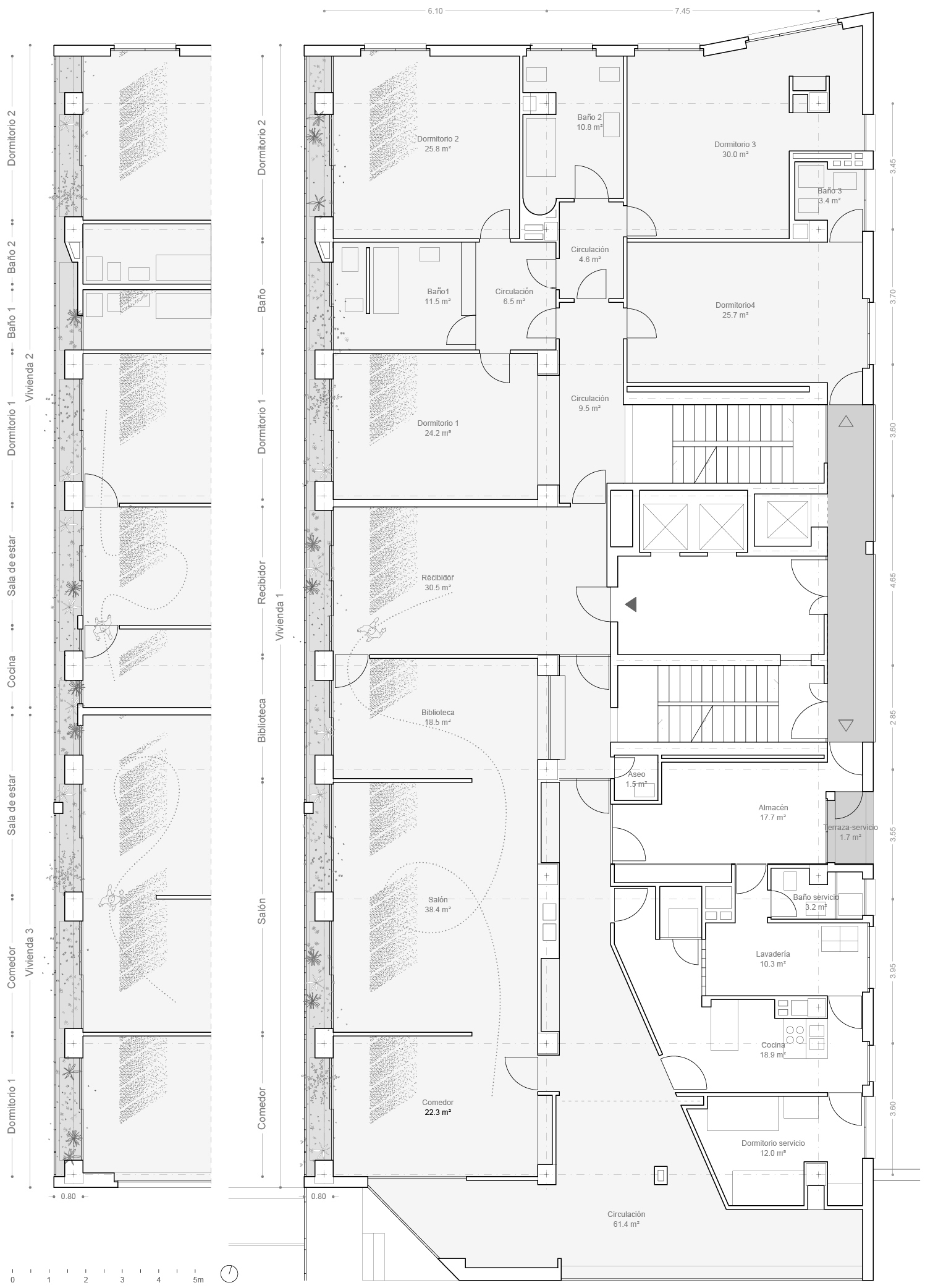
La forma simple y rectangular del perímetro le confiere al proyecto la cualidad de vivienda-caja, proporcionando flexibilidad al espacio doméstico (figura 3); sumado a otras estrategias que tienen que ver con la distribución general de la planta. Las estancias servidoras -guardarropa, dormitorio de servicio, lavandería y generalmente cocinas- quedan agrupadas en la zona sur de la fachada este, gesto que le confiere a este alzado un carácter más plástico y tridimensional, albergando las logias de núcleos verticales de circulación y terrazas de servicio; en contraposición a una fachada noble en dos dimensiones que aporta mayor libertad a la distribución de los espacios de día[15].
3. Planta cuarta y porción de fachada de planta sexta del Condominio XXI Aprile.
Por otro lado, la inclusión de dos o tres puertas de entrada por vivienda -destinada entonces una de ellas al servicio-, ofrece, en el presente, duplicidad en las circulaciones, además de la posibilidad de dividir una vivienda en dos, o incluir una zona independiente para el teletrabajo. También, la amplia dimensión de las estancias las hace polivalentes[16]. “Es indudable que la abundancia de espacio proporciona la máxima flexibilidad (…). Pero las viviendas, por razones económicas, deben limitar su superficie”[17]. Cierran este listado de estrategias una estructura ordenada de pilares de hormigón y una distribución repartida de las instalaciones, que permite disponer baños o cocinas hacia la fachada principal.
La conformación de la envolvente, además de aportar flexibilidad al espacio doméstico, en lo que respecta a su composición volumétrica, materialidad, proporciones, alturas y disposición de huecos, logra vincular la resolución del tipo con la forma urbana. Desde el respeto a las preexistencias, los arquitectos son capaces de construir paisaje urbano. La fachada responde a la dicotomía calle-jardín, disponiendo el material más noble -mármol blanco- y las ventanas de proporción vertical hacia la calle. La composición y proporción de los huecos se traza en armonía con los de los edificios históricos vecinos (figura 4). Sin embargo, con una concepción más abstracta, el uso del ladrillo Clinker y la composición de los huecos de proporción alargada y horizontal, miran hacia el jardín y la ciudad en las plantas altas.
4. Respuesta de la envolvente al paisaje urbano del Condominio XXI Aprile. Maqueta a escala 1:500.
En 1956-57 Gio Ponti, junto a Fornaroli y Rosselli, proyecta un edificio que completa el frente de fachada del trazado en manzana cerrada hacia Via Dezza. Ponti habitará junto a su familia en la octava y última planta. Es en esta casa, su última casa, donde es capaz de condensar y poner en práctica todas sus reflexiones sobre el habitar moderno[18].
En este edificio, Ponti convierte el límite en un umbral habitado de 4 metros de profundidad, definido por una sucesión de capas -estáticas y dinámicas- de espesor variable. Lo componen una franja espacial “continua” con tabiques plegables tipo modernfold[19] (210 cm); una carpintería de puertas abatibles y paños fijos de vidrio con montantes de madera que, en la casa del arquitecto (figura 5), soportan en voladizo estantes, cajones y mesas (35-100 cm) (figura 6); muro de mampostería (45-60 cm); línea estructural de pilares de hormigón armado embebidos en muro; cajón de persiana corrido[20] (45 cm); terraza corrida (110 cm); sistema de barandilla metálica; y, como telón de fondo, el paisaje urbano cambiante.
5. Fotografía de la fachada habitada de la Casa de Gio Ponti. Milán, 1957.
6. Sección de la fachada habitada de la Casa Ponti.
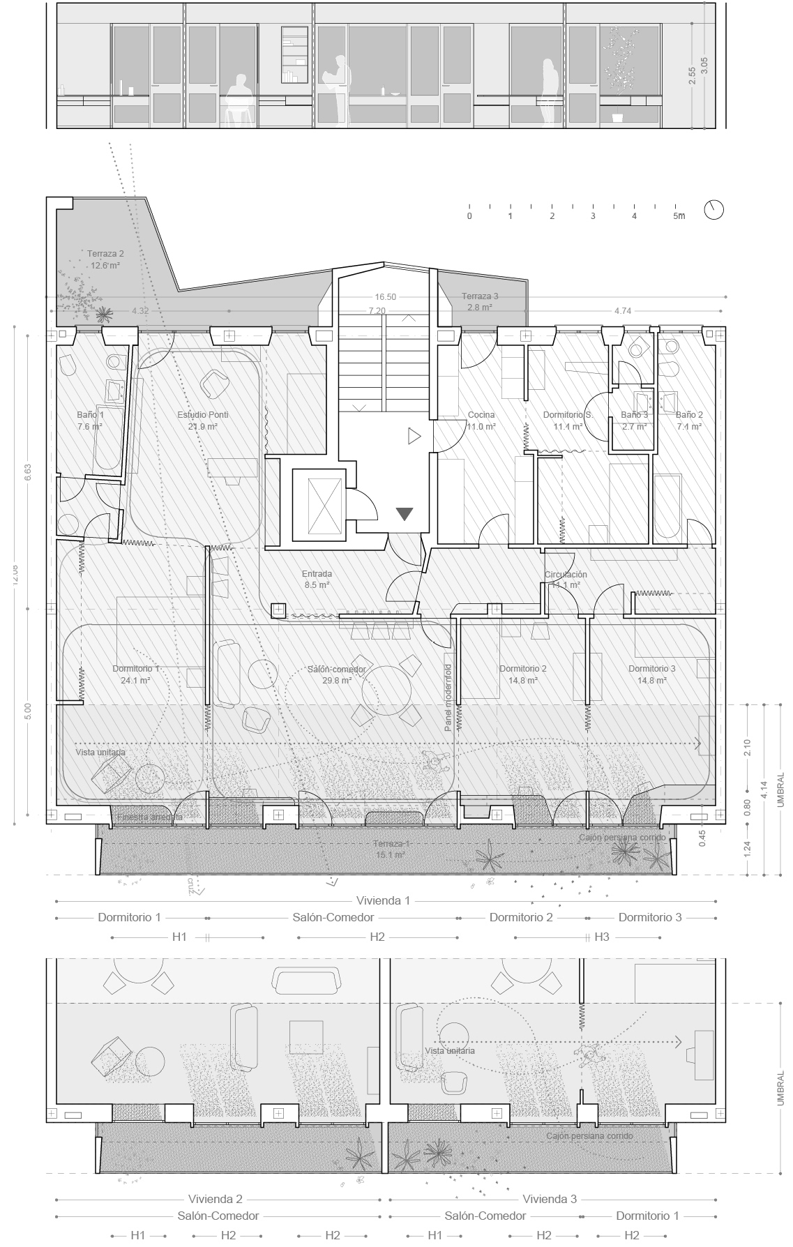
El diseño por estratos de la envolvente concede a las viviendas una serie de mecanismos que generan la flexibilidad de la planta. En primer lugar, la inclusión de “paredes móviles” permite alcanzar lo que el propio arquitecto denominaba “un gran ambiente único”, fluido y amplio, y generar así distintos esquemas de asociación de estancias para la adaptación de la casa a las diversas exigencias del día[21] (figura 7). Le Corbusier y Pierre Jeanneret ya habían aplicado esta estrategia en la primera mitad de siglo en las casas 14 y 15 de la Weissenhof (1927), incorporando tabiques correderos en el espacio de fachada[22]. Esta estrategia genera una circulación auxiliar entre estancias, complementaria a la del espacio de distribución central. También, en el edificio milanés, la terraza longitudinal flexibiliza la estructura de relación interna de la vivienda, esta vez, con circulaciones exteriores. Así mismo, el concepto de “ventana amueblada”[23], que Ponti emplea en su casa, intensifica la actividad en el límite permitiendo la disposición de objetos en fachada (figura 8). Esto implica liberar la zona interna facilitando el intercambio de uso entre estancias.
7. Planta octava (casa Ponti) y porción de fachada de planta quinta del edificio de viviendas en Via Dezza.
8. La fachada habitada de la Casa Ponti. Maqueta a escala 1:50.
Todos estos mecanismos generados desde un diseño preciso de la envolvente necesitan una vez más de estrategias complementarias. Nos referimos a la disposición de los espacios de servicio aglutinados en la cara norte (los únicos cerrados por puertas); la inclusión de dos puertas de entrada por vivienda; unas estancias de dimensión generosa; una estructura ordenada, donde los dos ejes exteriores son absorbidos por el espesor de fachada y el central forma parte de la banda de circulación, sin interceptar en la zona de día; y, por último, una distribución coherente de las instalaciones, repartida en ambas fachadas. En la fachada trasera, su distribución permite intercambios entre estancias de servicio o la inclusión de dos viviendas en plantas donde solo hay una -a ambos lados de la caja de escalera-. En la principal, la distribución de la instalación eléctrica, que da servicio a lámparas y ordenadores dispuestos en la ventana amueblada, libera de enchufes e interruptores los tabiques perpendiculares, posibilitando futuras transformaciones.
El diseño de la fachada responde al mismo tiempo a las escalas de la casa y de la ciudad, es decir, a las variaciones de uso del interior y a cómo se muestra esa actividad cotidiana al exterior. De esta forma, su alzado exterior contempla el cambio de aspecto entre el día y la noche[24], como una suerte de estantería a escala urbana que muestra a los viandantes la silueta de los objetos cotidianos de los que allí habitan, acentuada con la luz interior en la oscuridad de la noche.
Frente a “la negativa de concebir el complejo de viviendas como una repetición uniforme de plantas-tipo”[25], en palabras de Gloria Arditi y Cesare Serrato, Ponti proyecta una “fachada adaptable en ‘modo espontaneo’ a los deseos de cada propietario: [el tamaño de la trama del balcón corresponde al tamaño de cada vivienda -una o dos viviendas por planta-]. Cada uno en teoría es libre de disponer las ventanas [de tamaño y posición que considere] y de escoger el color [de su fachada y de paneles de barandilla]”[26].
Orsina Pierini y Alessandro Isastia nos revelan que “el proyecto habla de las sensibilidades residenciales de Morassutti, el talento de la construcción modular de Mangiarotti, y la experiencia técnica del ingeniero Favini”[27]. Construido por encargo de una cooperativa, este edificio de viviendas actúa como bisagra entre el parque público que esponja el denso trazado circundante y las calles Quadronno y Crivelli. El concepto de “Alzados continuos” (figura 9), sobre el que se genera el proyecto, propone que “las variaciones del perfil sigan las necesidades funcionales de cada caso (orientación, vistas, urbanismo, etc)”[28] aumentando la exposición al sol y el ángulo de visión hacia el paisaje. Es decir, la forma de la envolvente, fruto del estudio de las interrelaciones interior-exterior, es la que articula la distribución interior de la casa, y no al contrario.
9. Fotografía de la fachada este del edificio per abitazioni en Via Quadronno. Milán, 1962.
Una trama vertical, basada en la modulación y prefabricación, ayuda a formalizar y dimensionar el perímetro del edificio, algo que ya hizo Jean Prouvé unos años antes en su casa de verano en Nancy (1954). Esto permitía a los usuarios la posibilidad de intercambiar paneles opacos de madera -de pino Douglass de 8 cm de espesor (96,5 × 305 cm)- por módulos vidrio -con carpintería de madera y vidrio de 5 mm, hoja superior abatible (92 × 215 cm) y hoja inferior batiente vertical (92 × 95 cm)-; o incluso dejar un vacío incorporando una barandilla metálica, para la aparición de una logia. Con este gesto los arquitectos superan la difícil barrera de modificar los límites de la vivienda en altura, algo que indudablemente aporta flexibilidad al habitar, como anunció Moretti. Además, el quiebro de la envolvente hacia el interior, que genera un espacio exterior privativo en la casa -vividero principalmente en primavera y verano-, supone un aumento del factor de forma. “El volumen plegado inicial, de bajo factor de forma, es más adecuado para el invierno, la estructura extendida es mucho más apropiada para la estación cálida. La mayor superficie de piel permitirá una mejor disipación del calor y la sensación de ambigüedad interior/exterior se magnificará por medio de un ambiente difícilmente definible”[29]. De un modo similar, Aalvar Aalto y Elsa Kaisa pliegan la piel del bloque residencial en Hansaviertel (1956-1957), contemporáneo al objeto de estudio. En palabras de Montaner: “Para adaptarlo a las buenas orientaciones y vistas se dio al bloque una forma levemente orgánica (…). El espacio interior (…) funciona como un paisaje interno abierto al paisaje externo. La terraza, perfectamente proporcionada, constituye el visor hacia el paisaje de Berlín”[30].
La libertad de movimiento de paneles es posible gracias a un sistema constructivo de anclaje con subestructura de acero -de perfiles verticales tipo omega con intereje de 1 m (figura 10) y perfiles horizontales superior e inferior- apoyada en cantos de forjado de losa de hormigón armado que vuelan entre 1 y 3,4 metros. El sistema de montaje en seco y la relativa ligereza de los materiales, configuran la flexibilidad constructiva de la envolvente, de tal forma que cada usuario puede modificar libremente el diseño de su fachada. Con este método, los arquitectos han conseguido prever la evolución de la fachada.
10. Sección constructiva de la piel del edificio per abitazioni en Via Quadronno.
Todas estas características técnicas ratifican la incidencia directa de la flexibilidad perimetral en la del conjunto de la planta de la casa (figura 11). La posibilidad de inclusión de un espacio exterior privativo o la libertad de movimiento y polivalencia de las estancias de día se hace posible gracias al intercambio u omisión de los paneles[31]. A esto se suma la agrupación de los espacios de servicio hacia una fachada trasera más ortogonal y sólida, favoreciendo una mayor libertad y organicidad en las estancias principales y ligereza en su fachada. También, una banda equipada de armarios, que separa la zona de servicio de la de día, genera espacios de circulación aptos para otros usos y libera las estancias principales de muebles pesados favoreciendo su permuta. El diseño de planta libre con estructura de pilares de hormigón retranqueada da pie a una piel autónoma de muro cortina anclada a cantos de losa. Las instalaciones estratégicamente repartidas posibilitan incluso cambiar un dormitorio individual por un baño -intercambiando paneles de vidrio por opacos- o diferentes encajes en la zona de servicio. Por último, destaca la inclusión de dos puertas de entrada a la vivienda; el uso de un único pavimento continuo que permite la aparición esporádica de la logia; y la instalación de suelo radiante evitando colocar radiadores en fachada[32].
11. Planta segunda y porción de fachada de planta séptima del edificio per abitazioni en Via Quadronno.
La ciudad percibe una fachada cambiante, con aspecto casual y casi aleatorio (figura 12), a merced del habitante. En ella influye el factor tiempo. Al intercambio de paneles se suma el constante movimiento de cortinas y toldos[33], que fluctúa entre el día y la noche y el verano y el invierno; y la vegetación trepadora de hoja caduca que recorre las cornisas que cubren los cantos de forjado. Así, la flexibilidad de la envolvente favorece también a su funcionamiento pasivo y, en consecuencia, a la sostenibilidad de la casa.
12. La flexibilidad de la envolvente del edificio per abitazioni en Via Quadronno. Maqueta a escala 1:25.
La revisión de los objetos de estudio permite afirmar que el trabajo con la envolvente es un recurso más que sugerente para la búsqueda de flexibilidad del habitar en la vivienda moderna y contemporánea. Una definición constructiva basada en la innovación técnica, la experimentación con los materiales y la prefabricación permite que cada fachada, diferente y única -ya que responde específicamente a un lugar determinado con unas características constructivas y formales propias-pueda ser flexible en sí misma. Esto multiplica exponencialmente la flexibilidad espacial del conjunto, es decir, de la casa y del conjunto de casas. Incluso enriquece el aspecto exterior del edificio, dicho de otro modo, el detalle constructivo contribuye a individualizar la idea de paisaje urbano. Por otro lado, una definición acertada de este sistema constructivo flexible y cambiante por parte del profesional, y, sobre todo, un uso correcto por parte del usuario; han permitido que, además, estas casas hayan sido capaces de responder a la situación climática actual. Los milaneses sufren hoy en día veranos mucho más cálidos que 70 años atrás. El simple gesto de modificar el tipo de vidrio -de simple a doble-, realizado ya por algunos habitantes del edificio en via Quadronno; la incorporación de toldos exteriores en este bloque y el de Via Dezza; o, simplemente, el buen uso de las capas que componen la ventana espesa del edificio de Asnago y Vender; han bastado para adaptar la casa a esta nueva y grave situación que parece no cesar. Como decíamos al inicio, el mundo de la antigua Roma recurrió a los espacios intermedios de relación con el exterior para aportar flexibilidad al habitar. Pero, además, como enuncian Valentín Trillo y Fernando Amores en el n.º 26 de esta revista, dedicado a la “Arquitectura para Tiempos Cálidos”, la disposición de estos espacios en la crujía perimetral favorecía al mismo tiempo al acondicionamiento pasivo de la casa. Es el caso de la tipología de casa romana en Itálica (Santiponce, Sevilla)[34].
Por otro lado, considerando que los proyectos estudiados en el artículo están dirigidos a la clase media-alta, resulta pertinente cuestionarse si es viable su aplicación en el ámbito de la vivienda mínima. En gran parte de nuestro país, las condiciones mínimas de habitabilidad de este tipo de casas se asientan en una normativa rígida y desactualizada. Por lo tanto, proponemos que una forma de alcanzar la flexibilidad es a través de los espacios que no están controlados por las normas de diseño de obligado cumplimiento. Nos referimos a los espacios periféricos ambiguos. A priori diríamos que, a mayor superficie de ocupación en planta de fachada, más alto es el índice de aprovechamiento (sup. construida/sup. útil) y, por tanto, más costosa es la construcción. Pero como hemos comprobado, la casa se vuelve flexible cuando el ancho de fachada se reduce al mínimo posible (8 cm) o en cambio se ensancha considerablemente hasta que su espesor se convierte en superficie útil. Asimismo, si la optimización entre superficie útil y construida ha sido un factor claro de control y cualificación de la vivienda contemporánea, es necesario introducir otros factores que aporten mayor capacidad y dinamismo. Un factor podría ser poner en relación la envolvente con la superficie útil de la vivienda ya que, como nos demuestran los ejemplos aportados, esa relación favorece la cualificación del espacio doméstico aumentando su capacidad dinámica de adaptación a nuevos requerimientos. Cuanto mayor sea el perímetro en contacto con el exterior, o mayor capacidad funcional posea esa envolvente como umbral, la vivienda será más capaz de adaptarse a la demanda que sus habitantes requieran de ella.
Las viviendas en la Barceloneta (1951-1954) de Coderch y Valls, contemporáneas a los casos de estudio, son un ejemplo aplicado a la vivienda social en España. Destaca la modulación y la innovación constructiva de los paneles de fachada; el pliegue del perímetro que genera espacios intermedios y versátiles; y el aumento de su espesor en algunos puntos incorporando espacios de almacenaje. O los apartamentos de Huerta del Rey en Sevilla (1967-69) de Manuel Trillo, con sus profundas y continuas terrazas dotadas como filtro de vegetación y sombra[35]. En los últimos años, el proyecto de transformación de viviendas en Burdeos (2016) de Lacaton y Vassal, consigue, a través de la inclusión una nueva envolvente, generar un “espacio libre” perimetral. Albert Cuchí, en el n.º 219 del Croquis[36], invita a una reflexión sobre la necesidad de vincular la arquitectura a las condiciones climáticas, culturales y sociales con proyectos como las 42 viviendas sociales en Son Servera, Mallorca (2024), de los arquitectos Peris y Toral. Sus autores lo denominan “living in lime”. Todos estos ejemplos contemporáneos han sido capaces de generar espacios domésticos flexibles, sostenibles y habitables, a través de la reflexión sobre el límite que pasa a ser umbral, como estrategia fundamental.
Sara Fernández-Trucios (SFT); Tomás García García (TGG); Francisco Montero-Fernández (FMF). Conceptualización, metodología, análisis y preparación del escrito (SFT 33,3% - TGG 33,3% - FMF 33,3%). Autoría (SFT 33,3% - TGG 33,3% - FMF 33,3%)
Todos los/las autores/as declaran que no existe ningún conflicto de intereses con los resultados del trabajo.
VI Plan Propio de Investigación y Transferencia de la Universidad de Sevilla. Financiación para la Formación del Profesorado Universitario PIF II.2A.2021.
Sara Fernández Trucios (Sevilla, 1995); Arquitecta por la Universidad de Sevilla en 2020. Contratada predoctoral adscrita al departamento de Proyectos Arquitectónicos, ETSA Sevilla. Imparte docencia desde 2022 a la fecha en Grado en Fundamentos de la Arquitectura. Pertenece al G.I HUM-992 Arquitectura y Prospectiva. Comisaria de la I Bienal de Investigación en Arquitectura de la Universidad de Sevilla, 2024. Destaca la obtención de una Beca Fundación Arquia, 2018 por expediente académico. Ha publicado artículos en las revistas Arquitecturas del Sur (nº65 vol.42, 2024) y ASTRAGALO (nº35, 2024).
Tomás García García (Sevilla, 1969). ETSA Sevilla, arquitecto (1997), doctor arquitecto (2017), Profesor Contratado Doctor (2018), acreditado a Profesor Titular de Universidad (2024). Imparte docencia desde 1998 en el Departamento de Proyectos Arquitectónicos, en Máster Habilitante y Trabajo Final de Grado. Pertenece al G.I HUM-992 Arquitectura y Prospectiva. Premio Extraordinario de Doctorado por la Universidad de Sevilla, 2018. Premio a la mejor Tesis Doctoral leída en Universidades Españolas, 2018. Subdirector de Investigación en la ETSA de Sevilla desde 2023. Autor del libro Cartografías del Espacio Oculto (IUACC, 2018), y de numerosos artículos en la revista EGA (nº 23, 24, 25), Arquitecturas del Sur (nº 41, 65, 66), Revista de Arquitectura (nº20 y 25), Bitácora (nº 29).
Francisco Montero-Fernández (Sevilla, 1961). ETS de Arquitectura de Sevilla, arquitecto (1987), doctor arquitecto (1995), Catedrático de Proyectos Arquitectónicos (2021). Ejerce la docencia desde 1987 a la fecha en la ETS de Arquitectura de Sevilla. Ha impartido docencia en IUAV (Venecia) Universidad del Atlántico (Colombia) y en la Facultad de Letras de Oporto. Pertenece al G.I HUM-992 Arquitectura y Prospectiva. Becario de la Academia de Bellas Artes de España en Roma (1992 a 1993). Director de la Fundación FIDAS (1993-1997). Director de la ETS Arquitectura de Sevilla, Director General del Espacio Universitario de la Universidad de Sevilla. Autor numerosos artículos en las revistas Proyecto, Progreso y Arquitectura, RA, Humanidades, EGA, Boletín de Arte, Periferia. Ha dirigido 14 tesis doctorales leídas.
ARDITI, Gloria; SERRATTO, Cesare. Gio Ponti. Venti cristalli di architettura. Venezia: il Cardo, 1994. ISBN 88-8079-014-5.
BETTINI, Sergio. El espacio arquitectónico de Roma a Bizancio. Buenos Aires: CP67, 1992. ISBN 950-9575-42-9.
COVA MORILLO VELARDE, M.A. Objets: proyecto y maqueta en la obra de Le Corbusier. Directores: Amadeo Ramos Carranza, Caroline Maniaque Benton. Tesis doctoral. Universidad de Sevilla. Departamento de Proyectos Arquitectónicos, 2016. Disponible en: http://hdl.handle.net/11441/42791.
CUCHÍ, Albert. Una experiencia necesaria. En: El croquis. IBAVI 2019-2023. Una investigación colectiva. Madrid: El croquis editorial, 2023, n.º 219, pp. 360-373. ISSN-e 2174-0356.
HERTZBERGER, Herman. Lessons for Students in Architecture. Roterdam: 010 Publishers, 2005. ISBN 978-94-6208-319-6.
IRACE, Fulvio. Milano Moderna. Architettura e città nell’epoca della ricostruzione. Milán: Federico Morra Editore, 1996. ISBN 9788871791128.
LE CORBUSIER. Una pequeña casa. Buenos Aires: Infinito, 2008. ISBN 9789879393383.
MANGIAROTTI, Angelo; MORASSUTTI, Bruno. Sul principio della continuità dei prospetti. En: Domus. Milán: Domus, 1960, n.º 367, p. 9.
MANGIAROTTI, Angelo; MORASSUTTI, Bruno. Window wall: Flats, via Quadronno 24, Milan, Italy. En: The architects’ journal. Londres: Emap. 1965, vol.142 n.9, pp.505-506.
MARTÍNEZ ARROYO, Carmen; PEMJEAM MUÑOZ, Rodrigo. Las mil y una vidas en el edificio Quadronno de Mangiarotti y Morassutti. La fachada flexible. En: En Blanco. Revista de Arquitectura [en línea]. Valencia: Editorial Universidad Politécnica de Valencia, 2024, n.º 36, pp.124-134 [consulta: 15-03-2025]. ISSN-e 2445-1215. DOI: https://doi.org/10.4995/eb.2024.20690. Disponible en: https://polipapers.upv.es/index.php/enblanco/article/view/20690.
MONTANER, Josep Maria. La arquitectura de la vivienda colectiva: políticas y proyectos en la ciudad contemporánea. 1.ª ed. Barcelona: Editorial Reverté, 2015. ISBN 978-84-291-2126-1.
MONTANER, Josep Maria; MUXI MARTÍNEZ, Zaida. Habitar el presente. Vivienda en España: Sociedad, ciudad, tecnología y recursos. Madrid: Ministerio de Vivienda, 2006. ISBN 978-84-96387-23-2.
MORETTI, Luigi. Ricerche di architettura. Sulla flessibilità di funzione di un complesso immobiliarie. En: Spazio. Roma: Luigi Moretti, 1951-1952, n.º 6, pp. 43-44.
PALLASMAA, Juhani; La mano que piensa: sabiduría existencial y corporal en la arquitectura. Barcelona: Gustavo Gili, 2012. ISBN 9788425233920.
PARICIO, Ignacio; SUST, Xavier. La vivienda contemporánea. Programa y tecnología. Barcelona: Instituto de Tecnología de la Construcción de Cataluña, 2000. ISBN 978-84-7853-396-1.
PIERINI, Orsina Simona; ISASTIA, Alessandro. Case Milanesi, 1923-1973. Cinquant’anni di architettura residenziale a Milano. Milán: Hoepli, 2020. ISBN 9788820380915.
PONTI, Gio. La finestra arredata. En: Domus. Milán: Domus, 1954, n.º 298, pp. 17-20.
PONTI, Gio. Giorno e notte. En: Domus. Milán: Domus, 1956, n.º 320, p. 7.
RAMOS-CARRANZA, Amadeo; TRILLO-MARTÍNEZ, Valentín. Manuel Trillo de Leyva: Obra completa 1964-2005. Sevilla: Colegio Oficial de Arquitectos de Sevilla, 2024. ISBN 9788412809206
ROGERS, Ernesto. Le preesistenze ambientali e i temi pratici contemporanei. En: Casabella. Milán: Mondadori Media, 1954, n.º 204, pp. 3-6.
TRILLO DE LEIVA, Juan Luis; MONTERO FERNÁNDEZ, Francisco Javier; LÓPEZ FERNÁNDEZ, Andrés, eds. Viviendas experimentales, estudio y proyecto de nuevos modelos [en línea]. Sevilla: Junta de Andalucía. Consejería de Fomento, Articulación del Territorio y Vivienda, 2008 [consulta: 15-03-2025]. ISBN 978-84-691-3398-9. Disponible en: https://www.juntadeandalucia.es/organismos/fomentoarticulaciondelterritorioyvivienda/areas/vivienda-rehabilitacion/planes-instrumentos/paginas/proyecto-viviendas-experimentales.html.
TRILLO-MARTÍNEZ, Valentín; AMORES CARREDANO, Fernando. Itálica. Revisión crítica de cuatro casas romanas sin ventanas. En: Proyecto, Progreso, Arquitectura. Arquitecturas para tiempos cálidos [en línea]. Sevilla: Editorial Universidad de Sevilla, 2022, n.º 26, pp. 32-47 [consulta: 15-03-2025]. ISSN-e 2173-1616. DOI: https://doi.org/10.12795/ppa.2022.i26.02.
ZUCCHI, Zino. Condominio XXI Aprile a Milano (1951-1953). Mario Asnago, Claudio Vender. Genova: Sagep, 1993. ISBN 9788870585063.
[1] MONTANER, Josep Maria; MUXI MARTÍNEZ, Zaida. Habitar el presente. Vivienda en España: Sociedad, ciudad, tecnología y recursos. Madrid: Ministerio de Vivienda, 2006, p. 24. ISBN 978-84-96387-23-2.
[2] PARICIO, Ignacio; SUST, Xavier. La vivienda contemporánea. Programa y tecnología. Barcelona: Instituto de Tecnología de la Construcción de Cataluña, 2000, p. 49. ISBN 978-84-7853-396-1.
[3] “(…) radica en establecer unas ossatures que permitan la interrelación entre exterior e interior. En definitiva, una sublimación de aquella fachada libre que separó la estructura del cerramiento”. COVA MORILLO VELARDE, M.A. Objets proyecto y maqueta en la obra de Le Corbusier. Directores: Amadeo Ramos Carranza, Caroline Maniaque Benton. Tesis doctoral. Universidad de Sevilla, Departamento de Proyectos Arquitectónicos, 2016, p. 302. Disponible en: http://hdl.handle.net/11441/42791.
[4] Ibíd., p. 77.
[5] BETTINI, Sergio. El espacio arquitectónico de Roma a Bizancio. Buenos Aires: CP67, 1992, p. 29.
[6] AA.VV. Viviendas experimentales, estudio y proyecto de nuevos modelos [en línea]. Sevilla: Junta de Andalucía. Consejería de Fomento, Articulación del Territorio y Vivienda. Febrero 2008, Tomo 6, p. 16 [consulta: 15-03-2025]. Disponible en: https://www.juntadeandalucia.es/organismos/fomentoarticulaciondelterritorioyvivienda/areas/vivienda-rehabilitacion/planes-instrumentos/paginas/proyecto-viviendas-experimentales.html
[7] “Construir un edificio en un ambiente ya caracterizado por obras de otros artistas, impone la obligación de respetar esta presencia”. ROGERS, Ernesto. Le preesistenze ambientali e i temi pratici contemporanei. En: Casabella. Milán: Mondadori Media, 1954, n.º 204, pp. 3-6.
[8] MORETTI, Luigi. Ricerche di architettura. Sulla flessibilità di funzione di un complesso immobiliarie. En: Spazio. Roma: Luigi Moretti, 1951-1952, n.º 6, pp. 43-44.
[9] PALLASMAA, Juhani. La mano que piensa: sabiduría existencial y corporal en la arquitectura. Barcelona: Gustavo Gili, 2012. ISBN 9788425233920.
[10] Esta metodología de trabajo en tres escalas junto a la identificación de tres modos de hacer diversos, es lo que nos ha llevado a seleccionar estos tres casos de estudio. A nuestro juicio, la concepción de cada uno de los proyectos ha sido fruto de la preocupación por una escala en particular, sin que ello implique descuidar las otras dos. Asnago y Vender atienden con más intensidad a la escala de la ciudad, Gio Ponti a la de la casa y Mangiarotti e Morassutti al detalle.
[11] ZUCCHI, Zino. Condominio XXI Aprile a Milano (1951-1953). Mario Asnago, Claudio Vender. Genova: Sagep, 1993, p. 10. ISBN 9788870585063.
[12] LE CORBUSIER. Una pequeña casa. Buenos Aires: Infinito, 2008. ISBN 9789879393383.
[13] En invierno, el hueco se convierte en un colchón térmico que contiene aire que ha sido calentado por el sol, protegiendo los espacios domésticos del frío exterior. Sin embargo, en verano, los usuarios abren la carpintería exterior y activan nuevas capas antes ocultas. Las persianas, los estores, y la vegetación ahora frondosa, se hacen visibles para proteger la casa de la incidencia solar.
[14] La estrecha relación entre los arquitectos y los usuarios que iban a vivir y trabajar allí -directivos de una empresa siderúrgica-, hizo que la distribución de cada apartamento se adaptase a las necesidades de cada familia. En consecuencia, los tabiques que dividen las estancias principales de la casa adquirieron en cada planta una posición diferente.
[15] En la planta observamos que el cuarto nivel aloja una vivienda y el sexto dos. Esto implica que el espacio que ocupa la antecámara se sustituya por una “salita” y una cocina dos plantas por encima. El salón y la biblioteca se convierten en un espacio sala-comedor más dormitorio. Igualmente, otras transformaciones motivadas por la libertad de posición de los tabiques suceden en las demás plantas.
[16] Polivalencia no es igual a flexibilidad. Un espacio polivalente “puede utilizarse de diversas maneras sin tener que sufrir cambios, de modo que una mínima flexibilidad pueda dar lugar a una solución óptima”. HERTZBERGER, Herman. Lessons for Students in Architecture. Rotterdam: 010 Publishers, 2005, pp.146-149. ISBN 978-94-6208-319-6.
[17] PARICIO, Ignacio; SUST, Xavier, op. cit. supra, nota 2, p. 25.
[18] El texto analiza el conjunto habitacional, con especial atención a la casa de Ponti, el cual diseña una carpintería que es mueble al mismo tiempo aportando un valor añadido a la flexibilidad de esta vivienda.
[19] Son particiones con pliegue tipo acordeón con la capacidad de amortiguar el ruido, dando respuesta a uno de los principales problemas de los cierres móviles, su resistencia acústica.
[20] Un cajón de persiana continuo en toda la longitud de la terraza posibilita futuros cambios en tamaño y disposición de huecos, favoreciendo la flexibilidad de la fachada.
[21] En la casa de Ponti el dormitorio de la pareja y el salón-comedor pueden asociarse con el estudio del arquitecto, generando una continuidad visual de exterior a exterior. Las estancias al sur se pueden unificar en un solo ambiente pasante, ofreciendo una visión unitaria de la fachada principal desde el interior; de la misma manera el espacio del salón-comedor se puede transformar en el estudio del arquitecto.
[22] En Weissenhof el perímetro de la casa es un “espacio continuo” y bien iluminado, que invita al usuario a disponer en él el mobiliario, pero sin incorporarlo de forma fija a la carpintería como hace Ponti.
[23] “Una habitación tiene, por naturaleza, cuatro paredes. La habitación con una gran ventana panorámica de vidrio, en cambio, tiene solo tres paredes y un vacío. Una habitación con una ventana amueblada vuelve a tener cuatro paredes, de las cuales una es transparente”. PONTI, Gio. La finestra arredata. En: Domus. Milán: Domus, 1954, n.º 298, pp. 17-20.
[24] “Como la arquitectura se ha vuelto luminosa en sí misma, a través de la transparencia y el reflejo, podemos regular su apariencia nocturna en un aspecto nuevo, predeterminado y completamente diverso al del día (…). Y por esto es necesario el proyecto nocturno y no solo el diurno”. PONTI, Gio. Giorno e notte. En: Domus. Milán: Domus, 1956, n.º 320, p. 7.
[25] IRACE, Fulvio. Milano Moderna. Architettura e città nell’epoca della ricostruzione. Milán: Federico Morra Editore, 1996, p. 67. ISBN 9788871791128.
[26] ARDITI, Gloria; SERRATTO, Cesare. Gio Ponti. Venti cristalli di architettura. Venezia: il Cardo, 1994, p. 162. ISBN 88-8079-014-5.
[27] PIERINI, Orsina Simona; ISASTIA, Alessandro. Case Milanesi, 1923-1973. Cinquant’anni di architettura residenziale a Milano. Milán: Hoepli, 2020, p. 339. ISBN 9788820380915.
[28] MANGIAROTTI, Angelo; MORASSUTTI, Bruno. Sul principio della continuità dei prospetti. En: Domus. Milán: Domus, 1960, n.º 367, p. 9.
[29] TRILLO DE LEIVA, Juan Luis; MONTERO FERNÁNDEZ, Francisco Javier; LÓPEZ FERNÁNDEZ, Andrés, eds. Viviendas experimentales, estudio y proyecto de nuevos modelos [en línea]. Sevilla: Junta de Andalucía. Consejería de Fomento, Articulación del Territorio y Vivienda, 2008, tomos 2, 3, 4, p. 438 [consulta: 15-03-2025]. ISBN 978-84-691-3398-9. Disponible en: https://www.juntadeandalucia.es/organismos/fomentoarticulaciondelterritorioyvivienda/areas/vivienda-rehabilitacion/planes-instrumentos/paginas/proyecto-viviendas-experimentales.html.
[30] MONTANER, Josep Maria. La arquitectura de la vivienda colectiva: políticas y proyectos en la ciudad contemporánea. 1.ª ed. Barcelona: Editorial Reverté, 2015, p. 69. ISBN 978-84-291-2126-1.
[31] En la actualidad se observa que algunos usuarios han hecho desaparecer dos de las cuatro logias que había al inicio de su construcción. Además, ha aumentado discretamente la cantidad de paneles opacos coincidiendo generalmente con los dormitorios de las plantas más bajas.
[32] MARTÍNEZ ARROYO, Carmen; PEMJEAM MUÑOZ, Rodrigo. Las mil y una vidas en el edificio Quadronno de Mangiarotti y Morassutti. La fachada flexible. En: En Blanco. Revista de Arquitectura [en línea]. Valencia: Editorial Universidad Politécnica de Valencia, 2024, n.º 36, p. 130 [consulta: 16-03-2025]. ISSN-e 2445-1215. DOI: https://doi.org/10.4995/eb.2024.20690.
[33] Los arquitectos proyectan un sistema de capas formado por dos cortinas interiores, la primera para el deslumbramiento y proteger al habitante de las miradas indiscretas y la segunda más pesante para evitar las pérdidas de calor por la noche, y un toldo de lona exterior oculto tras la cornisa. MANGIAROTTI, Angelo; MORASSUTTI, Bruno. Window wall: Flats, via Quadronno 24, Milan, Italy. En: The Architects’ Journal. Londres: Emap. 1965, vol.142, n.º 9, pp. 505-506. ISSN 0003-8466.
[34] TRILLO MARTÍNEZ, Valentín; AMORES CARREDANO, Fernando. Itálica. Revisión crítica de cuatro casas romanas sin ventanas. En: Proyecto, Progreso, Arquitectura. Arquitecturas para tiempos cálidos [en línea]. Sevilla: Editorial Universidad de Sevilla, 2022, n.º 26, pp. 32-47 [consulta: 16-03-2025]. ISSN-e 2173-1616. DOI: https://doi.org/10.12795/ppa.2022.i26.02.
[35] RAMOS-CARRANZA, Amadeo; TRILLO MARTÍNEZ, Valentín. Manuel Trillo de Leyva: Obra completa 1964-2005. Sevilla: Colegio Oficial de Arquitectos de Sevilla, 2024, p. 26. ISBN 9788412809206,
[36] CUCHÍ, Albert. Una experiencia necesaria. En: El croquis. IBAVI 2019-2023. Una investigación colectiva. Madrid: El Croquis Editorial, 2023, n.º 219, pp. 360-373. ISSN-e 2174-0356.