|
Proyecto, Progreso, Arquitectura. N32 (2025) Arquitectura flexible Mayo 2025 ISSN 2171–6897 / ISSNe 2173–1616 © 2025. E. Universidad de Sevilla. Creative Commons Attribution-NonCommercial-ShareAlike 4.0 International (CC BY-NC-SA 4.0) |
|
Jorge Tárrago Mingo
0000-0002-1749-1550
Persona de contacto / Corresponding author: jtarrago@unav.es. Universidad de Navarra. España.
Javier Pérez-Herreras
0000-0002-6671-3260
Recepción: 03-09-2024. Aceptación: 13-03-2025
Cómo citar:
TÁRRAGO MINGO, Jorge y PÉREZ-HERRERAS, Javier. Flexibilidad, permanencia y cambio en arquitectura. En: Proyecto, Progreso, Arquitectura. Sevilla: Editorial Universidad de Sevilla, mayo 2025, nº 32, Arquitectura flexible, pp. 32-47. https://dx.doi.org/10.12795/ppa.2025.i32.02
|
RESUMEN Algunas de las razones para prolongar la vida de los edificios son su obsolescencia o la necesidad de usos nuevos, en tanto una condición de la arquitectura es su inevitable temporalidad. También nuestra manera de entender una misma arquitectura cambia: sus significados culturales, sociales, políticos o intereses de la crítica arquitectónica cambian en el tiempo. Los autores que más han tratado el concepto de flexibilidad en arquitectura suelen fijarse precisamente, entre otras, en su capacidad de cambio en el tiempo. Este artículo presenta dos modos en los que la flexibilidad, como capacidad de cambio, deriva en su condición de permanencia: bien incluyendo al cambio como variable inicial del proyecto, o bien en una en la que el arquitecto es intérprete y aporta nuevas capas de significado a lo ya construido. Para el primer caso, se proponen algunos ejemplos de la reciente arquitectura francesa, singularmente de Lacaton & Vassal; para el segundo caso, se recurre al texto de Rafael Moneo La vida de los edificios y su cita a Opera aperta de Umberto Eco. Se concluye que en ambos casos se entiende la arquitectura como “proyecto abierto”. El artículo presenta estos dos particulares sentidos del concepto de flexibilidad que lo vinculan al cambio y la permanencia. Y acaba con un tercero más conocido pero inesperado, donde la permanencia reside en una arquitectura cuyo significado y tiempo son invariables, cerrados. PALABRAS CLAVE flexibilidad; permanencia; cambio; arquitecto intérprete; Rafael Moneo; Umberto Eco. |
SUMMARY A building’s life may be prolonged for various reasons, including because it is becoming obsolete or to adapt it to new uses, temporality being an inevitable condition of all architecture. Our way of understanding any particular architecture also changes as its cultural, social, political meanings – or the interests of architectural criticism – change over time. The authors who most frequently address the concept of flexibility in architecture tend to focus precisely on architecture’s ability to change over time, among other aspects. This article examines two ways in which flexibility as capacity for change derives from a condition of permanence, either through the inclusion of change as a fundamental variable of the project, or through the the architect’s work as an interpreter who brings new layers of meaning to existing constructions. Some recent examples in French architecture – and in particular Lacaton & Vassal – will be cited to illustrate the first of these ideas, while the text La vida de los edificios by Rafael Moneo and his citation of Umberto Eco’s Opera aperta are employed in reference to the second. In both cases, architecture is understood as an “open project”. This article explores these two distinct senses of the term flexibility that link it to change and permanence. It ends with a better known – but more surprising – third aspect of flexibility, in which permanence can also found in an architecture whose meaning and time are invariable, closed. KEYWORDS flexibility; permanence; change; interpreter architect; Rafael Moneo; Umberto Eco. |
Cuando decimos que una determinada arquitectura nos parece rígida, queremos indicar que no permite hacer cambios y adaptarse a una necesidad, o a un deseo concreto, o responder a una realidad cambiante en un tiempo inmediato o más prolongado. Y quizá, por oposición, entendemos su contrario. Es decir, la flexibilidad de una determinada arquitectura se plantea, habitualmente, como un mecanismo asociado al cambio y a la permanencia. Dicho de otro modo, se asocia al tiempo, cosa que, por otro lado, y a diferencia de otras manifestaciones, es parte de su esencia. La flexibilidad es, visto así, una manera de subsistencia para aquellas arquitecturas que desean vencer al tiempo (figura 1).
1. Grabado “Fiesta para oficiales de las fuerzas inglesas y francesas, y el ejército y marina griega, en la acrópolis de Atenas”.
Es una obviedad asegurar que la arquitectura cambia. Una condición inevitable es su temporalidad. Y, al contrario, la atemporalidad es una aspiración. La necesidad de prolongar su vida, evitar su obsolescencia o incorporar nuevos usos, explican en parte por qué la arquitectura cambia. La arquitectura ha sido también en muchas ocasiones una actividad de aprovechamiento, construyéndose y cambiando a partir de lo ya construido (figura 2). Las ramificaciones de esta confrontación con el tiempo son muchas más que las que provienen del propio edificio, sea una obra nueva o ya construida. Afectan también a la dialéctica entre la nueva arquitectura y la ciudad ya construida[1].
2. El Teatro Marcelo en Roma (año 13 a.C.) convertido en viviendas según un grabado de Giovanni Battista Piranesi (1720-1778), ca. 1757.
También nuestra manera de entender la arquitectura cambia. Su significado cultural, social o político, o los intereses de la crítica, cambian a más velocidad y más a menudo que el modo en el que la vemos o la usamos[2]. Cualquier edificio se encuadra en un contexto social y cultural que no es estático y del que recibe parte de su significado y de las lecturas que hacemos de él. En ocasiones estos significados y lecturas cambian ligeramente, o bastante, con los distintos contextos sociales y culturales que se dan en cada época. Con esto no nos referimos a sucumbir a un “presentismo” en arquitectura. Ni tampoco al problema constantemente abordado por historiadores y críticos en cuanto a la relación entre el presente desde el que entendemos, vemos o usamos una arquitectura pasada que se pretende describir ahora. Más bien queremos decir que nada tiene de extraño asumir que a causa de su permanencia nuestra mirada sobre ella cambie[3]. Cualquier método histórico-crítico se enfrenta siempre a esa relación compleja entre pasado y presente. Esta sería sin duda una manifestación del cambio en la arquitectura algo más compleja de las que asociamos al concepto de flexibilidad (figura 3).
3. Durante la década de 1950, bajo el gobierno comunista checo, la Villa Tugendhat fue usada, sin alteraciones, como centro estatal de gimnasia terapéutica para jóvenes.
Los autores que más han tratado este concepto, como Robert Kronenburg, explican que la flexibilidad es “una respuesta al cambio de los edificios a lo largo de su vida”[4]. Para estos, las arquitecturas más flexibles tienen ventajas: “pueden usarse durante más tiempo, se adecuan mejor a su finalidad, albergan la experiencia y la intervención de los usuarios, sacan partido de las innovaciones técnicas con mayor facilidad, y son económicas y tecnológicamente más viables”. Es decir, una arquitectura flexible es aquella pensada para “un uso, funcionamiento o ubicación cambiantes (…), que se adapta, en lugar de estancarse: es móvil en lugar de estática e interactúa con los usuarios en lugar de inhibirlos”. Y no es solo “producto del deseo y la posibilidad, sino también de la economía y de la necesidad”[5]. Por eso es frecuente que flexibilidad, movilidad y adaptabilidad sean términos más o menos comunes. Según Ewald Bubner, una arquitectura adaptable tiene rasgos específicos en su forma y en su uso, permite los cambios en los espacios internos y puede cambiar de lugar o posición para responder a las diferentes necesidades humanas[6].
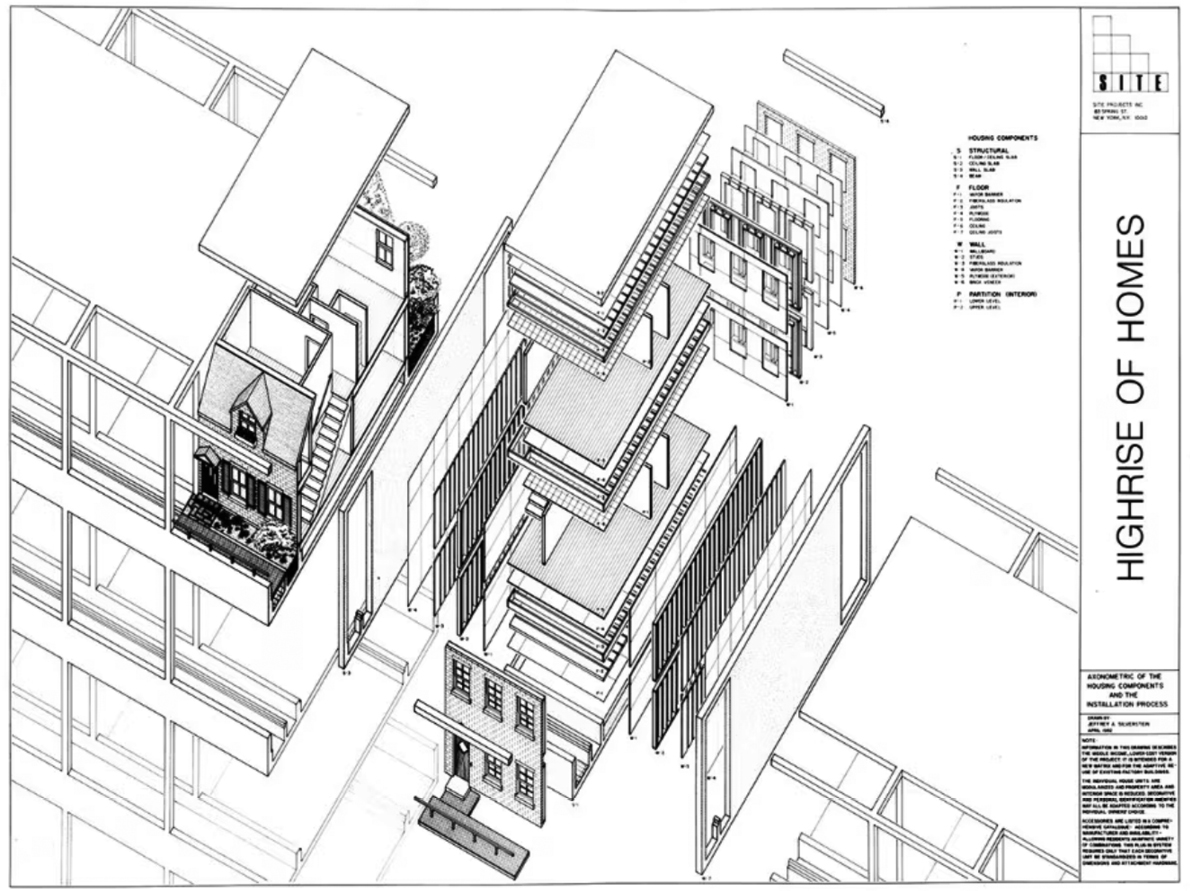
Como se puede advertir, el alcance de los conceptos y consideraciones en los que se ve envuelta la flexibilidad son bastante amplios. Pero de todos los enfoques posibles, nos queremos detener en dos maneras aparentemente distintas de abordarla. Ambas como estrategias operativas más favorables al cambio y a la permanencia, y que consideran la arquitectura como un ‘proyecto abierto’ (figura 4).
4. James Wines. Esquemas del proyecto Highrise of Homes (1981).
La estrategia que considera la flexibilidad como cambio constante, donde caben nuevas realidades y relaciones en el tiempo, ha quedado bien trazada en los planteamientos de la esfera francesa reciente. Esta entiende la arquitectura no como un algo estático, sino como “resultado de una serie de transformaciones físicas que acontecen a lo largo del tiempo -y no solo a través del movimiento, o de las diversas formas de percepción e imaginación-”[7]. La arquitectura estaría en permanente cambio, sería siempre un “proyecto en movimiento” que asume, como aspectos naturales desde el inicio, variables como la transformación hecha por sus usuarios o su deterioro, siguiendo las tesis de Bruno Latour y Albena Yaneva[8]. Esta condición se incorpora al proceso de proyecto y, pensada así, la arquitectura es agente de otros cambios que ni siquiera estaban previstos. O que incluso son opuestos a los que cabría esperar. Coinciden con Rem Koolhaas en incluir la indeterminación como parte del proyecto cuando este aseguraba que “la flexibilidad no es la anticipación exhaustiva a todos los cambios posibles. Muchos cambios son impredecibles (…). La flexibilidad es la creación de una capacidad de amplio margen que permita diferentes e incluso opuestas interpretaciones y usos”[9].
La indeterminación como base contemporánea contenida en el concepto de flexibilidad, se advierte con claridad en la obra de Lacaton & Vassal cuando aseguran proyectar con la temporalidad. Y proponen una arquitectura que, paradójicamente, se torna atemporal, en tanto que es capaz de asumir un cambio constante. Para ello, como explican en uno de sus escritos seminales, La libertad estructural, condición del milagro, suelen plantear una estructura portante del edificio de una cierta “desmesura”. Se calcula con valores de capacidad de carga muy por encima de su optimización de uso, lo que “concede al usuario la libertad de moverse, de plantear actividades donde sea”[10]. Es una flexibilidad que para ellos se completa con sistemas constructivos y materiales livianos e independientes de aquella y que podrán variarse y sustituirse. La estructura se convierte en un soporte donde se pueden dar relaciones de distinta escala -o superposiciones- y que posibilita el cambio que más tarde o más temprano llegará al edificio. Es una arquitectura que alcanza su verdadero sentido en el permanente cambio. No solo eso, celebra la temporalidad.
Quizá el proyecto que nos ofreció este planteamiento de modo más lúcido, fue el de la Escuela de Arquitectura de Nantes (2009). El ‘espacio programado’, el ‘espacio libre apropiable’ y el ‘espacio exterior’, se superponen en una estructura portante de cuatro niveles en una retícula de soportes de 11,66 por 10,71 metros. El ‘espacio programado’, es decir, fijado para cada uso de la Escuela, se determina como el estrictamente necesario en forma de aulas, auditorio, talleres y servicios. Y se propone un espacio libre interior y exterior ‘desprogramado’, un “espacio extra”[11] sobredimensionado que puede asumir funciones diversas y es capaz de suscitar relaciones nuevas y adaptarse a los intereses del usuario. También el modo en el que se recorre el edificio, con transiciones entre el dentro y el fuera, recorridos sin determinar, espacios vacíos sin definición de simples y dobles alturas y visuales diagonales, desencadenan un diálogo abierto de transformación, poniendo en manos del usuario la comprensión de la arquitectura a cada momento (figuras 5 y 6).
5. Fotogramas de la película de Philippe Ruault sobre la Escuela de Arquitectura de Nantes precedidos de otro de texto que reza: “En cronstruisant une structure de grande capaciré, le projet invente un dispositif capable de créer un ensemble de situations riches et diverses, intéressant l’Ecole d’Architecture, la ville et le paysage”.
6. Arriba: Secciones de la Escuela de Arquitectura de Nantes. Abajo: Estructura de la Escuela de Arquitectura de Nantes en construcción.
Pero también se percibe esa misma estrategia cuando se enfrentan a una arquitectura ya construida. Es el caso del proyecto para la renovación de Palais de Tokio (París, 1999-2014) como ‘lugar de creación contemporánea’. Fruto de un concurso fallado en 1999 y un desarrollo de obra en varias fases durante más de doce años, lo provisional y la temporalidad e incertidumbre sobre un proceso constructivo muy dilatado y de muy bajo coste, y el uso indefinido y sin jerarquías del espacio para la exhibición de arte, se elevan al modo de estrategias proyectuales. El Palais, construido para la Exposición Internacional de París de 1937, había ido sufriendo diversas transformaciones en el tiempo como Museo Nacional de Arte Moderno y Palais du Cinéma. Los arquitectos se encuentran con un edificio malogrado, pero con una arquitectura “que ya estaba allí”: apenas hacer, consolidar y reducir al mínimo las operaciones, fruto de la economía, pero también como manera de “crear unos espacios porosos”[12]. Y disponer de la superficie para la espontaneidad[13] y contar con la apropiación de los usuarios (figura 7).
7. Palais de Tokio.
Esta indefinición del uso y del espacio se abre a una relación optimista con un tiempo próximo y propio. “Esta actitud desdibuja la relación del proyecto con el tiempo”[14], lo suspende y de ese modo la estructura portante, diseñada como en Nantes o encontrada como en París, no es un elemento anterior a una ocupación, ni un después, sino un marco donde se urde lo inesperado. Muestra cómo la arquitectura responde a la realidad más cruda, sin una mediación abstracta o teórica, indiferente a los mecanismos de la composición disciplinar.
Una actitud parecida se reconoce entre los arquitectos franceses pertenecientes a una generación más joven, ejemplo de ello es la obra del Studio Mutuo, que explora la capacidad de adaptación a un programa cambiante, o la de Philippe Rahm, que introduce el clima y el ambiente como factores determinantes de la flexibilidad. También en la obra del equipo Bruther, que avanzan en la cuestión al plantear que en la planta abierta, la adaptabilidad, la flexibilidad y la neutralidad “no están concebidas para responder a funciones estáticas sino, al contrario, para satisfacer un programa abierto” a posibilidades futuras. La búsqueda de flexibilidad se apoya, de nuevo, en un sistema estructural que ayuda a la “indeterminación programática y la flexibilidad de uso”[15].
Más que edificios plantean “estructuras económicas equipadas”, pendientes de un ciclo de vida que afecta a sus componentes constructivos, a su mantenimiento y durabilidad, y también a su viabilidad económica y social. Y si se aspira a un ciclo largo, esto requiere contar con la adaptabilidad y el cambio de usos. No se improvisa, obliga a tomar decisiones formales y de diseño en origen para el control económico y de consumo de energía en cada momento[16]. Lo que nos recuerda fácilmente a los conocidos principios del ‘Open Building’ que avanzase en la década de los años sesenta del siglo pasado N.J. Habraken en El diseño de soportes. Esto es, separar lo inamovible, el soporte, de lo que puede cambiar según la necesidad del usuario en cada momento[17]. Esto se propone, por ejemplo, en la Residencia de estudiantes y aparcamiento reversible en Palaiseau (2016) proyectada junto con el estudio Baukunst, donde la trama de estructura neutra del edificio promete ser capaz de recoger un cambio de usos futuro previsto y, aquí sí, en parte programado (figura 8).
8. Arriba: Interior del aparcamiento en la Residencia de estudiantes y aparcamiento reversible en Palaiseau. Abajo: Esquema de la adaptación de programa.
En definitiva, la flexibilidad, el cambio, la permanencia de la arquitectura, se instala en la relación independiente entre el programa de necesidades y la superficie construida, en su superposición. Esto se concreta, en primer lugar, en un sistema constructivo basado en la sobredimensión de la capacidad portante de la estructura. Y, además, en un sentido peculiar, que renuncia a sus valores plásticos y se satisface con su condición de soporte y herramienta de cambio. El cambio reside para ellos en la desconexión entre estructura y los sistemas constructivos livianos que acogen los usos, actuales y futuros. Y en una consideración del tiempo particular. No a un antes y un después, sino a dos temporalidades que desde intenciones nuevas hacen surgir otra distinta que no se impone: un tercer lugar de fenómenos inesperados. “Esa tercera realidad, nacida de la superposición de estratos y temporalidades en un lugar, es milagrosa”[18].
Y se concreta también, en segundo lugar, en una cierta indiferencia de uso, en un programa de necesidades que, o no se considera del todo relevante, o se asume cambiante e inespecífico, o ambas cosas. Surge así una arquitectura convertida en un sistema relacional, abierto a las diferentes miradas y diálogos. Más que la autonomía del objeto o la afirmación de lo privado, como señala Nicolas Bourriad, primer director de Palais de Tokio, son las “interacciones humanas y su contexto social”[19] las que acaban y acabarán definiendo la arquitectura. La estructura se extiende hasta donde la normativa o la economía lo permite. Y el programa se elude con neutralidad y la clara intención de dotar a la arquitectura de la mayor capacidad relacional posible. La arquitectura se abandona en la economía de lo posible, en la celebración de lo cotidiano. El proyecto es cambiante, es expresión de cada momento y se desarrolla a largo plazo (figura 9).
9. Un partido de bádminton. Escuela de Arquitectura de Nantes.
Ahora bien, ¿es la alteración física la que permite a la arquitectura ser flexible y permanecer en el tiempo? ¿Lo es la indeterminación del programa? ¿Cabría entender el cambio desde otras perspectivas? Dicho de otro modo, ¿hay otras formas de extender la vida de los edificios y que entonces podamos definirlos como flexibles?
“La vida de los edificios. Las ampliaciones de la mezquita de Córdoba”, es el título de un artículo escrito por Rafael Moneo y publicado en 1985 en la revista Arquitectura[20]. Unos años antes, en mayo de 1977, había sido el de una conferencia dictada en la Harvard Graduate School of Design con el encargo de hablar sobre arquitectura española. Entre los objetivos de la conferencia y del artículo después, estaba responder a las propuestas estructuralistas que desde la esfera del lenguaje estaban entonces en el centro del debate académico y disciplinar[21]. Y que, llevadas al ámbito del análisis de la arquitectura, a lo que cualquier crítico debía someterse -decía Moneo- suponían detectar una estructura formal profunda de esta.
Con el ejemplo de la Mezquita de Córdoba y a través de una narración bastante detallada de la historia del proyecto y el examen minucioso de sus elementos constructivos a lo largo de sus más de ocho siglos de evolución, Moneo concluye cómo cabría reconocer una esencia atemporal. Reconocer mediante el análisis cuidadoso de la arquitectura construida unos valores originales sostenidos en el tiempo por cada arquitecto, nos permitirían apreciar y proponer los siguientes cambios (figura 10).
10. Página de “La vida de los edificios Las ampliaciones de la Mezquita de Córdoba”.
Cada edificio contendría una esencia, lógica y rasgos formales de lectura tan evidentes que cualquier cambio devendría de una manera natural. Y la arquitectura lo asumiría, prolongándose así en el tiempo, permitiría “el milagro de su evolución en el tiempo”[22]. O expresado de otro modo, “la vida de los edificios está soportada por su arquitectura, por la permanencia de sus rasgos más característicos y, aunque parezca una paradoja, es tal permanencia la que permite apreciar los cambios”[23].
Esta noción de continuidad se advierte con distintos matices en su obra, dedicada en varias ocasiones a la ampliación o intervención sobre arquitecturas ya construidas. En la ampliación de la Estación de Atocha (1984-1992), el Museo Thyssen-Bornemisza (1989-1992), o el Museo del Prado (1998-2007), la ampliación del Banco de España (1978-2006) en Madrid; pasando por la ampliación del Ayuntamiento de Murcia (1991-1998), el Archivo General y Real de Navarra (1994-2003) en Pamplona, por citar solo unas pocas, están más o menos implícitas por parte del arquitecto el reconocimiento de una realidad previa y sus lógicas, su análisis histórico y constructivo, y la anticipación de un cambio futuro en su extensión o en propiciar el cambio de uso. Esto es, en una arquitectura que “ha de aceptar la continuidad como norma”[24].
Apuntaba también Moneo en la conferencia cómo “el deseo de tener en cuenta el continuo cambio, consiguiendo así que una obra de arquitectura responda adecuadamente al paso del tiempo, ha llevado a introducir los conceptos de flexibilidad y multifuncionalidad”[25]. En suma, la permanencia de la arquitectura, su flexibilidad, supondría detectar “una estructura formal profunda”, unos principios disciplinares originales, que se mantendrían “suficientemente sólidos” en el tiempo, que estarían definidos con una claridad igualmente suficiente y que cabría reconocer (y por ello respetar) a cada momento de cambio y por cada arquitecto. Confiar en esos principios formales inteligibles y lógicos, y en categorías y atributos firmes de los procesos de diseño hace que la arquitectura se “prolongue en otras arquitecturas”[26]. La arquitectura está sometida al paso de tiempo, pero a diferencia de otras manifestaciones también puede envejecer -ser flexible- de una manera singular, mediante ampliaciones, reformas, reparaciones. Esta sería otra manera de entender la flexibilidad como cambio.
Dando un paso más, quizá se comprenda mejor este giro que proponemos, advirtiendo también lo que Moneo decía en la misma conferencia en relación a la ‘vida del edificio’. El arquitecto, en primer lugar, “conseguiría que su obra soportase el paso del tiempo siempre que su proyecto pudiera ser calificado como ‘abierto’”[27]. En pleno auge de las teorías estructuralistas del lenguaje, Moneo indicaba precisamente el paralelo de este tipo de arquitectura abierta con el lenguaje y la Opera aperta de Umberto Eco, entonces en el debate académico. La estructura del texto (cámbiese por de la arquitectura) no es fija, sino que soporta muchas otras lecturas, abiertas a cada lector, que rescribiría así el mismo texto (la misma arquitectura) cada vez, extendiéndolo en el tiempo:
“La poética de la obra ‘abierta’ tiende (…) a promover en el intérprete ‘actos de libertad consciente’, a colocarlo como centro activo de una red de relaciones inagotables entre las cuales él instaura la propia forma sin estar determinado por una necesidad que le prescribe los modos definitivos de la organización de la obra disfrutada; pero podría objetarse (…) que cualquier obra de arte, aunque no se entregue materialmente incompleta, exige una respuesta libre e inventiva, si no por otra razón sí por la de que no puede ser realmente comprendida si el intérprete no la reinventa en un acto de congenialidad con el autor mismo. Pero esta observación constituye un reconocimiento de que la estética contemporánea ha actuado solo después de haber adquirido una madura conciencia crítica de lo que es la relación interpretativa, y sin duda un artista de unos siglos atrás estaba muy lejos de ser críticamente consciente de esta realidad. Ahora, en cambio, tal conciencia está presente sobre todo en el artista, el cual, en vez de sufrir la ‘apertura’ como dato de hecho inevitable, la elige como programa productivo e incluso ofrece su obra para promover la máxima apertura posible”[28].
Y en segundo lugar, se soportaría el paso del tiempo con el análisis minucioso de la obra de arquitectura previa, convirtiendo a cada siguiente arquitecto en un intérprete, que debe ‘congeniar’ con el anterior para identificar aquellos principios formales que le permitan operar el cambio respetando los orígenes. Se establecería así una especie de encadenamiento lúcido, tal como recordaba Igor Stravinski: “La primera condición que debe cumplir quien aspire al prestigioso nombre de intérprete es la de ser un ejecutante sin falla”[29].
Tal vez podemos apoyarnos otra vez en Umberto Eco. No resulta difícil parafrasear lo que refiriéndose a tres tipos de intenciones posibles de la interpretación puede aplicarse, en parte, a la arquitectura. Dice:
“(a) debe buscarse en el texto lo que el autor quería decir;
(b) debe buscarse el texto lo que este dice, independientemente de las intenciones de su autor.
Solo después de haber aceptado el segundo extremo de la oposición se podía articular la oposición entre:
(b1) es necesario buscar en el texto lo que dice con referencia a su misma coherencia contextual y a la situación de los sistemas de significación a los que se remite;
(b2) es necesario buscar en el texto lo que el destinatario encuentra con referencia a sus propios sistemas de significación y/o con referencia a sus deseos, pulsiones, arbitrios”[30].
La interpretación del texto como búsqueda de la intentio auctoris (a) tiene el paralelo en la lectura que Moneo hace y propone en la Mezquita de Córdoba. Incluso podría decirse que también puede entenderse así, en parte, en la búsqueda de la intentio operis (b), bien sea en la de los principios formales de la arquitectura (b1) o de los que el intérprete es capaz de encontrar bajo su propia mirada (b2). A la anterior oposición clásica entre autor y obra, Eco añade una tercera intención. La intentio lectoris, es decir, la alternativa a una arquitectura-flexible como la que propone en Córdoba ((a) y (b)) estaría en un autor-flexible. Es decir, en aquel que abandona la raíz originaria de la arquitectura recibida para iniciar una interpretación abierta a una nueva temporalidad.
Si Moneo hace suya la voluntad de buscar en la obra recibida lo que su autor quiso originar, dicho de otro modo, si el autor es inflexible en la raíz, existe una alternativa que logra la flexibilidad en la interpretación de esta. El arquitecto logra esta flexibilidad cuando busca en la obra lo que esta, a los ojos de su tiempo y su cultura, dice. Sería el caso, por ejemplo, de cómo entiende su autor la ampliación del Museo del Prado. El nuevo proyecto se situaría en un momento dentro de una ‘crónica’ histórica para “mantener la identidad e integridad del edificio de Villanueva”, o “una serie de espacios que en su continuidad apenas si permite establecer distinción entre ellos”, donde se nos “muestra que los edificios, al desplegar su vida en el tiempo, se dilatan, se extienden y asumen el crecimiento (…) sin la pérdida de sus atributos más valiosos”, donde como arquitectos interesa “entender lo que han sido los capítulos anteriores de la vida de un edificio para poder redactar uno nuevo”, en una nueva lectura[31]. En definitiva, según esta visión, el acercamiento interpretativo a una obra previa es la que permite el cambio y, como consecuencia, desvela la cualidad flexible de la arquitectura (figuras 11 y 12).
11. Croquis de ampliación y secuencia de las diferentes propuestas de ampliación del Museo del Prado. Rafael Moneo.
12. Interior de la ampliación del Museo del Prado. Rafael Moneo.
Hemos abordado dos maneras de entender la flexibilidad. Una detecta la raíz originaria del proyecto construido para proponer cada lectura nueva que lo extiende en el tiempo. Otra hace raíz el tiempo, cuenta con el tiempo como variable de diseño. Ambas, nos permitirían entender la flexibilidad menos como una condición física y más como una respuesta a soportar el paso del tiempo. La permanencia, empeño unido al cambio y a la flexibilidad, se lograría mediante un proyecto que Moneo para el caso de la arquitectura o Eco para el del lenguaje denominan abierto: puede adaptarse a una realidad variable. La arquitectura cambia para permanecer
En el texto en el que nos hemos apoyado, y en este mismo sentido, Moneo avanzaba que “la experiencia muestra que la vida de los edificios se nos manifiesta mediante la permanencia de sus rasgos formales más característicos en el tiempo. Y que, por consiguiente, no radica tanto en el proceso de proyecto como en la autonomía que adquiere un edificio una vez construido”[32]. Unos mecanismos formales firmes permitirían el cambio sin modificar su esencia. Esto convertiría la arquitectura en flexible y esos mecanismos serían una solución a su permanencia y vigencia.
Frente a estos firmes mecanismos formales como garantes de la flexibilidad, hemos visto otras arquitecturas que la garantizan en su capacidad innata de ser interpretadas y cambiadas. Para estas otras, que hemos ejemplificado en la de los franceses Lacaton & Vassal o Bruther, la flexibilidad y capacidad de cambio son la manifestación propia de una arquitectura que pretende cumplir con el paso del tiempo y sus nuevos usos. El mecanismo de cambio es la raíz que mantiene a la arquitectura en el tiempo. Su permanencia reside ahí y la arquitectura se convierte en el tapiz abierto a una permanente nueva interpretación. En la interpretación que el arquitecto hace de la arquitectura recibida o en la que proyecta para acomodar en origen nuevas interpretaciones, reside su permanencia. En la condición flexible de la arquitectura reside su propia continuidad, en aquellos atributos volumétricos, estructurales u organizativos que dotan de capacidad de cambio. La flexibilidad es el espejo de la persistencia en el tiempo.
Umberto Eco acabaría por distanciarse de una cierta ‘sobreinterpretación’. Reconocería que no tenemos que ser “capaces, de modo necesario, de probar que una interpretación es la correcta, ni tener que aferrarnos a la creencia de que debe haber una lectura correcta”[33], poniendo probablemente así el acento más en la intentio operis que en la del autor, o en la defensa de un ‘sentido literal’.
Esto es, ahora de manera análoga, la obra de arquitectura contendría lo necesario para realizar una lectura correcta pero que, desde luego, tampoco sería única. Siguiendo a Richard Rorty, en vez de buscar una intención o un origen, nuestros conceptos serían instrumentos para un determinado fin. Sería más útil y provechoso, en definitiva, una mirada nueva adecuada a nuestro propósito, pues “interpretar algo, conocerlo, penetrar en su esencia, etcétera, son solo diversos modos de describir algún proceso de ponerlo en funcionamiento”[34], de usarlo.
Y, a veces, lo que parece es, simplemente, lo que es. Hay arquitecturas en las que no cabría buscar una intención para propiciar el cambio. Son rígidas, inflexibles, son tal y como se pensaron y para lo que se pensaron. Ese es su iter histórico. Y, sin embargo, parecen coincidir con aquellas otras arquitecturas que llamamos flexibles en un destino común: la permanencia en el tiempo. Y también cambian. Esta sería una tercera manera de entender la flexibilidad: aquello que identificaba Aldo Rossi en algunos de los grandes edificios históricos, ajenos a cualquier estrategia operativa de cambio, después de comprobar los efectos de varias décadas de reutilización: la forma es siempre más fuerte que cualquier atribución de uso[35]. La lógica formal de estos edificios, aseguraba Rossi, les dotaba de una capacidad de uso constante, pasando de uno a otro con naturalidad. En otras palabras, la máxima precisión arquitectónica permite en muchas ocasiones la máxima indiferencia de uso. La indiferencia en el uso de algunos edificios históricos reutilizados como estamos últimamente acostumbrados o, en palabras contemporáneas, la neutralidad para la arquitectura[36], permite alojar en el tiempo cualquier función. Y, por tanto, cumplir con el objetivo que busca la flexibilidad: la permanencia.
Para acabar, como nos recordaba lúcidamente Susan Sontag en parecida idea, “nuestra misión no consiste en percibir en una obra de arte la mayor cantidad posible de contenido, y menos aún en exprimir de la obra de arte un contenido mayor que el ya existente (…) la función de la crítica debiera consistir en mostrar cómo es lo que es, inclusive, qué es lo que es y no en mostrar qué significa”[37]. O como precisaba Josep Quetglas, “la arquitectura, como todo lo que vive en el tiempo, carece de definición, o la tiene en la crisis de sus sucesivas definiciones”[38]. Así, paradójicamente y después de todo, podría entenderse la afirmación de Moneo: “Cabe decir que cada vez veo con más claridad que los edificios se desplazan en el tiempo, que no tienen la permanencia, la inmovilidad que para ellos a veces deseamos y que en cada instante son diversos”[39].
Frente a la flexibilidad y el cambio, la permanencia e inmutabilidad son términos que no aparecen tan a menudo en el discurso arquitectónico contemporáneo. Pero que garantizan también de algún modo la extensión en el tiempo de la arquitectura. ¿No es este, acaso, el objetivo último de la flexibilidad? 
Conceptualización, investigación, metodología, redacción, revisión y edición JTM (50%); JP-H (50%). Autoría: Autoría: JTM (50%); JP-H (50%).
Todos los autores declaran que no existe ningún conflicto de intereses con los resultados del trabajo.
Evelyn Alonso Rohner (Las Palmas de Gran Canaria, 1975); Arquitecta por la Universidad de Westminster, Londres (2000), Doctora en arquitectura Cum Laude con mención internacional (2017). Profesora en el Departamento de Proyectos Arquitectónicos, ETSA ULPGC. Investigadora predoctoral en Harvard GSD. Investigadora en el proyecto LIFECOSTAdapta y miembro del GIR Arquitectura, Patrimonio y Paisaje de la ULPGC. Premio Arquia/tesis 2017: Lo infra-leve. Acciones y proyectos frágiles. Coautora de artículos publicados en Rita (nº7, 2017), Arquitectura Viva (nº217, sep.2019), Palimpsesto (nº19, 2019), Estoa (nº16,2019). Proyectos publicados en el libro Confluences (Silvana Editoriale) y en el monográfico Documentos de Arquitectura nº69. Académica de la Real Academia Canaria de Bellas Artes.
José Antonio Sosa (Las Palmas de Gran Canaria, 1957) Arquitecto por la Universidad Politécnica de Madrid (1981), Doctor en arquitectura por la ULPGC, (1994) Catedrático de Proyectos Arquitectónicos en la Escuela de Arquitectura de la ULPGC. IP en el LIFE COASTAdapta, Visiting Scholar en el GSD de la Universidad de Harvard. Coautor de los siguientes artículos recientes Rita (nº7, 2017), Arquitectura Viva (nº217, sep.2019), Palimpsesto (nº19, 2019), Estoa (nº16,2019). Proyectos publicados en el libro Confluences (Silvana Editoriale) y en el monográfico Documentos de Arquitectura nº69. Académico de la Real Academia Canaria de Bellas Artes desde 2014.
ALLEN, Stan. From Object to Field. En: HENSEL, Michael; MENGES, Achim; HIGHT, Christopher, eds. Space Reader: Heterogeneous Space in Architecture. Chichester: Wiley, 2009, pp. 118-143. ISBN 9780470519431.
ALLEN, Stan. Mat Urbanism: The Thick 2D. En: SARKIS, Hashim; ALLARD, Pablo; HYDE, Thimothy, eds. Case: Le Corbusier’s Venice Hospital and the Mat Building Revival. New York: Prestel, 2001, pp. 118-126. ISBN 978-3791325385.
ALONSO ROHNER, Evelyn; SOSA DIAZ-SAAVEDRA, José Antonio. La ciudad multicapa. En: Arquitectura Viva. Madrid: Arquitectura Viva, S.L., septiembre 2019, n.º 217, p. 80. ISSN 0214-1256.
ALONSO ROHNER, Evelyn. Acciones infra-leves. Indeterminación, discontinuidad y entropía. Madrid: Fundación Arquia, 2020. ISBN 978-84-121748-4-7.
BEILER, Kevin J.; SIMARD, Suzanne W.; DURALL, Daniel M. Topology of Tree-mycorrhizal fungus interaction networks in xeric and mesic Douglas-fir forests. En: Journal of Ecology [en línea]. Londres: British Ecological Society, 3 febrero 2015, vol. 103 [consulta: 19-07-2024]. ISSN 1365-2745. Disponible en https://besjournals.onlinelibrary.wiley.com/doi/full/10.1111/1365-2745.12387. DOI: https://doi.org/10.1111/1365-2745.12387.
COLOMB, Claire. Pushing the Urban Frontier: Temporary Uses of Space, City Marketing, and the Creative City Discourse in 2000s Berlin. En: Journal of Urban Affairs. London: Routledge, 2012, vol. 34 [consulta: 05-03-2025]. Disponible en: https://www.tandfonline.com/doi/full/10.1111/j.1467-9906.2012.00607.x. DOI: https://doi.org/10.1111/j.1467-9906.2012.00607.x.
DELEUZE, Giles. Conversaciones 1972-1990. Valencia: Pre-Textos, 1995. ISBN 978-8481910216.
GUPTE, Rupali; MEHROTRA, Rahul; SHETTY, Prasad. Discussing Some Urban Conditions in Contemporary India. Rupali Gupte, Rahul Mehrotra and Prasad Shetty, October 2007. En: BARD STUDIO [en línea] [Consulta: 10-12-2024]. Disponible en https://bardstudio.in/frothing-urbanisms/.
GUPTE, Rupali; SHETTY, Prasad. It Takes so Much for a City to Happen. En: e-flux Journal [en línea]. New York: eflux, mayo 2015 [consulta: 08-01-2025]. Disponible en: https://www.e-flux.com/journal/65/336404/it-takes-so-much-for-a-city-to-happen/.
KAIJIMA, Momoyo; KURODA, Junzo; TSUKAMOTO, Yoshiharu. Made in Tokyo.Tokyo: Kajima Institute Publishing Co., 2019. ISBN 978-4306044210.
MAKI, Fumihiko. Investigations in Collective Form. Washington: The School of Architecture Washington University, 1964.
MITLETON-KELLY, Eve. Ten Principles of Complexity & Enabling Infrastructures. En: MITLETON-KELLY, Eve, ed. Complex Systems & Evolutionary Perspectives of Organisations: The Application of Complexity Theory to Organisations. Oxford: Elsevier, 2003. ISBN 9780080439570. Disponible en: https://www.researchgate.net/publication/38959109_Ten_principles_of_complexity_and_enabling_infrastructures.
PRIETO CASTRO, Samuel. Análisis del espacio urbano en Japón. El trabajo de campo en las décadas de los sesenta y los setenta del siglo XX. En: Proyecto, Progreso, Arquitectura. Ecografías urbanas [en línea]. Sevilla: Editorial Universidad de Sevilla, mayo 2024, n.º 30, pp. 22-37 [consulta: 22-07-2024]. ISSN-e 2173-1616. Disponible en: https://revistascientificas.us.es/index.php/ppa/article/view/24216/22657. DOI: https://doi.org/10.12795/ppa.2024.i30.01.
RAMOS-CARRANZA, Amadeo, et al. 10 años promoviendo la investigación en arquitectura: la revista proyecto, progreso, arquitectura. En: Proyecto, Progreso, Arquitectura. Más que arquitectura [en línea]. Sevilla: Editorial Universidad de Sevilla, mayo 2019, n.º 20, pp. 147-167 [consulta: 22-07-2024] ISSN-e 2173-1616. Disponible en: https://revistascientificas.us.es/index.php/ppa/article/view/8976/7959. DOI: https://doi.org/10.12795/ppa.2019.i20.10.
SHELDRAKE, Merlin. La red oculta de la vida. Barcelona: Editorial Planeta, 2020. ISBN 9788408235316.
SLOTERDIJK, Peter. Actio in distans. Sobre los modos de formación teleracional del mundo. En: Nómadas (Col). Bogotá: Unidad Central Colombia. 2008, n.º 28, pp. 22-33. ISSN 0121-7550. Disponible en https://www.redalyc.org/pdf/1051/105116292003.pdf
SOLÀ-MORALES, Ignasi de. Diferencias. Topografía de la arquitectura contemporánea. Barcelona: Gustavo Gili,1995. ISBN 9788425216633
TOYO Ito: Forces of Nature Princeton Architectural Press (3 octubre 2012) / Lecture entitled Liquid Space, given at Princeton in 2009.
WALL, Alex. Programming the Urban Surface. En: CORNER, James, ed. Recovering Landscape: Contemporary Essays in Landscape Architecture. New York: Princeton Architectural Press, pp. 232-249, 1999. ISBN 9781568981796.
WIGLEY, Mark. Cutting Matta-Clark: The Anarchitecture Investigation. Zúrich:Lars Muller Verlag, 2018. ISBN 9783037784273.
[1] Cfr. GRACIA, Francisco de. Construir en lo construido: la arquitectura como modificación. Madrid: Nerea, 1992. ISBN 84-86763-65-7.
[2] GOLDBERGER, Paul. Los edificios y el tiempo. En: GOLDBERGER, Paul. Por qué importa la arquitectura. Madrid: Ivory Press, 2012, pp. 203-240. ISBN 978-84-939498-7-7.
[3] Sobre el concepto de presentismo véase HARTOG, Françoise. Régimes d’historicité. Présentisme et expériences du temps. Paris: Seuil, 2003. ISBN 9782020593281.
[4] KRONENBURG, Robert. Flexible: Arquitectura que integra el cambio. Barcelona: Blume, 2007, p. 6. ISBN 978-84-9801-147-0.
[5] Ibídem, pp. 6, 10, 14.
[6] BUBNER, Ewald. Arquitectura adaptable. Resumen histórico. En: OTTO, Frei et al. Arquitectura adaptable: seminario. Barcelona: Gustavo Gili, 1974. ISBN 84-252-0944-7.
[7] STALDER, Laurent. El maquinismo de Bruther. En: El Croquis. Madrid: El Croquis editorial, 2018, n.º 197, pp. 262-274. ISSN 0212-5633.
[8] LATOUR, Bruno; YANEVA, Albena. “Give me a Gun and I Will Make All Buildings Move”: An ANT’s View of Architecture. En: Ardeth [en línea]. Torino: Rosenberg & Sellier, 2017, n.º 1, pp. 103-111 [consulta: 15-03-2025]. ISSN 2532-6457. Disponible en: https://journals.openedition.org/ardeth/991.
[9] KOOLHAAS, Rem; MAU, Bruce. S, M, L, XL. Nueva York: The Monacelli Press, 1997, pp. 239-240. ISBN: 09781885254863.
[10] LACATON, Anne; VASSAL, Jean-Philippe. La libertad estructural, condición del milagro. En: 2G: revista internacional de arquitectura. Barcelona: Gustavo Gili, 2011, n.º 60. ISSN 1136-9647. Hemos empleado LACATON, Anne; VASSAL, Jean-Philippe. Actitud. Barcelona: Gustavo Gili, 2017, pp. 57-72. ISBN 9788425230486.
[11] RUBY, Ilka; RUBY, Andreas. Espacio extra, extra grande. Sobre la obra reciente de Lacaton & Vassal. En: Lacaton & Vassal. 2G Books. Barcelona: Gustavo Gili, 2007, pp. 6-10. ISBN: 84-252-2061-0.
[12] Ibidem, p. 100.
[13] BLAIN, Francoise-Aline; PRADEL, Jean-Louis; TRETIAK, Philippe. Palais de Tokyo-L’art en chantier. En: Beaux arts magazine. Paris: Beaux Arts & Cie SAS, 2002, n.º 212, p. 82. ISSN 0757–2271, Disponible en: https://www.lacatonvassal.com/data/documents/20110228-2044390201BeauxArts212.pdf.
[14] LACATON, Anne; VASSAL, Jean-Philippe, op. cit. supra, nota 11, p. 60.
[15] Cfr. STALDER, Laurent, op. cit. supra, nota 8, p. 270.
[16] Ver KOHLER, Niklaus; KÖNIG, Holger; KREISSIG, Johannes; LÜTZKENDORF, Thomas. A Life Cycle Approach to Buildings. Principles, Calculations, Design Tools. Múnich: Detail Green Books, 2010. ISBN 9783955531706. DOI: https://doi.org/10.11129/detail.9783955531706.
[17] HABRAKEN, N.J. El diseño de soportes. Barcelona: Gustavo Gili, 1979. KENDALL, S.; TEICHER, J. Residential Open Building. New York: Taylor & Francis, 2000. También KENDALL, S. Open Building: An Approach to Sustainable Architecture [en línea]. En: Journal of Urban Technology. New York: Society of Urban Technology, 1999, vol. 6, n.º 3, pp, 1-16 [consulta: 15-06-2025]. ISSN-e 1466-1853. DOI: https://doi.org/10.1080/10630739983551.
[18] LACATON, Anne; VASSAL, Jean-Philippe, op. cit. supra, nota 11, p. 58.
[19] BOURRIAUD, Nicolas. Estética Relacional. Buenos Aires: Adriana Hidalgo, 2008, pp. 13-17. ISBN 9789871156566.
[20] MONEO, Rafael. La vida de los edificios. Las ampliaciones de la mezquita de Córdoba [en línea]. En: Arquitectura. Madrid: COAM, 1985, n.º 256, pp. 26-36 [consulta: 16-03-2025]. ISSN 0004-2706. Disponible en: https://www.coam.org/media/Default%20Files/fundacion/biblioteca/revista-arquitectura-100/1981-1986/docs/revista-articulos/revista-arquitectura-1985-n256-pag26-36.pdf.
[21] La intención del contenido de la conferencia queda explicada en el prólogo de MONEO, Rafael. La vida de los edificios. La mezquita de Córdoba, la lonja de Sevilla y un carmen en Granada. Barcelona: Acantilado, 2017. ISBN 978-84-16748-61-7.
[22] MONEO, Rafael. op. cit. supra, nota 21, p. 10.
[23] Ibídem, p. 46.
[24] MARTINEZ de GEREÑU, Laura, ed. Rafael Moneo. Apuntes sobre 21 obras. Barcelona: Gustavo Gili, 2010, p. 169. ISBN 978-84-252-2362-4.
[25] Ibídem, p. 18.
[26] La arquitectura se “prolonga en otras arquitecturas” a través de los elementos comunes y mecanismos de relaciones tipológicas. MONEO, Rafael. On Typology. En: Oppositions. Massachusetts MA: MIT Press, summer 1978, n.º 13, pp. 22-45. Disponible en: https://doarch152spring2015.wordpress.com/wp-content/uploads/2015/01/moneo_on-typology_oppositions.pdf.
[27] MONEO, Rafael. op. cit. supra, nota 21, p. 18.
[28] ECO, Umberto. Obra abierta. Barcelona: Planeta-DeAgostini, 1985, pp. 66-67. ISBN 9788439500087. Ed. original Opera aperta: Forma e indeterminazione nelle poetiche contemporanee. Milano: Bompiani, 1962.
[29] STRAVINSKI, Ígor. Poética musical. Barcelona: Acantilado, 2006, p. 114. ISBN 978-84-96489-37-0.
[30] ECO, Umberto. Los límites de la interpretación. Barcelona: Editorial Lumen, 1992, p. 29. ISBN 9788426412140.
[31] MARTINEZ de GEREÑU, Laura, ed., op. cit. supra, nota 25, p. 636.
[32] MONEO, Rafael. op. cit. supra, nota 21, p. 18.
[33] ECO, Umberto. Interpretación y sobreinterpretación. Cambridge: Cambridge University Press, 1992, p. 18. ISBN 9780521476492.
[34] RORTY, Richard. El progreso del pragmatista. En: ECO, Umberto, op. cit. supra, nota 34, p. 109.
[35] ROSSI, Aldo. La arquitectura de la ciudad. Barcelona: Gusvato Gili, 1982, pp. 54-55. ISBN 9788425228209.
[36] A este respecto merece la pena revisar COLMENARES VILATA, Silvia. Lo neutro. Arquitectura por defecto. Barcelona: Fundación Arquia, 2023. ISBN 978-84-125906-1-6.
[37] SONTAG, Susan. Contra la interpretación y otros ensayos. Barcelona: Seix Barral, 1984 [1966], p. 27. ISBN 9788432204890.
[38] QUETGLAS, Josep. Rafael Moneo. Versos y oraciones del caminante. En: GONZALEZ DE CANALES, Francisco, ed. Consideraciones sobre la obra de Rafael Moneo. Barcelona: Fundación Arquia, 2019, p. 133. ISBN 9788409036912.
[39] MONEO, Rafael. op. cit. supra, bnota 21, p. 18.