Proyecto, Progreso, Arquitectura. N31 (2024)

Arquitecturas para la industria

Noviembre 2024

ISSN 2171–6897 / ISSNe 2173–1616

© 2024. E. Universidad de Sevilla.

Creative Commons Attribution-NonCommercial-ShareAlike 4.0 International (CC BY-NC-SA 4.0)

Arquitecturas industriales y transformación creativa. Tres casos de estudio europeos

INDUSTRIAL ARCHITECTURES AND CREATIVE TRANSFORMATION. THREE EUROPEAN CASE STUDIES

Safiya Tabali 0000-0001-9515-7243

Persona de contacto / Corresponding author: tsafiya@us.es Escuela Técnica Superior de Arquitectura. Universidad de Sevilla. España.

José Manuel Romero Ojeda 0000-0002-7026-1324

María F. Carrascal Pérez 0000-0001-8194-9995

Recepción: 02-04-2024. Aceptación: 12-09-2024

Cómo citar:

TABALI, Safiya, ROMERO OJEDA, José Manuel y CARRASCAL PÉREZ, María F. Arquitecturas industriales y transformación creativa. Tres casos de estudio europeos. En: Proyecto, Progreso, Arquitectura. Sevilla: Editorial Universidad de Sevilla, noviembre 2024, nº 31 Arquitecturas para la industria, pp. 114-133. https://dx.doi.org/10.12795/ppa.2024.i31.06

RESUMEN Esta investigación se centra en identificar y estudiar casos significativos de reprogramación de edificios de arquitectura fabril y de la producción promovidos por comunidades creativas locales. Sus modelos bottom-up de gestión e intervención y sus singulares estrategias proyectuales han permitido la conservación del inmueble y la implementación en el mismo de nuevas formas de producción asociadas al sector cultural y creativo. Siguiendo una metodología de estudio de referencias y a partir de los casos de estudio seleccionados -Tabačka Kulturfabrik (Eslovaquia), The Cable Factory (Finlandia) y Manifattura Tabacchi (Italia)-, se analiza cómo en estos reductos de la producción, artesanos, creativos y colectivos sociales han luchado por la preservación de sus arquitecturas a la vez que han sabido encontrar en ellas el lugar y el clima para desarrollar actividades contemporáneas innovadoras y mantener profesiones cada vez más minoritarias. Se trata de un fenómeno internacional que encuentra componentes comunes en diferentes enclaves y contextos, donde estas comunidades generan un vínculo especial con el patrimonio industrial y el entorno donde su ubican. Sus procesos extienden, además, su campo de acción influyendo en las dinámicas sociales y urbanas de los barrios donde se insertan. Estos espacios reindustrializados creativamente constituyen hoy lugares de una especial singularidad, habiendo propiciado diversidad y relaciones positivas desde lo laboral, cultural, afectivo o identitario, que se manifestarán en estos tres casos de estudio.

PALABRAS CLAVE Industrias Creativas; Patrimonio Industrial, Procesos bottom-up; Conservación Arquitectónica; Rehabilitación Adaptativa; Identidad local.

SUMMARY This research focuses on identifying and studying significant cases of reprogramming of factory architecture and production buildings promoted by local creative communities. Their bottom-upmanagement and intervention models and unique design strategies have enabled the conservation of these buildings as well as the implementation of new forms of production linked to the cultural and creative sector. Using a benchmarking methodology for the case studies selected -Tabačka Kulturfabrik (Slovakia), The Cable Factory (Finland) and Manifattura Tabacchi (Italy) -an analysis is carried out on how artisans, creatives and social collectives in these production strongholds have fought to preserve their architecture while also securing the place and the climate to develop innovative contemporary activities and ensure the survival of dwindling minority professions. This international phenomenon finds common components in different enclaves and contexts where a special bond is forged between communities and the industrial heritage and the environment in which they are located. Their processes also extend their field of action by influencing the social and urban dynamics of the neighbourhoods where they are found. Today, these creatively re-industrialised spaces are particularly unique places, fostering diversity and positive relations in terms of work, culture, affection, and identity, as is clear from these three case studies.

KEYWORDS Creative Industries; Industrial Heritage; Bottom-up Processes; Architectural Conservation; Adaptive Rehabilitation; Local Identity.

INTRODUCCIÓN: ESPACIOS DE LA PRODUCCIÓN, ESPACIOS DE OPORTUNIDAD

El tejido construido de muchas ciudades europeas se encuentra soportado y modificado por arquitecturas de componente productivo, patente en estructuras industriales, de transporte, abastecimiento, comercialización, que constituyen la nómina del mencionado patrimonio industrial[1]. La desindustrialización conllevó al abandono de un gran número de edificios industriales[2], con importantes atributos arquitectónicos y sociales, así como la desaparición de sectores profesionales y formas de vida que estaban profundamente enraizadas con los barrios, entornos y comunidades en los que se insertaban estas arquitecturas[3]. Un hecho que, más allá de un valor material, confiere a estos enclaves un valor inmaterial, como lugares de memoria de procesos productivos ya agotados, de sus trabajadores y su cotidianidad. Ciertas investigaciones asocian al patrimonio industrial un valor intemporal que debe ser respetado y mantenido, interactuando de manera positiva con el entorno[4].

A finales de los años noventa, tras la desaparición de importantes obras arquitectónicas de carácter industrial como Les Halles, en París -proyectado por Victor Baltard-, se inició una reacción a nivel global que impulsó la protección y conservación de estos inmuebles, no por motivos meramente prácticos que ya se perseguían para adaptar estas arquitecturas a otras funciones industriales, sino como solución al abandono e infrautilización de este patrimonio emergente[5]. Este cambio de perspectiva y, por tanto, la consiguiente valorización de estas arquitecturas en las cartas internacionales, fue consolidado con la creación del Comité Internacional para la Conservación y Defensa del Patrimonio Industrial (TICCIH) -como órgano asesor del Consejo Internacional de Monumentos y Sitios (ICOMOS)-, que promovió en 2003 la Carta de Nizhny Tagil para el Patrimonio Industrial[6], un documento clave que estableció los principios para la conservación y protección de los valores patrimoniales de los sitios industriales en todo el mundo, subrayando la importancia de preservar no solo los edificios, sino también la memoria, el afecto social y las habilidades productivas del lugar. Junto a este pionero documento cabe mencionar la posterior aprobación por la misma institución de “Criterios conjuntos de ICOMOS-TICCIH para la conservación de sitios, edificios, áreas y paisajes del patrimonio industrial”[7], conocidos como Principios de Dublín en el año 2011. Estos principios se han convertido en referencias indispensables para la conservación del patrimonio industrial en el contexto global, siendo aplicados en casos paradigmáticos como la Van Nelle Fabriek en Rotterdam, reconocida como Patrimonio Mundial por la UNESCO[8]. La preservación y conservación de estos inmuebles pasa por encontrar una función y un destino compatible con las formas tipológicas y espaciales de estos edificios[9], por medio de intervenciones que sepan conservar su valor cultural y su memoria. Este enfoque es fundamental en lo que se conoce como rehabilitación o reutilización adaptativa, una estrategia que no solo busca rehabilitar estos espacios, sino también reprogramarlos para que sirvan a nuevos propósitos sin perder su esencia histórica[10]. Este concepto se diferencia de las intervenciones tradicionales, las cuales a menudo transforman radicalmente los edificios industriales en museos o espacios comerciales, despojándolos de su contexto original y utilizando una estrategia proyectual del edificio como contenedor. Véanse ejemplos como el Tate Modern en Londres y su Sala de Turbinas[11], los Gasómetros de Viena[12] o CaixaForum Madrid[13], intervenciones que han optado por el vaciado y la demolición de las infraestructuras e instalaciones interiores, así como de las edificaciones auxiliares anexas, consiguiendo un punto de partida lo más parecido a un lienzo en blanco para insertar los nuevos usos culturales y residenciales. Por el contrario, la reutilización adaptativa respeta la memoria del lugar mientras lo adapta a nuevos usos, favoreciendo la continuidad de su legado industrial[14]. Ejemplos notables de esta estrategia pueden verse en proyectos como el Palais de Tokyo en París, Francia[15], o C-Mine en Genk, Bélgica[16].

La rehabilitación de edificios industriales se enfrenta a desafíos significativos, principalmente debido a las limitaciones de sus propietarios para acometer las inversiones necesarias y superar las dificultades administrativas y técnicas impuestas por las condiciones de protección patrimonial. Estas barreras a menudo resultan en la paralización de proyectos, prolongando el abandono de los inmuebles[17]. En algunos casos, este abandono lleva a colectivos sociales a encontrar usos temporales para estos espacios, en ocasiones durante largos períodos.

Según la clasificación que realiza Álvarez Areces[18], existen tres tipos de bienes arquitectónicos industriales: elementos aislados que, por su valor histórico, arquitectónico o tecnológico, ejemplifican una actividad industrial; conjuntos industriales que conservan todos los componentes materiales y funcionales de una actividad industrial específica; y paisajes industriales que mantienen todos los componentes esenciales de los procesos de producción, incluidas las alteraciones del paisaje inducidas. Este estudio se centra en piezas o conjuntos industriales obsoletos que representan un patrimonio emergente, dispuesto para una preservación arquitectónica efectiva.

La presente investigación es fruto de los resultados obtenidos a través de un estudio de mayor envergadura, desarrollado por medio del proyecto de investigación “CREAfab. Metodologías para una reindustrialización creativa de los centros históricos”[19] y que tiene por objetivo fomentar una reindustrialización creativa de los centros históricos como estrategia de desarrollo local, facilitando la implementación de Industrias Creativas en el contexto del patrimonio industrial de Andalucía.

El vínculo de los espacios fabriles o de producción obsolescentes con las comunidades creativas locales, como lugares alternativos para su vida y trabajo, es anterior a los años noventa y su significación como patrimonio. En la historia de la ciudad contemporánea europea y norteamericana, concretamente en la segunda mitad del siglo XX, colectivos artísticos y contraculturales desempeñaron un rol pionero en el desvelamiento y puesta en valor de estas arquitecturas. Esta aproximación a la rehabilitación adaptativa del patrimonio industrial desde el sector creativo y cultural es, por tanto y en cierto modo, continuista con el pasado reciente, sin embargo, la sofisticación y complejidad que estos procesos han adquirido en la última década, dentro del marco regulador ya mencionado, hacen necesario su estudio en profundidad y su comprensión como posible clave de futuro.

En la investigación llevada a cabo, se han identificado 142 casos de referencia, tanto nacionales como internacionales, que destacan en gestión, conservación e intervención, impulsados por Industrias Creativas[20]. El presente trabajo analiza tres casos específicos: Tabačka Kulturfabrik en Košice, Eslovaquia; The Cable Factory en Helsinki, Finlandia; y Manifattura Tabacchi en Florencia, Italia. Estos proyectos se han seleccionado porque comparten un proceso de reprogramación impulsado por el asociacionismo y la gestión creativa, adaptando los edificios a las necesidades de la comunidad mientras se preservan sus características industriales demostrando estas estrategias en tres escalas diferentes. Intervenciones que bien pueden recogerse bajo los conceptos de despejar la arquitectura, liberar espacios y ampliar conceptos[21].

El estudio de estos tres casos, en definitiva, revela una correlación entre la arquitectura industrial, los espacios de producción y las comunidades creativas. Estos complejos ofrecen un entorno propicio para actividades culturales, permitiendo la conservación de profesiones y relaciones sociales innovadoras en un marco sostenible y respetuoso con el patrimonio. Las Industrias Creativas, con su enfoque en la sostenibilidad y el impacto positivo, ayudan a preservar la memoria del trabajo en espacios industriales que de otro modo podrían quedar relegados a meros contenedores culturales.

LA CREATIVIDAD COMO MOTOR DE DESARROLLO URBANO

Las Industrias Creativas, según la Conferencia de las Naciones Unidas sobre Comercio y Desarrollo de 2022, están formadas por “sectores creativos como los ciclos de creación, producción y distribución de bienes y servicios que utilizan creatividad y capital intelectual como insumos primarios. Comprenden un conjunto de actividades basadas en el conocimiento que producen bienes tangibles y servicios intelectuales o artísticos intangibles con contenido creativo, valor económico y objetivos de mercado[22]. Abarcan el tejido productivo compuesto por “creadores” y “productores” que integran todos los sectores creativos: artes, arquitectura, cine, música, diseño, moda, artes escénicas, artesanía, publicidad, televisión y radio y diseño de software y videojuegos, intersecando, también, con el prolífico escenario de la inteligencia artificial.

El argumento que identifica a las Industrias Creativas como sector potencialmente beneficioso para la regeneración de espacios y entornos urbanos patrimoniales se defiende tanto en el contexto de la ambiciosa teoría sobre “Ciudad Creativa” desarrollada en el cambio de siglo como en los planteamientos estratégicos más actuales convocados por informes y planes de la Unión Europea[29]. Estos últimos inciden en el potencial de las Industrias Creativas, no solo como sector económico[30], sino como motivador de procesos resilientes de transformación de la ciudad[31], siendo especialmente sinérgicos en contextos urbanos históricos en los que además actúan como recurso para revertir los intensos procesos de turistificación a los que se ven actualmente sometidos[32]. De este modo, la convergencia entre las necesidades específicas de las Industrias Creativas y la actualización de espacios con un pasado productivo se erige como un paradigma de rehabilitación adaptativa del patrimonio industrial.

Un claro ejemplo de esta tendencia es la inversión que numerosas ciudades europeas han realizado para transformar antiguos entornos industriales en distritos que fomentan las Industrias Creativas. En Barcelona, a través del proyecto 22@ en el barrio de El Poblenou, ha convertido su antiguo distrito industrial en un hub tecnológico y creativo que alberga empresas de medios digitales y startups innovadoras. De manera similar, Milán ha desarrollado la Fashion City y el World Jewellery Centre, integrando sectores tradicionales como la moda y la joyería en un entorno que combina patrimonio industrial con tecnología de vanguardia. Copenhague, con el desarrollo de Orestad, también ha apostado por la creación de un distrito urbano moderno que mezcla usos residenciales, comerciales y tecnológicos en un antiguo espacio industrial. Alemania propone un proyecto ambicioso para la región del Rhur como ecosistema de convergencia de Industrias Culturales y Creativas, implementando en su paisaje productivo histórico museos, distritos creativos y centros para la promoción de la cultura local.

Destacan a su vez numerosos ejemplos a escala arquitectónica, como las intervenciones en el rico patrimonio industrial de Barcelona, muchas de ellas agrupadas bajo la iniciativa municipal Fábricas de Creación, que incluye proyectos como Fabra i Coats y Hangar[33]. También encontramos el ambicioso proyecto Matadero en Madrid[34], Tabakalera en San Sebastián[35], y La Térmica en Málaga[36]. Estos proyectos, enormemente documentados, no solo revitalizan el tejido urbano, sino que también refuerzan el papel de las Industrias Creativas como motores de innovación y transformación social, demostrando el potencial de estas en el contexto del patrimonio industrial[37].

HACIA LO LOCAL. TRES CASOS DE ESTUDIO EUROPEOS DE REHABILITACIÓN ADAPTATIVA CREATIVA Y SALVAGUARDA PATRIMONIAL

Los tres casos de estudio seleccionados -Tabačka Kulturfabrik en Košice, The Cable Factory en Helsinki y Manifattura Tabacchi en Florencia- han sido elegidos por su capacidad para ilustrar un proceso de rehabilitación adaptativa de antiguas instalaciones industriales mediante el fomento de las Industrias Creativas. Estos casos destacan por: su relevancia dentro del ámbito europeo -al ser el territorio pionero en la reprogramación y conservación del patrimonio industrial-[38]; su estatus de protección patrimonial; su enfoque en la producción creativa contemporánea; su estrategia efectiva para la conservación y la revitalización urbana; su implicación activa de colectivos locales; y su capacidad pedagógica o potencial de replicabilidad a diferentes escalas.

Metodología de búsqueda, selección y análisis

Como se explica en la Introducción, los tres casos de estudio analizados forman parte de los resultados de la fase preliminar del proyecto de investigación CREAfab. Esta fase incluyó la creación de una base de datos espacial para mapear el fomento de las Industrias Creativas en relación con el patrimonio, distinguiendo entre dos niveles de análisis (Casos generales y Casos paradigmáticos), cinco categorías (Planificación, Organismos, Programas, Centros y Distritos Creativos) y dos ámbitos (Global y Nacional). Se registraron 142 casos en 26 países (figura 1), de los cuales se han seleccionado tres de la categoría de Centros para este análisis[39].

1. Mapeado de casos de estudio internacionales georreferenciados.

Para la creación de esta base de datos espacial[40], la metodología consta de cuatro fases: búsqueda bibliográfica de casos de estudio, diseño y estandarización de la base de datos para cada categoría, elección de casos paradigmáticos y, finalmente, el análisis de casos de estudio en ambos niveles de análisis. Para el presente estudio, se aplican las dos últimas fases de esta metodología.

El análisis cuantitativo y cualitativo al que se someten los casos de estudio que conforman esta base de datos se basa en la identificación de los siguientes elementos, divididos en cinco categorías, como puede verse en la figura 2.

2. Esquema de los elementos analizados de los casos de estudio y sus categorías.

Como resultados preliminares de este análisis de casos de estudio en el marco del proyecto de investigación“CREAfab”[41] se puede afirmar que las Industrias Creativas demandan espacios que les permitan desarrollar sus actividades de manera efectiva y eficiente y, aunque cada trabajo es específico, sí se pueden identificar unos aspectos comunes a muchos casos. Generalmente, requieren espacios que ofrezcan tanto privacidad -para proteger la propiedad intelectual- como accesibilidad pública para eventos divulgativos, valorándose además la singularidad arquitectónica y la ubicación central en barrios distintivos. Buscan espacios amplios y versátiles que faciliten el trabajo colaborativo, la interacción con el público y el desarrollo de actividades formativas. Se busca que su intervención posibilite una adecuada ventilación, insonorización, control de la iluminación, alta conectividad y gestión eficiente de residuos, junto con buenas conexiones de transporte. Los espacios industriales reutilizados se revelan adecuados para estas necesidades, al combinar flexibilidad, infraestructura existente y un ambiente único que rememora la cultura del trabajo y la innovación de otro momento. Su fácil apropiación suele motivar un apego que resulta en un alto compromiso con la conservación de la edificación y la preservación patrimonial, la cohesión social y la mejora de la calidad de vida de la zona. Además, se ha detectado que las comunidades que habitan estos centros generan un ecosistema sostenible que va más allá de su perímetro, avivando una conciencia eco-social y una economía cívica.

Para el presente trabajo se han seleccionado casos europeos en los que el proyecto de rehabilitación adaptativa sobresale por su capacidad de transformación del entorno. En los tres casos, se trata de edificios industriales singulares protegidos y localizados en centros históricos o muy cercanos a ellos cuya salvaguarda ha sido fruto del asociacionismo de creativos y ciudadanos, teniendo, además, un impacto socioeconómico y urbano positivo. Otros criterios para su selección han sido la componente de innovación en la gestión y la posesión de un programa multifuncional y multiescalar, capaz de acoger las demandas espaciales de los distintos sectores de las Industrias Creativas. Por último, se opta por centros localizados en países que no necesariamente cuentan con un marco legislativo que ampara el fomento de las Industrias Creativas en estos edificios, descartando países pioneros en estas prácticas, como Reino Unido y Alemania, que son más conocidos. Los tres casos serán analizados en los apartados siguientes.

Tabačka Kulturfabrik: un proyecto de rehabilitación bajo el amparo de una asociación ciudadana

Tabačka Kulturfabrik es un centro cultural en Košice, Eslovaquia, ubicado en una antigua fábrica de tabacos construida entre 1851 y 1854. La fábrica funcionó como productora de puros durante la monarquía austrohúngara hasta el final de la segunda guerra mundial y fue cerrada en 1951. En 1953, el edificio fue parcialmente reconstruido para albergar una escuela de formación profesional, función que mantuvo hasta septiembre de 2007. En 2009, el arquitecto Peter Radkoff y la asociación cívica Bona Fide iniciaron un proyecto para revitalizar el espacio abandonado, transformándolo en un centro cultural alternativo (figura 3). En mayo de 2015, Bona Fide implementó un nuevo modelo operativo en colaboración con la región autónoma de Košice, con el objetivo de fomentar el desarrollo de economías creativas en la zona.

3. Imagen del patio central del edificio Tabačka Kulturfabrik tras el proyecto de rehabilitación.

Este caso, junto con Manifattura Tabacchi en Florencia, representa una tendencia ya consolidada de reconversión de fábricas y secaderos de tabaco a centros culturales y creativos en diversas ciudades europeas[42]. Este fenómeno parece dar respuesta al desmantelamiento de estas actividades y motivado por el atractivo espacial y la localización de estos edificios, que ofrecen amplios espacios adaptables y bien conectados en zonas urbanas estratégicas.

El modelo de gestión de Tabačka Kulturfabrik es bottom-up e independiente, lo que significa que está impulsado por ciudadanos comprometidos y financiado a través de múltiples fuentes, incluyendo actividad económica propia, subvenciones y socios financieros. El centro sirve como una incubadora creativa para nuevos talentos del sector de las Industrias Creativas, proporcionando apoyo inicial y espacios de trabajo para artistas y productores emergentes.

El edificio Tabačka se encuentra en una manzana del centro de Košice, concretamente en la calle Gorkého, paralela al tramo descubierto del río Hornad, en el barrio de Žižkov, una zona con un pasado industrial y adyacente al casco histórico de la ciudad. Tabačka resalta en su contexto urbano por ser de las pocas edificaciones que no superan las dos plantas. Se encuentra rodeada de otras arquitecturas industriales reconvertidas a usos administrativos o residenciales y cercana a los monumentos más importantes de Košice. Cuenta además con una accesibilidad privilegiada a través de transporte público. Sus dos plantas en forma de “L” delimitan un patio central de gran superficie en el que se sitúa una nave de una altura a modo de almacén.

La fachada es un atributo arquitectónico característico de este inmueble. La entrada principal a través de la misma conecta con el amplio espacio libre central en el que se localizan espacios de relación y difusión cultural, logrando que este sea el corazón del proyecto (figura 4). En la primera planta se despliega el programa de producción creativa con espacios de trabajo y talleres. El área de la antigua fábrica de tabacos ofrece hoy 2500 m2 para actividades relacionadas con estas industrias. Ofrece un programa formado por una sala multifuncional con capacidad para 600 personas de pie y 200 asientos; una black box con capacidad para 60 personas; una sala de cine con capacidad para 77 espectadores; una zona creativa con seis espacios de oficina; un centro de coworking para 30 creadores y productores; un estudio de impresión creativa; un estudio de grabación; un laboratorio de música; una sala de estudio/taller de vídeo para 15 personas; un bar con bistró con capacidad para 130 comensales; una galería de arte contemporáneo y una tienda de material artístico (figura 4).

4. Planta baja y diagrama de usos de Tabačka Kulturfabrik.

El proyecto de rehabilitación de Tabačka Kulturfabrik, liderado por los arquitectos Peter Radkoff y Pavol Pirovits, junto con el diseñador Dávid Hutira, se llevó a cabo entre 2014 y 2015, respetando su estatus como Monumento Técnico y Cultural Nacional. La intervención conservó meticulosamente los materiales y la estructura del edificio, destacando las diferentes capas históricas visibles en las fachadas, que combinan ladrillo visto con tramos enlucidos, sin alterar el ambiente industrial original (figura 5). La intervención se centró en crear espacios amplios para actividades comunitarias, relegando las áreas de producción individual a la segunda planta, lo que impulsó una participación activa de la ciudadanía en la programación de actividades.

5. Imagen de uno de los espacios interiores de Tabačka Kulturfabrik tras la rehabilitación.

El impacto de este proyecto ha sido significativo. Tabačka Kulturfabrik ha actuado como un catalizador cultural en Košice, fomentando nuevas intervenciones de rehabilitación en su entorno y revitalizando el barrio de Žižkov, previamente en declive. Además, Tabačka desempeñó un papel clave en la designación de Košice como Capital Europea de la Cultura en 2013, lo que propició la aprobación de la Estrategia Creativa Košice 2014-2018[43]. Hoy en día, es el segundo centro cultural y creativo más importante de Eslovaquia, atrayendo diariamente a una gran afluencia de público y albergando a más de 80 profesionales del sector creativo, contribuyendo así a una vida cultural activa y a un renovado sentido de comunidad[44].

The Cable Factory: hibridación de usos como estrategia dinamizadora

The Cable Factory (Kaapelitehdas) (figura 6), ubicada en el distrito Ruoholahti de Helsinki, Finlandia, es oficialmente un centro cultural y de artes creativas desde el año 1991[45]. El edificio en el que se asienta se construyó para la fabricación de cables marinos. Más tarde se instaló aquí el primer superordenador de Finlandia. Cuando finalizaron las actividades de fabricación y comunicación de datos a finales de la década de 1980, creadores y productores de las Industrias Creativas encontrarían en los espacios vacantes de Cable Factory un lugar donde asentarse.

6. Kaapelitehdas, The Cable Factory.

Salmisaari, el edificio que cobija este centro se construyó para albergar una fábrica de cables en la década de 1930, siendo diseñado bajo las trazas del arquitecto Wäinö G. Palmqvist. Cuando se completó la construcción del complejo en 1954, Cable Factory era el edificio más grande de Finlandia. El edificio está catalogado como patrimonio cultural por el Ministerio de Medio Ambiente, bajo la denominación de “Fábrica de Cultura”, por los valores culturales y creativos que sostiene.

En 1987, un grupo de artistas y creativos se mudaron a esta fábrica desocupada y convirtieron las instalaciones en espacios de trabajo, iniciándose con ello un proceso bottom-up de renovación para transformar el edificio en un centro de cultura y arte para Helsinki. Posteriormente, este proyecto sería respaldado por el ayuntamiento local. Este hecho le llevó a recibir a finales de los años noventa una protección de ámbito nacional al ser considerado un complejo con valores Culturales y Creativos, categorizado como “Fábrica de Cultura”. Cable Factory, perteneciente a la red internacional Trans Europe Halles (Creative Europe), se ha constituido como uno de los centros culturales más grandes de Finlandia y atrae a una gran cantidad de visitantes cada año al albergar eventos sociales importantes como festivales de cine y exposiciones de arte contemporáneo. Actualmente, Cable Factory alberga organizaciones diversas, estudios de arte, galerías, teatros, espacios de música y danza y empresas tecnológicas creativas.

La Cable Factory es un complejo que consta de una superficie de 62 000 m² repartidos en bloques de tres, cinco y siete plantas, en una parcela de cinco hectáreas situada en las orillas del sector Salmisaari del distrito de Ruoholahti, enfrentado a la isla de Lauttasaari. Se trata de un área mayoritariamente conformada por usos administrativos y oficinas que colinda con el área central de Helsinki. Esta implantación le otorga a este complejo una imagen característica de edificios de ladrillo enfrente del agua, poniendo de manifiesto la envergadura del edificio. La construcción, otrora sobresaliente por sus dimensiones, se encuentra cobijada en la actualidad por numerosos edificios contemporáneos de estructura metálica y cerramientos acristalados de altura similar o superior, lo que pone en valor la masividad de su cerramiento pese a verse reducida su presencia en el paisaje urbano. En cuanto a la configuración interior (figura 7), se observa un volumen en forma de “U” que genera un imponente vestíbulo central, un espacio vacío de doble altura con una cubierta acristalada que separa las dos grandes alas del complejo.

7. Planta baja y diagrama de usos de The Cable Factory.

El proyecto arquitectónico de rehabilitación siguió la técnica de “no intervención”: acciones de bajo coste con la intención de obtener el máximo espacio operativo. Se aplicó un método raw space (espacio en bruto), una opción ampliamente desarrollada por la contracultura norteamericana de los años setenta en sus espacios postindustriales que invita a la apropiación creativa de los espacios y fomenta su dinamismo, permitiendo distintas combinaciones en función de las necesidades de los creadores y productores (figuras 8 y 9). Se llevaron a cabo una serie de técnicas de recuperación de los materiales originales, así como de conservación de la configuración espacial, creando espacios indeterminados y sin un uso específico.

8. Espacio Merikaapelihalli, The Cable Factory.

9. Espacio Kattilahalli, The Cable Factory.

Bajo la dirección de la empresa pública Kaapeli, la gestión se basa en un proceso de autoorganización y participación de una comunidad comprometida con la operatividad espacial del edificio gracias al fenómeno raw space, concepto principal del proyecto. El programa permanente del complejo cuenta, entre otros espacios menores, con zonas de trabajo; sala de conciertos; tres museos y zonas de residencia y alojamiento (figura 7).

La reactivación de este complejo con usos creativos y culturales, incentivado por el interés local, ha sido clave para la transformación del sector de Salmisaari. Esta intervención y su consiguiente puesta en uso por numerosos profesionales del sector creativo ha propiciado una regeneración urbana ejemplar, un éxito cuantificable más allá del número de personas que recoge -cuenta con más de 750 000 visitantes anuales, es sede de más de 300 empresas y profesionales y ha generado más de 600 puestos de trabajo-, sino también gracias a las ampliaciones realizadas recientemente como la construcción del anexo de Escuela de Baile en 2022[46] o la adquisición de otros espacios exteriores que acogen festivales y eventos internacionales multitudinarios[47].

Manifattura Tabacchi: racionalidad y creatividad en un marco renacentista

El proyecto Manifattura Tabacchi[48] (figura 10) en Florencia, Italia, es un ejemplo destacado de la reutilización de un antiguo complejo industrial en un espacio multifuncional, ambicioso y de escala monumental. Un proyecto que recupera y reutiliza el patrimonio industrial preexistente para convertirlo en un centro para las artes contemporáneas, la moda y la contracultura. Con una cuidadosa adaptación de los edificios históricos, se conservan elementos arquitectónicos (figura 11) y se interviene en la compartimentación de los espacios, fundamentalmente en el diseño de los espacios auxiliares como los núcleos húmedos o las circulaciones para garantizar la accesibilidad. Contempla, además, un interesante e importante proyecto de regeneración urbana verde que lo pone a la vanguardia de la sostenibilidad en la intervención.

10. Edificio B9 del complejo Manifattura Tabacchi en Florencia, Italia.

11. Espacio Le Caveau del complejo Manifattura Tabacchi en Florencia, Italia.

El complejo de la antigua fábrica de tabacos de Florencia, protegido como Monumento Histórico, fue construido bajo el proyecto de los ingenieros Giovanni Bartoli y Pier Luigi Nervi. Junto con el edificio recreativo (hoy Teatro Puccini), el cuerpo principal de la Manufactura constituye un hito arquitectónico en el entorno urbano donde se asienta. Se trata de una manzana privilegiada a las afueras del centro histórico de Florencia, rodeado de corredores verdes que separan el complejo de las manzanas residenciales y equipamientos que la circundan. Es un contexto de baja densidad edificatoria, con gran presencia de espacios verdes como el Parque delle Cascine y próximo al Campus Universitario de Novoli, al aeropuerto y a la estación ferroviaria, con conexiones directas con otros distritos con gran producción creativa al oeste de la ciudad. El conjunto se caracteriza por una serie de edificios de planta y volumen compactos, caracterizados por un estilo racionalista. Los volúmenes oscilan entre una y siete plantas sobre rasante y se distribuyen paralelos u ortogonales al eje este-oeste del arroyo Mugnone, a excepción del edificio de la dirección, que se asienta de forma diagonal a la retícula siguiendo el trazado de la Via delle Cascine. Entre los distintos núcleos también existen espacios de conexión y servicios, sencillos patios asfaltados para producción y procesamiento y jardines arbolados para la dirección y las oficinas.

A pesar de la iniciativa privada que da lugar a este proyecto, puede considerarse que sienta las bases en una estrategia bottom-up, ya que algunas edificaciones se utilizaron por creadores del sector de las artes escénicas desde el cierre de la fábrica en 2001 y hasta 2014, sirviendo como almacén del Teatro della Pérgola. También fue ocasionalmente utilizado para eventos y desfiles del sector de la moda, acontecimientos que suponen el germen de la ocupación creativa del complejo. En la actualidad, en Manifattura Tabacchi se combinan espacios de trabajo, zonas culturales y creativas con el alojamiento y la educación. En él se establecen también colaboraciones con instituciones educativas, albergando el campus de Polimoda, ofreciendo una formación impartida por el Istituto dei Mestieri d’Eccellenza LVMH (IME) y contando con aulas ocupadas por Florence’s Academy of Fine Arts. Próximamente será la sede en Italia del European Research Infrastructure for Heritage Science (E-RIHS). Entre sus eventos más destacados están el de Residenze d’Artista y SUPERBLAST (convocatoria a las artes para artistas menores de 40 años).

El proyecto de rehabilitación y adaptación parte de un importante masterplan desarrollado por el estudio Concrete Architectural Associates (2017), revisado más tarde por el Studio Mumbai y el estudio SANAA (2019). El proyecto arquitectónico es del estudio Q-BIC (2020) y el de paisajismo de Antonio Perazzi. Han participado otros estudios y profesionales como Piuarch, Studio Urquiola, Quincoces-Dragò & Partners, Aut Aut Architettura o Studio Lauria. La estrategia, muy respetuosa al tratarse de un edificio protegido, parte del aprovechamiento estructural y del mantenimiento de las fachadas y las paredes originales. Se han incorporado nuevos elementos necesarios (de comunicación y aseos) en piezas existentes y se ha procedido a una adaptación normativa (figuras 12 y 13).

12. Espacio interior de uno de los edificios intervenidos del complejo Manifattura Tabacchi.

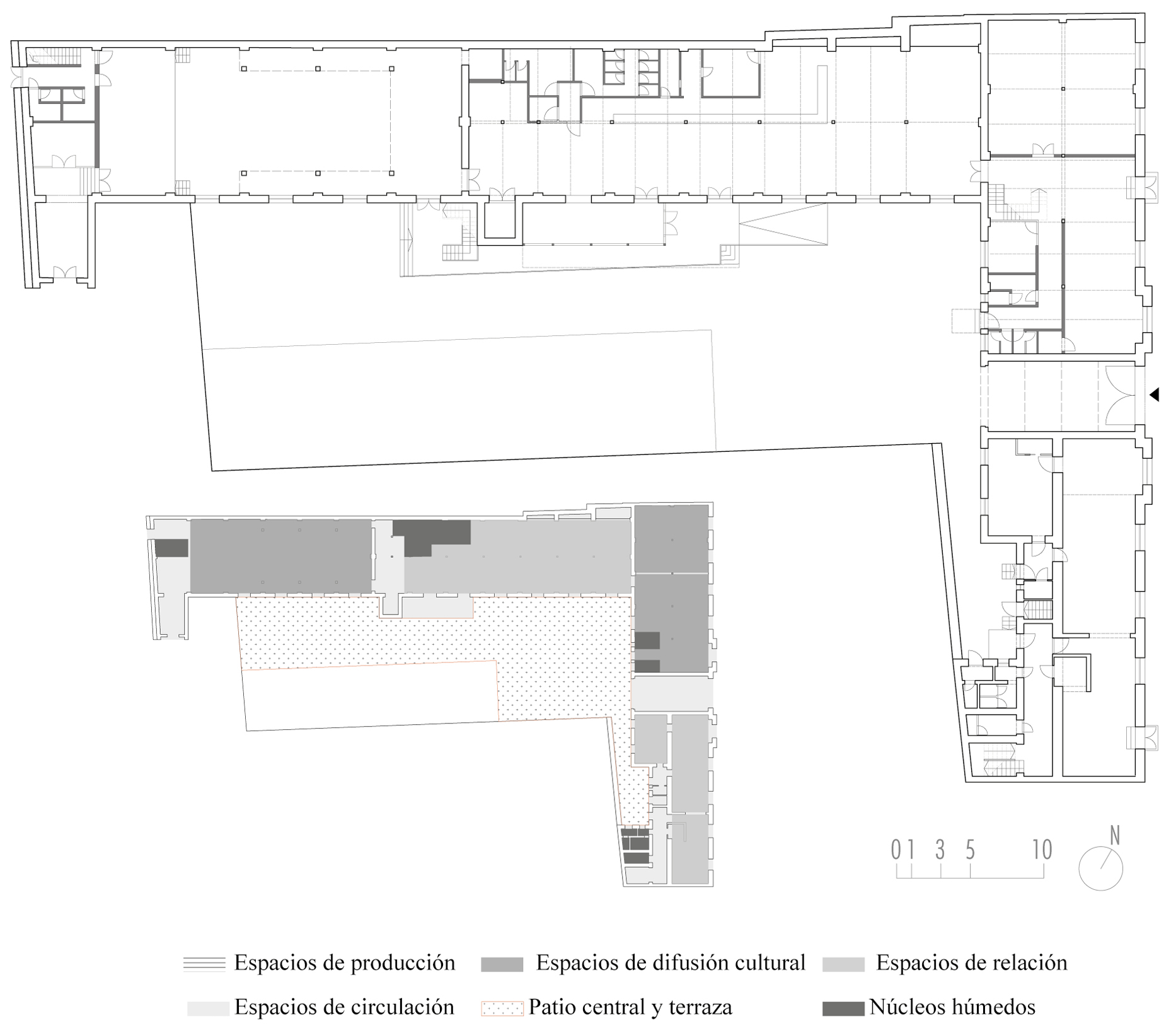
13. Planta baja y diagrama de usos del edificio B5, The Factory.

El resultado es un gran complejo multifuncional que ofrece a Florencia y a la comunidad creativa internacional un rico programa de más de 100 000 m² construidos, de los cuales cerca de 50 000 m² están destinados a usos de producción creativa (figura 13). Esto se complementa con 16 300 m² de espacios libres abiertos al público. El programa está compuesto por talleres para artesanos, creadores y productores; oficinas tradicionales y de cooperación; salas de exposiciones; tiendas de concepto y pequeño comercio; zonas de restauración; residencia de estudiantes y residencias privadas; espacio hotelero; una guardería; una cervecería de fabricación artesanal; zonas comunitarias ajardinadas al aire libre y aparcamientos subterráneos.

Manifattura Tabacchi aborda su programa de reutilización con el objetivo de crear un distrito autónomo, una ciudad reindustrializada. A diferencia de otras intervenciones analizadas, aquí no se busca la hibridación o multifuncionalidad de usos en cada edificio. En lugar de ello, la abundancia de espacio permite distribuir diferentes usos complementarios en todo el complejo, con el propósito de formar un ecosistema creativo independiente y autosuficiente.

CONCLUSIONES

Los tres casos de estudio presentados pretenden, por medio de diferentes propuestas, dar respuesta a la actual demanda de salvaguarda de la memoria productiva y la conservación del patrimonio industrial, apoyándose para ello en el potencial de las Industrias Creativas. Esto permite identificar ejes comunes que conforman los aspectos fundamentales del éxito de estas intervenciones.

La preservación de la integridad arquitectónica de estos espacios ha sido fundamental en todos los casos, pero lo que distingue a estos proyectos es su capacidad para innovar dentro de los límites de la conservación. Los proyectos de Tabačka y Manifattura Tabacchi han demostrado la posibilidad de mantener el carácter histórico de un edificio mientras se integra en ellos la tecnología y la funcionalidad contemporánea. Este enfoque no solo respeta el pasado, sino que lo revitaliza en un contexto emergente. Por otro lado, The Cable Factory adopta un enfoque más radical con su concepto de raw space, lo que permite una adaptabilidad casi ilimitada dentro de un marco estructural protegido. Esta capacidad de innovación y conservación sugiere que la reutilización adaptativa no debe verse como un compromiso entre lo nuevo y lo construido, sino como una técnica de intervención que permite seguir leyendo el relato histórico de la arquitectura industrial preexistente.

Del mismo modo, la flexibilidad emerge como una característica esencial en estos proyectos. Los espacios que pueden adaptarse a las necesidades cambiantes del tiempo y la comunidad no solo sobreviven, sino que prosperan. Este aspecto es evidente en la continua evolución de los usos en The Cable Factory y Tabačka, donde los espacios se redefinen constantemente en respuesta a una serie de demandas. Además, el enfoque en la eficiencia energética y el entorno no construido, como se ve en Manifattura Tabacchi, subraya la importancia de integrar prácticas sostenibles no solo en la construcción y renovación, sino también en la operación diaria de estos centros. Esto asegura que la reutilización adaptativa no sea simplemente una solución a corto plazo, sino una estrategia duradera que puede evolucionar con la comunidad. Este aspecto se revela como idiosincrático de la arquitectura industrial, frecuentemente adaptada a los avances técnicos y tecnológicos y a las directrices económicas de su época.

La participación comunitaria también demuestra ser un factor clave en la sostenibilidad y éxito de estos proyectos. Tanto en Tabačka Kulturfabrik como en The Cable Factory, la implicación de la comunidad desde el inicio ha garantizado que los espacios respondan a las necesidades reales de sus usuarios, creando un sentido de pertenencia y asegurando una gestión descentralizada. Este enfoque no solo empodera a la comunidad, sino que también crea un modelo de gestión resiliente y flexible que puede adaptarse a los cambios en el contexto cultural y económico. Aunque el proyecto de Manifattura Tabacchi se gestiona por una iniciativa privada, su éxito también ha dependido de la capacidad de integrar a actores locales e institucionales, demostrando que la colaboración entre diferentes niveles de gestión es crucial para la viabilidad de los proyectos a largo plazo. Ese aspecto es crucial para prevenir futuras especulaciones y los consecuentes procesos de turistificación y gentrificación, implantando políticas que favorezcan a la comunidad local como el mantenimiento de los precios de alquiler de los espacios y el alza de estos dependiendo de la escala de la empresa y su procedencia, la inclusión de la infancia en los programas de actividades, etc.

Los tres casos demuestran que la conservación del patrimonio con pasado productivo a través de la economía creativa y mediante la reutilización adaptativa de su arquitectura tiene un potencial significativo para catalizar la regeneración urbana y revitalizar comunidades. Sin embargo, el impacto va más allá de lo económico; estos proyectos han reconfigurado las dinámicas sociales en sus barrios. Por ejemplo, Tabačka ha transformado un área previamente marginada en un centro vibrante de actividad cultural, mientras que The Cable Factory ha hecho lo propio en Helsinki, creando un espacio que no solo es un centro de producción creativa, sino también un símbolo de la identidad cultural de la ciudad. Manifattura Tabacchi, por su parte, muestra cómo un enfoque integral híbrido que incluye educación, comercio y cultura puede regenerar no solo un edificio, sino todo un sector urbano, promoviendo la sostenibilidad y el desarrollo social a largo plazo.

En conjunto, Tabačka Kulturfabrik, The Cable Factory y Manifattura Tabacchi demuestran que la reutilización adaptativa del patrimonio industrial, cuando se aborda como un proceso colectivo, flexible y respetuoso, tiene el potencial de generar impactos profundos y duraderos en las comunidades. Estos proyectos no solo preservan el pasado, sino que lo redefinen como una base sobre la cual construir un futuro en el que la cultura, la creatividad y la comunidad son las fuerzas impulsoras detrás de la conservación y la regeneración urbana. Esta estrategia ofrece un modelo replicable para otras ciudades y regiones que buscan revitalizar su patrimonio industrial, fomentando la conservación arquitectónica y el desarrollo social y económico.

Aportación de cada autor CRediT:

Safiya Tabali (ST); José-Manuel Romero-Ojeda (JMRO); María F. Carrascal Pérez (MFCP): Conceptualización; Investigación; Visualización; Metodología; Redacción -borrador original; revisión y edición (ST 33,3%; JMRO 33,3%; MFCP 33,3%)

Todos los/las autores/as declaran que no existe ningún conflicto de intereses con los resultados del trabajo.

Financiación

Este trabajo se enmarca en un proyecto I+D+i de concurrencia competitiva de carácter autonómico, promovido por la Consejería de Fomento, Articulación del Territorio y Vivienda de la Junta de Andalucía, denominado “CREAfab. Metodologías para una reindustrialización creativa de los centros históricos” (referencia US.22-03). Convocatoria: Ayudas, en régimen de concurrencia competitiva, destinadas a Universidades Públicas Andaluzas para el desarrollo de proyectos de investigación en las materias competencia de la Secretaría General de Vivienda (Resolución de 4 de marzo de 2022). Periodo de ejecución: 2022-2024 (15 meses). Presupuesto: 50.000,00 €. La entidad financiadora no ha participado en la ejecución de la investigación.

Biografía de los autores

Safiya Tabali (Tánger, 1995); Arquitecta por la Escuela Técnica Superior de Arquitectura de la Universidad de Sevilla en 2019, Máster BIM Manager for Project Management and Lean Construction por la Universidad Pablo de Olavide (2021). Ha publicado capítulos de libro en Arte y educación en contextos multidisciplinares (Dykinson, 2023) y en Comunicar la arquitectura: del origen de la modernidad a la era digital (Editorial Universidad de Granada, 2024). Es personal investigador de la Universidad de Sevilla a cargo del proyecto de investigación competitivo CREAfab: Metodologías para una reindustrialización creativa de los centros históricos (IP: María F. Carrascal Pérez) financiado por la Consejería de Fomento, Articulación del Territorio y Vivienda.

José Manuel Romero Ojeda (España, 1994); Arquitecto por la Escuela Técnica Superior de Arquitectura de la Universidad de Sevilla en 2019, Colaborador Docente del Departamento de Historia, Teoría y Composición Arquitectónicas (ETSAS). Ha publicado artículos científicos en las revistas Journal of Tourism Analysis. Revista de Análisis Turístico (JTA) (30(1), 2023), Hábitat y Sociedad (16(16), 311-320, 2023) y capítulos de libro en Arte y educación en contextos multidisciplinares (Dykinson, 2023) y en Lecture Notes in Civil-Proceedings of CIRMARE 2023 (Springer, 2023). Miembro del grupo de investigación HUM1008 - ARPAE. Es personal investigador de la Universidad de Sevilla a cargo del proyecto de investigación competitivo CREAfab: Metodologías para una reindustrialización creativa de los centros históricos (IP: María F. Carrascal Pérez) financiado por la Consejería de Fomento, Articulación del Territorio y Vivienda.

María F. Carrascal Pérez (Huelva, 1982); Arquitecta por la Escuela Técnica Superior de Arquitectura de la Universidad de Sevilla en 2007, dra. Arquitecta en 2015, Profesora Permanente Laboral -cat. PCD (2023) del Departamento de Historia Teoría y Composición Arquitectónicas en el que imparte docencia desde 2009. Ha publicado artículos científicos en las revistas The Historic Environment: Policy and Practice (nº14, 2022), Proyecto Progreso y Arquitectura (nº 27, 2022), Journal of Environmental Studies (nº66, 2022), VLC Arquitectura (nº 8-1, 2021), Journal of Urbanism (nº12 - 1, 2018) y ZARCH (nº1-1, 2013) entre otras y capítulos de libro en Arte y educación en contextos multidisciplinares (Dykinson, 2023) y Arquitectura, ciudad y patrimonio (Abada, 2022) entre otros libros. Es co-editora del anuario de la ETSAS Galerías y responsable del grupo de investigación PAIDI HUM-666.

Bibliografía citada

ÁLVAREZ ARECES, Miguel Ángel. El Patrimonio Industrial en España. Situación actual y perspectivas de actuación. En: María del Pilar BIEL IBÁÑEZ. Patrimonio Industrial y la Obra Pública. Zaragoza: Gobierno de Aragón, Departamento de Educación, Cultura y Deporte, 2007, pp. 9-25. ISBN 978-84-8380-059-1. Disponible en: https://dialnet.unirioja.es/servlet/libro?codigo=507168&orden=0&info=open_link_libro.

AÑÓN ABAJAS, Rosa María. Despejar la arquitectura, liberar el espacio y ampliar conceptos. En: Proyecto, Progreso, Arquitectura [en línea]. Sevilla: Editorial Universidad de Sevilla, 2021, n.º 24, pp. 4-17 [consulta: 25-03-2024]. ISSN-e 2173-1616. Disponible en: https://revistascientificas.us.es/index.php/ppa/article/view/16177. DOI: https://doi.org/10.12795/ppa.2021.i24.10.

BATHELT, Heral; MALMBERG, Anders; MASKELL, Peter. Clusters and knowledge: local buzz, global pipelines and the process of kowledge creation. En: Progress in Human Geography [en línea]. Thousand Oaks CA: SAGE Publications, vol. 28, n.º 1, 2002, pp. 31-56 [consulta: 22-03-2024]. Disponible en: https://journals.sagepub.com/doi/abs/10.1191/0309132504ph469oa DOI: http://dx.doi.org/10.1191/0309132504ph469oa.

BENITO DEL POZO, Carmen. Europa ante el patrimonio industrial. Financiación comunitaria a los proyectos de recuperación patrimonial. En: RAE. Revista Asturiana de Economía [en línea]. Oviedo: Asociación Asturiana de Estudios Económicos, 1996, n.º 6, pp. 183-195. Disponible en: https://dialnet.unirioja.es/servlet/articulo?codigo=3865914.

BULLEN, Peter. A.; LOVE, Peter E. D. Adaptive reuse of heritage buildings. En: Structural Survey [en línea]. Bingley: Emerald Publishing Limited, 2011, vol. 29, n.º 5, pp. 411-421 [consulta: 19-08-2024]. Disponible en: https://www.emerald.com/insight/content/doi/10.1108/02630801111182439/full/html. DOI: https://doi.org/10.1108/02630801111182439.

CALLE VAQUERO, Manuel de la. Turistificación de centros urbanos: clarificando el debate. En: Boletín de la Asociación Española de Geografía [en línea]. Madrid: AGE, diciembre 2019, n.º 83, pp. 1-40 [consulta: 23-03-2024]. ISSN-e 2605-3322. Disponible en: https://bage.age-geografia.es/ojs/index.php/bage/article/view/2829. DOI: https://doi.org/10.21138/bage.2829.

CARTA, Maurizio. Creative City. Dynamics, Innovations, Actions. Trento: LISt Laboratorio Internazionale Editoriale, 2007. ISBN 9788895623030.

EUROPEAN COMISSION. Creative Europe 2021-2027-Push Boundaries. [En línea] Dirección General de Educación, Juventud, Deporte y Cultura, Unión Europea, 2021[consulta: 21-03-2024]. Disponible en: https://data.europa.eu/doi/10.2766/794740.

HERNÁNDEZ MARTÍNEZ, Ascensión. El reciclaje de la arquitectura industrial. En: María del Pilar Biel Ibáñez. Patrimonio Industrial y la Obra Pública. Zaragoza: Gobierno de Aragón, Departamento de Educación, Cultura y Deporte. 2007, pp. 29-51. ISBN 978-84-8380-059-1.

HIDALGO-SÁNCHEZ, Francisco-Manuel; TABALI, Safiya; CARRASCAL-PÉREZ, María F. CREAfab App: herramienta digital para la investigación y gestión de procesos de reindustrialización creativa en ciudades históricas En: Juan CALATRAVA, David ARREDONDO GARRIDO y Marta RODRÍGUEZ ITURRIAGA. Comunicar la arquitectura. Del origen de la modernidad a la era digital [en línea]. Granada: Editorial Universidad de Granada, 2024 [consulta: 18-10-2024]. ISBN-e 978-84-338-7371-2. Disponible en: https://editorial.ugr.es/libro/comunicar-la-arquitectura_139503/.

EVANS, Graeme L. Creative Cities, Creative Spaces and Urban Policy. En: Urban Studies [en línea]. Thousand Oaks CA: SAGE Publishing, 2009, vol. 46, n.º 5-6, pp.1003-1040 [consulta: 18-08-2024]. ISSN-e 1360-063X. Disponible en: https://journals.sagepub.com/doi/10.1177/0042098009103853. DOI: https://doi.org/10.1177/0042098009103853.

FLORIDA, Richard. The Rise of the Creative Class. New York: Basic Books, 2002. ISBN 9780465029938.

FLORIDA, Richard. Cities and the Creative Class. Londres: Routledge, 2004. ISBN 9780415948876.

GARCÍA TIELVE, Natalia. Patrimonio y producción: de las fábricas de tabacos a las industrias culturales. En: Ábaco. Gijón (Asturias): CICEES, 2018, n.º 97, pp. 86-94. ISSN 0213-6252. Disponible en: https://www.jstor.org/stable/26562068.

GARCÍA-VÁZQUEZ, Carlos. Cities After Crisis. Reinventing Neighborhood Design From the Ground-Up. Londres-Nueva York: Routledge, 2022. ISBN 9780367673277.

LANDRY, Charles. The Art of City Making. Londres: Earthscan and International Institute for Environment and Development, 2006. ISBN 978-1-84407-245-3.

LANDRY, Charles. The creative city: A toolkit for urban innovators. Londres: Routledge, 2012. ISBN 978-1-84407-598-0.

PLEVOETS, Bie; CLEEMPOEL, Koenraad van. Adaptive Reuse of the Built Heritage: Concepts and Cases of an Emerging Discipline [en línea]. Londres: Routledge, 2019 [consulta: 19-08-2024]. ISBN-e 9781315161440. Disponible en: https://www.taylorfrancis.com/books/mono/10.4324/9781315161440/adaptive-reuse-built-heritage-bie-plevoets-koenraad-van-cleempoel. DOI : https://doi.org/10.4324/9781315161440.

RODRÍGUEZ MARÍN, Francisco José. Criterios de intervención en la rehabilitación del patrimonio industrial arquitectónico. En: Gremium [en línea]. Ciudad de México, enero 2018, vol. 5, n.º 9, pp. 35-50 [consulta: 11/08/2024]. Disponible en: https://www.redalyc.org/articulo.oa?id=684175705004.

SÁNCHEZ-MONTAÑÉS, Benito; CASTILLA, Manuel V. Fábricas de resiliencia. Una oportunidad para el patrimonio industrial: el caso de La Trinidad. En: ACE: Architecture, City and Environment Salud, Arquitectura, Ciudad y Entorno durante y después de la pandemia COVID-19 [en línea]. Barcelona: Universitat Politècnica de Catalunya, junio 2020, Año 15, n.º 43 [consulta: 16-03-2024]. ISSN-e 1886-4805. Disponible en: https://revistes.upc.edu/index.php/ACE/article/view/9192. DOI: https://doi.org/10.5821/ace.15.43.9192.

SOBRINO, Julián. Fábricas que cierran: la paradoja de lo productivo desocupado. En: Marta Pelegrín Rodríguez, Fernando Pérez Blanco. Arquitectura dispuesta: preposiciones cotidianas. Sevilla: Editorial Universidad de Sevilla. 2015, pp. 182-197. ISBN 978-84-472-1796-0.

ŠUJANOVÁ, Katarína. 2017. Každé väčšie mesto by malo mať svoju “tabačku“ (Toda gran ciudad debería tener su “Tabacka”). En: Forbes [en línea]. Bratislava: Barecz & Conrad Media [consulta: 19-08-2024]. Disponible en: https://www.forbes.sk/kazde-vacsie-mesto-by-malo-mat-svoju-tabacku/.

TABALI, Safiya; ROMERO-OJEDA, José-Manuel; CARRASCAL-PÉREZ, María F. Industrias creativas y patrimonio industrial. Metodologías para la construcción de un panorama internacional de referencias. En: Begoña YAÑEZ-MARTÍNEZ, Lorena LÓPEZ-MÉNDEZ y Daniel ZAPATERO GUILLÉN. Arte y educación en contextos multidisciplinares. Madrid: Dykinson, 2023, pp 249-268. ISBN 978-84-1170-305-5.

UNCTAD. Perspectivas de la Economía Creativa 2022. Panorama general. En: Conferencia de las Naciones Unidas sobre Comercio y Desarrollo [en línea]. Ginebra: Naciones Unidas, 2022 [consulta: 21-03-2024]. Disponible en: https://unctad.org/system/files/official-document/ditctsce2022d1_overview_es.pdf.

UNESCO. Políticas para la creatividad. Guía para el desarrollo de las industrias culturales y creativas. Organización de las Naciones Unidas para la Educación, la Ciencia y la Cultura; Ministerio de Asuntos Exteriores y de Cooperación, Gobierno de España, 2010. ISBN 978-92-3-304190-5. Disponible en: https://unesdoc.unesco.org/ark:/48223/pf0000220384.


[1] SÁNCHEZ-MONTAÑÉS, Benito; CASTILLA, Manuel V. Fábricas de resiliencia. Una oportunidad para el patrimonio industrial: el caso de La Trinidad. En: ACE: Architecture, City and Environment. Salud, Arquitectura, Ciudad y Entorno durante y después de la pandemia COVID-19 [en línea]. Barcelona: Universitat Politècnica de Catalunya, junio 2020, Año 15, n.º 43 [consulta: 16-03-2024]. ISSN-e 1886-4805. Disponible en: https://revistes.upc.edu/index.php/ACE/article/view/9192. DOI: https://doi.org/10.5821/ace.15.43.9192.

[2] SOBRINO, Julián. Fábricas que cierran: la paradoja de lo productivo desocupado. En: Marta PELEGRÍN RODRÍGUEZ; Fernando PÉREZ BLANCO. Arquitectura dispuesta: preposiciones cotidianas. Sevilla: Editorial Universidad de Sevilla, 2015, pp. 182-197. ISBN 978-84-472-1796-0.

[3] Ídem.

[4] SÁNCHEZ-MONTAÑÉS, Benito; CASTILLA, Manuel V., op. cit. supra, nota 1, p. 105.

[5] RODRÍGUEZ MARÍN, Francisco José. Criterios de intervención en la rehabilitación del patrimonio industrial arquitectónico. En: Gremium [en línea]. Ciudad de México, enero 2018, vol. 5, n.º 9, pp. 35-50 [consulta: 11/08/2024]. Disponible en: https://www.redalyc.org/articulo.oa?id=684175705004.

[8] HERNÁNDEZ MARTÍNEZ, Ascensión. El reciclaje de la arquitectura industrial. En: María del Pilar BIEL IBÁÑEZ. Patrimonio Industrial y la Obra Pública. Zaragoza: Gobierno de Aragón, Departamento de Educación, Cultura y Deporte, 2007, pp. 29-51. ISBN 978-84-8380-059-1.

[9] Ídem.

[10] PLEVOETS, Bie; CLEEMPOEL, Koenraad van. Adaptive Reuse of the Built Heritage: Concepts and Cases of an Emerging Discipline [en línea]. Londres: Routledge, 2019 [consulta: 19-08-2024]. ISBN-e 9781315161440. Disponible en: https://www.taylorfrancis.com/books/mono/10.4324/9781315161440/adaptive-reuse-built-heritage-bie-plevoets-koenraad-van-cleempoel. DOI : https://doi.org/10.4324/9781315161440.

[11] Antigua central eléctrica de Bankside, obra del arquitecto sir Giles Gilbert Scott en 1947, reconvertida a sede de la Colección Tate por el estudio Herzog & De Meuron. Inaugarada en el año 2000 y ampliada en 2016.

[12] Antiguos cuatro tanques de gas para la iluminación pública de la ciudad de Viena, Austria, construidos entre 1896 y 1899 y reconvertidos en complejo híbrido residencial, comercial y cultural por los arquitectos Jean Nouvel, Coop Himmelblau, Manfred Wehdorn y Wilhelm Holzbauer entre 1999 y 2001.

[13] Antigua central eléctrica en Madrid construida en el año 1900, reconvertido por Herzog y De Meuron como sede del proyecto CaixaForum en la capital, centro de arte y cultura contemporáneas de la Fundación “La Caixa”. Inaugurado en el año 2008.

[14] BULLEN, Peter. A.; LOVE, Peter E.D. Adaptive reuse of heritage buildings. En: Structural Survey [en línea]. Bingley: Emerald Publishing Limited, 2011, vol. 29, n.º 5, pp. 411-421 [consulta: 19-08-2024]. Disponible en: https://www.emerald.com/insight/content/doi/10.1108/02630801111182439/full/html. DOI: https://doi.org/10.1108/02630801111182439.

[15] Ala oeste del Palais des Musées d’Art Moderne, construido en 1937 a orillas del Sena por Jean-Claude Dondel y André Aubert, reconvertido a cine y espacio expositivo por Lacaton & Vassal, con una primera intervención en el año 2001 y en la posterior ampliación en 2012.

[16] Antiguo complejo de minería de carbón implantado en el año 1917 en la ciudad de Genk, cuya central energética fue transformada en un centro cultural y creativo por el estudio 51N4E en el año 2010.

[17] ÁLVAREZ ARECES, Miguel Ángel. El Patrimonio Industrial en España. Situación actual y perspectivas de actuación. En: María del Pilar BIEL IBÁÑEZ, coord. Patrimonio Industrial y la Obra Pública. Zaragoza: Gobierno de Aragón, Departamento de Educación, Cultura y Deporte, 2007, pp. 9-25. ISBN 978-84-8380-059-1. Disponible en: https://dialnet.unirioja.es/servlet/libro?codigo=507168&orden=0&info=open_link_libro.

[18] Ídem.

[19] Proyecto de investigación de concurrencia competitiva de carácter autonómico, promovido por la Consejería de Fomento, Articulación del Territorio y Vivienda de la Junta de Andalucía, liderado por María F. Carrascal Pérez. Disponible en: https://grupo.us.es/creativecity.

[20] TABALI, Safiya; ROMERO-OJEDA, José-Manuel; CARRASCAL-PÉREZ, María F. Industrias creativas y patrimonio industrial. Metodologías para la construcción de un panorama internacional de referencias. En: Begoña YAÑEZ-MARTÍNEZ, Lorena LÓPEZ-MÉNDEZ y Daniel ZAPATERO GUILLÉN. Arte y educación en contextos multidisciplinares. Madrid: Dykinson, 2023, pp 249-268. ISBN 978-84-1170-305-5.

[21] AÑÓN ABAJAS, Rosa María. Despejar la arquitectura, liberar el espacio y ampliar conceptos. En: Proyecto, Progreso, Arquitectura [en línea]. Sevilla: Editorial Universidad de Sevilla, 2021,n.º 24, pp. 4-17 [consulta: 25-03-2024]. ISSN-e 2173-1616. Disponible en: https://revistascientificas.us.es/index.php/ppa/article/view/16177. DOI: https://doi.org/10.12795/ppa.2021.i24.10.

[22] UNCTAD. Perspectivas de la Economía Creativa 2022. Panorama general. En: Conferencia de las Naciones Unidas sobre Comercio y Desarrollo [en línea]. Ginebra: Naciones Unidas, 2022 [consulta: 21-03-2024]. Disponible en: https://unctad.org/system/files/official-document/ditctsce2022d1_overview_es.pdf.

[23] FLORIDA, Richard. The Rise of the Creative Class. New York: Basic Books, 2002. ISBN 9780465029938.

[24] FLORIDA, Richard. Cities and the Creative Class. Londres: Routledge, 2004. ISBN 9780415948876.

[25] BATHELT, Heral; MALMBERG, Anders; MASKELL, Peter. Clusters and knowledge: local buzz, global pipelines and the process of kowledge creation. En: Progress in Human Geography [en línea]. Thousand Oaks CA: SAGE Publications, vol.28, n.º 1, 2002, pp. 31-56 [consulta: 22-03-2024]. Disponible en: https://journals.sagepub.com/doi/abs/10.1191/0309132504ph469oa DOI: http://dx.doi.org/10.1191/0309132504ph469oa.

[26] CARTA, Maurizio. Creative City. Dynamics, Innovations, Actions. Trento: LISt Laboratorio Internazionale Editoriale, 2007. ISBN 9788895623030.

[27] LANDRY, Charles. The Art of City Making. Londres: Earthscan and International Institute for Environment and Development, 2006. ISBN 978-1-84407-245-3.

[28] LANDRY, Charles. The creative city: A toolkit for urban innovators. Londres: Routledge, 2012. ISBN 978-1-84407-598-0.

[29] EUROPEAN COMISSION. Creative Europe 2021-2027-Push Boundaries [En línea]. Dirección General de Educación, Juventud, Deporte y Cultura, Unión Europea, 2021 [consulta: 21-03-2024]. Disponible en: https://data.europa.eu/doi/10.2766/794740.

[30] GARCÍA-VÁZQUEZ, Carlos. Cities After Crisis. Reinventing Neighborhood Design From the Ground-Up. Londres-Nueva York: Routledge, 2022. ISBN 9780367673277.

[31] UNESCO. Políticas para la creatividad. Guía para el desarrollo de las industrias culturales y creativas. Organización de las Naciones Unidas para la Educación, la Ciencia y la Cultura; Ministerio de Asuntos Exteriores y de Cooperación, Gobierno de España, 2010. ISBN 978-92-3-304190-5. Disponible en: https://unesdoc.unesco.org/ark:/48223/pf0000220384.

[32] CALLE VAQUERO, Manuel de la. Turistificación de centros urbanos: clarificando el debate. En: Boletín de la Asociación Española de Geografía [en línea]. Madrid: AGE,diciembre 2019, n.º 83, pp. 1-40 [consulta: 23-03-2024]. ISSN-e 2605-3322. Disponible en: https://bage.age-geografia.es/ojs/index.php/bage/article/view/2829. DOI: https://doi.org/10.21138/bage.2829.

[37] EVANS, Graeme L. Creative Cities, Creative Spaces and Urban Policy. En: Urban Studies [en línea]. Thousand Oaks CA: SAGE Publishing, 2009, vol. 46, n.º 5-6, pp.1003-1040 [consulta: 18-08-2024]. ISSN-e 1360-063X. Disponible en: https://journals.sagepub.com/doi/10.1177/0042098009103853. DOI: https://doi.org/10.1177/0042098009103853.

[38] BENITO DEL POZO, Carmen. Europa ante el patrimonio industrial. Financiación comunitaria a los proyectos de recuperación patrimonial. En: RAE. Revista Asturiana de Economía [en línea].Oviedo: Asociación Asturiana de Estudios Económicos, 1996, n.º 6, pp. 183-195. Disponible en: https://dialnet.unirioja.es/servlet/articulo?codigo=3865914.

[39] HIDALGO-SÁNCHEZ, Francisco-Manuel; TABALI, Safiya; CARRASCAL-PÉREZ, María F. CREAfab App: herramienta digital para la investigación y gestión de procesos de reindustrialización creativa en ciudades históricas En: Juan CALATRAVA, David ARREDONDO GARRIDO y Marta RODRÍGUEZ ITURRIAGA. Comunicar la arquitectura. Del origen de la modernidad a la era digital [en línea]. Granada: Editorial Universidad de Granada, 2024, pp 1613-1626. [consulta: 18-10-2024]. ISBN-e 978-84-338-7371-2. Disponible en: https://editorial.ugr.es/libro/comunicar-la-arquitectura_139503/.

[40] Ídem.

[41] TABALI, Safiya; ROMERO-OJEDA, José-Manuel; CARRASCAL-PÉREZ, María F. Industrias creativas y patrimonio industrial. Metodologías para la construcción de un panorama internacional de referencias. En: Begoña YAÑEZ-MARTÍNEZ, Lorena LÓPEZ-MÉNDEZ y Daniel ZAPATERO GUILLÉN. Arte y educación en contextos multidisciplinares. Madrid: Dykinson, 2023, pp. 249-268. ISBN: 978-84-1170-305-5.

[42] GARCÍA TIELVE, Natalia. Patrimonio y producción: de las fábricas de tabacos a las industrias culturales. En: Ábaco. Gijón (Asturias): CICEES, 2018, n.º 97, pp. 86-94. ISSN 0213-6252. Disponible en: https://www.jstor.org/stable/26562068.

[44] ŠUJANOVÁ, Katarína. 2017. Každé väčšie mesto by malo mať svoju “tabačku“ (Toda gran ciudad debería tener su “Tabacka”). En: Forbes [en línea]. Bratislava: Barecz & Conrad Media [consulta: 19-08-2024]. Disponible en: https://www.forbes.sk/kazde-vacsie-mesto-by-malo-mat-svoju-tabacku/.