Proyecto, Progreso, Arquitectura. N31 (2024)

Arquitecturas para la industria

Noviembre 2024

ISSN 2171–6897 / ISSNe 2173–1616

© 2024. E. Universidad de Sevilla.

Creative Commons Attribution-NonCommercial-ShareAlike 4.0 International (CC BY-NC-SA 4.0)

USM HALLER: UN PARADIGMA DE SIMBIOSIS ENTRE ARQUITECTURA E INDUSTRIA

USM HALLER: A PARADIGM OF SYMBIOSIS BETWEEN ARCHITECTURE AND INDUSTRY

Angélica Fernández-Morales 0000-0002-5090-2331

Persona de contacto / Corresponding author: angelica.fernandez@unizar.es. Universidad de Zaragoza. España.

Miguel Sancho-Mir 0000-0003-2903-475X

Marta Quintilla-Castán 0000-0002-2308-752X

Recepción: 131-03-2024. Aceptación: 12-09-2024

Cómo citar:

FERNÁNDEZ-MORALES, Angélica, SANCHO-MIR, Miguel y QUINTILLA-CASTÁN, Marta. USM Haller: un paradigma de simbiosis entre arquitectura e industria. En: Proyecto, Progreso, Arquitectura. Sevilla: Editorial Universidad de Sevilla, noviembre 2024, nº 31 Arquitecturas para la industria, pp. 32-51. https://dx.doi.org/10.12795/ppa.2024.i31.02

RESUMEN En 1961, el arquitecto suizo Fritz Haller recibió el encargo de diseñar la nave de producción de perfiles de acero USM en Münsingen (Suiza). Nació así una colaboración que se prolongó durante décadas con la creación de tres sistemas constructivos modulares de estructura de acero (MAXI, MINI y MIDI) y una línea de mobiliario, diseñados por Haller y fabricados y comercializados por USM. Los sistemas USM-Haller son un ejemplo exitoso de colaboración con la industria en el desarrollo de sistemas prefabricados para la construcción de edificios, tanto industriales como de otros usos. La investigación recopila información detallada relativa a dichos sistemas constructivos, incluyendo la generación de nueva información gráfica a partir de los datos y dibujos publicados en la época. Con ello, se evalúa la relevancia de los mencionados diseños dentro de la trayectoria del arquitecto, como catalizadores del pensamiento sistémico y estructural que trasladó a otras escalas y al ámbito de la investigación; así como en el contexto de la arquitectura de la segunda mitad del siglo XX, en el que los sistemas USM-Haller son una aportación importante a la arquitectura modular prefabricada.

PALABRAS CLAVE Fritz Haller; Solothurn Schule; Konrad Wachsmann; prefabricación; arquitectura industrial.

SUMMARY In 1961, Swiss architect Fritz Haller received the commission to design the USM steel profile production building in Münsingen (Switzerland). A collaboration was thus born that lasted for decades with the creation of three steel structure modular construction systems (MAXI, MINI and MIDI) and a line of furniture, designed by Haller and manufactured, marketed and sold by USM. USM-Haller systems are a successful example of collaboration with industry in developing prefabricated systems for the construction of buildings, both industrial and for other uses. This research compiles detailed information with regard to these construction systems, including the generation of new graphic information based on the data and drawings published in the period. With this, we assess the relevance of these designs within the architect’s career, as catalysts of the systemic and structural thought that he transferred to other scales and the scope of the research; as well as in the context of the architecture of the second half of the 20th century, in which the USM-Haller systems are an important contribution to prefabricated modular architecture.

KEYWORDS Fritz Haller; Solothurn School; Konrad Wachsmann; prefabrication; industrial architecture.

INTRODUCCIÓN

El arquitecto suizo Fritz Haller (Soleura, 1924 - Berna, 2012) es reconocido hoy en día por su contribución al diseño de edificios industriales y por su colaboración con la industria para el desarrollo de sistemas constructivos modulares aplicables a edificios de diversos usos. Su implicación con la arquitectura industrial se inició en 1961, con el encargo de la sede de la empresa de perfiles de acero USM en Münsingen (Suiza). Haller diseñó para ese proyecto un sistema constructivo modular en acero, adaptado a las necesidades productivas de la empresa, que acabó convirtiéndose en un producto comercial en sí mismo (sistema MAXI). A este siguieron otros dos, concebidos para edificios de otros usos (sistemas MINI y MIDI).

El artículo se centra en el análisis de los sistemas USM-Haller, con los siguientes objetivos:

Para ello, se han consultado prioritariamente fuentes de la época, como los artículos firmados por el propio Haller en la revista Bauen+Wohnen, así como artículos de otras revistas, monografías y publicaciones académicas posteriores. Para la presentación de la descripción detallada de los tres sistemas constructivos, se han elaborado modelos 3D, a partir de los cuales se han generado axonometrías explicativas.

ANTECEDENTES. ARQUITECTURA INDUSTRIAL Y SISTEMAS CONSTRUCTIVOS MODULARES

La arquitectura industrial experimentó una transformación notable en las décadas del siglo XX previas a la creación de los sistemas USM-Haller, impulsada por algunas figuras pioneras. En Estados Unidos, los edificios de Albert Kahn para la industria automovilística y aeronáutica plasmaron los principios fordistas de pragmatismo y adaptabilidad al proceso productivo, priorizando la máxima flexibilidad para adaptarse a los futuros requerimientos de los procesos industriales en constante cambio. Arquitectónicamente esto se tradujo en la búsqueda del espacio horizontal diáfano, el uso de exoestructuras, envolventes livianas, la sección como definidora tecnológica del espacio, y ordenación en planta regida por la estructura[1]. En Europa, Walter Gropius renovó la imagen de la arquitectura industrial en su Fábrica Fagus, en 1913, con una fachada acristalada que se convertiría en adelante en característica de este tipo de arquitectura.

Las necesidades cambiantes de los procesos industriales favorecieron la exploración de la prefabricación y el uso de sistemas constructivos modulares, haciéndose más generalizado en la posguerra, debido a la necesidad de una construcción rápida. Alemania fue el primer país europeo en el que los arquitectos se involucraron activamente en el desarrollo y uso de nuevos sistemas constructivos industriales[2]. Dos destacados impulsores fueron Walter Gropius y Konrad Wachsmann.

Gropius fue fundamental como defensor de la estandarización y la prefabricación en la arquitectura promoviendo, tanto desde la Bauhaus como desde el Deutscher Werkbund, el papel de los arquitectos en el desarrollo de productos industriales. En Estados Unidos desarrolló, junto a Wachsmann, la Packaged House, considerado un diseño paradigmático de vivienda prefabricada.

Por su parte, Konrad Wachsmann, especializado en construcción de madera y autor de varios sistemas prefabricados desde los años veinte, y su libro Wendepunkt im Bauen (1959), constituyeron una referencia fundamental de la construcción con componentes industriales en la posguerra[3]. Sus diseños para la industria aeronáutica estadounidense sentaron las bases de la estandarización de elementos y la construcción de estructuras espaciales de grandes luces. Wachsmann fue el principal referente teórico para Haller, además de mentor. Tras conocerse en 1959 en un seminario sobre industrialización en Lausana[4], mantuvieron un estrecho contacto a lo largo de los años, intercambiando conocimientos e ideas teóricas.

En Francia, además de Le Corbusier[5], Jean Prouvé es considerado el gran precursor de la arquitectura industrializada, con sus tempranos ejemplos de edificación prefabricada en aluminio y acero en la década de 1930, como el aeroclub en Buc[6], la casa desmontable BLPS y la Maison du Peuple en Clichy. Su Pabellón Centenario del aluminio en París de 1954, con su larga fachada modulada, fue probablemente una referencia estética para Haller en el diseño de la fábrica de Münsingen (figura 1).

1. Pabellón Centenario del aluminio en París de 1954, publicado en 1956 en la revista suiza Das Werk.

FRITZ HALLER Y LA EMPRESA USM: UNA COLABORACIÓN INNOVADORA

Tras unos primeros años trabajando en Holanda, Fritz Haller se estableció en 1949 como arquitecto en Soleura junto con su padre, Bruno Haller, y fue autor de varios edificios escolares que tuvieron repercusión en los medios especializados nacionales e internacionales. Jürge Joedicke lo incluyó en la que denominó Solothurn Schule (Escuela de Soleura), una escena de clara influencia miesiana[7], cuya arquitectura se basa en la extrema simplicidad formal, el empleo predominante de acero y vidrio, y la incorporación de elementos innovadores basados en la construcción modular y la prefabricación.

En 1961, la empresa USM, fundada en Münsingen en 1885, pasó a manos de Paul Schärer, ingeniero nieto del fundador, quién decidió reubicar la sede de la empresa[8]. Atraído por los edificios de Haller[9], le eligió para el diseño de la nueva sede: un edificio flexible que debía albergar las oficinas de administración y las líneas de producción, y poder adaptarse en el futuro a los distintos procesos de fabricación y a los cambios en la industria. Bajo esta premisa, Haller diseñó, en colaboración con Schärer y basándose en su experiencia previa con elementos prefabricados en edificios escolares[10], un sistema flexible de construcción modular con estructura de acero.

En su descripción del proyecto para la planta de Münsingen ya se identifica la voluntad de concebir un “sistema” de uso más universal:

“El espacio debía ser creado únicamente a partir de piezas de montaje, para que los cambios o ampliaciones posteriores puedan realizarse de manera simple y sin necesidad de obras de remodelación. Se buscaron elementos de construcción lo más universales posible, para poder ensamblar diferentes naves a partir de unidades básicas, albergando la mayor variedad de usos posible. Este esfuerzo por construir una nave industrial universal podía ser el punto de partida para la producción industrial de elementos de construcción económicos, flexibles y de rápida instalación, para edificios industriales.

En primer lugar, se examinaron las construcciones comunes de hoy en día, y se analizaron sus ventajas y desventajas. Seguidamente, tratamos de definir directrices para la planificación de espacios fabriles basadas en las tendencias de desarrollo tecnológico. Se compararon diferentes tipos de iluminación de naves, con mediciones en ejemplos concretos. Se compararon las dimensiones requeridas en la producción con las dimensiones básicas de las construcciones”[11].

Siguiendo la visión de Haller, el diseño de la fábrica de Münsingen fue el germen de la creación de la familia de sistemas constructivos comerciales USM-Haller: MAXI (1961), MINI (1962) y MIDI (1972) (figura 2).

2. Comparación de los tres sistemas MAXI (izquierda), MINI (centro) y MIDI (derecha).

Los tres sistemas, concebidos como abiertos,[12] se basaban en el mismo principio de estructura reticular de perfiles de acero, pero adaptados a diferentes escalas, niveles de complejidad y programas de uso. Cada sistema contaba con elementos y sistemas de ensamblaje que permitían adaptar, expandir o disminuir los edificios a lo largo del tiempo, tanto en términos de la volumetría general como de la distribución interior.

LOS SISTEMAS “USM HALLER” EN DETALLE

Sistema de construcción en acero MAXI

El sistema MAXI (desarrollado desde 1961, primera puesta en obra en 1963)[13] sirve para la edificación de naves de una sola altura, con grandes distancias entre pilares. Está pensado principalmente para crear plantas industriales destinadas a cualquier tipo de producción, en las que se requiera poder realizar extensiones o adiciones futuras. El sistema se compone de estructura portante, fachada exterior y cubierta (figuras 3 y 4).

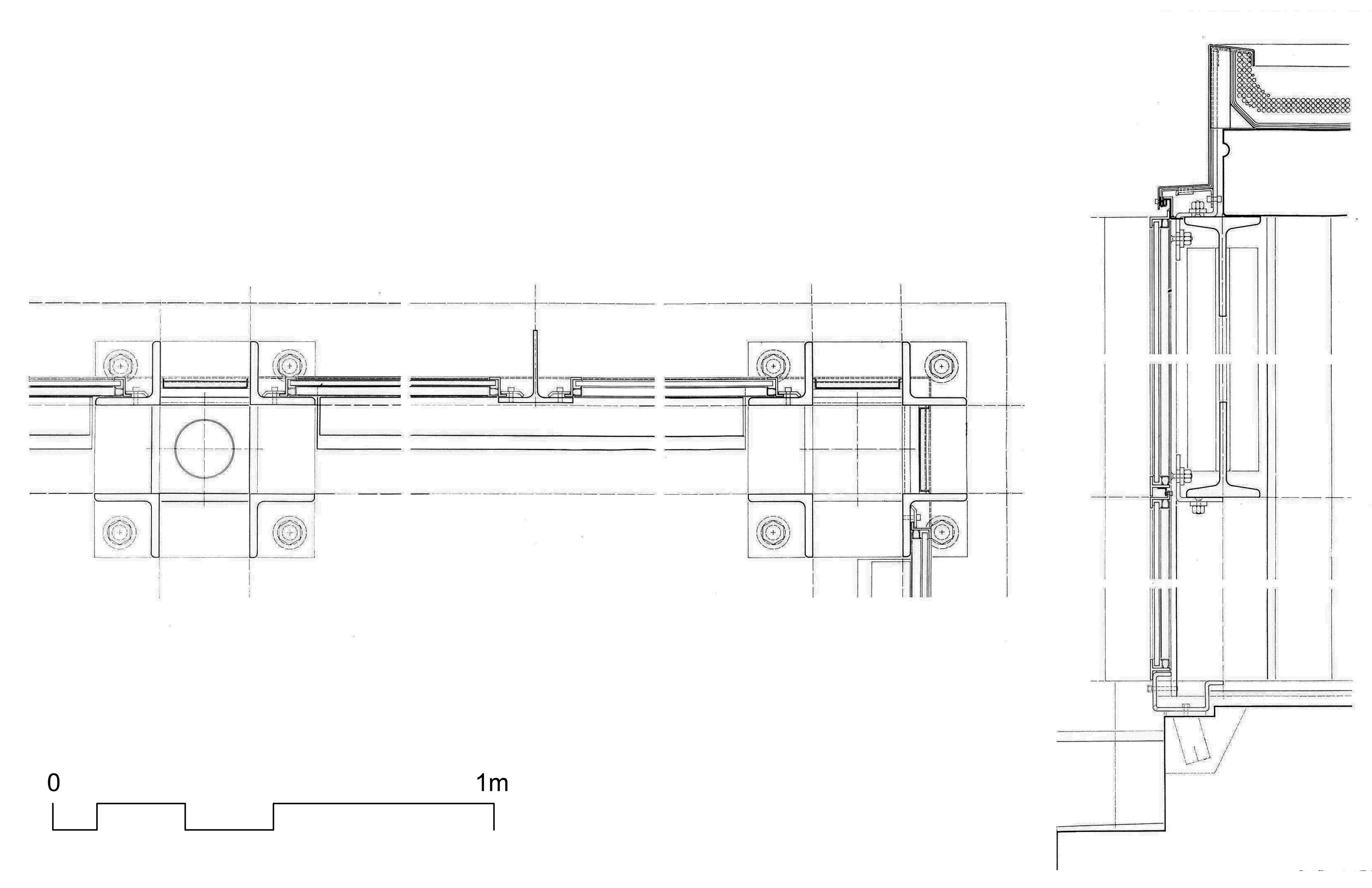
3. Detalles constructivos del sistema MAXI en planta y sección, donde se ven los elementos estructurales y sus encuentros con fachada y cubierta.

4. Axonometría del sistema MAXI, donde se muestran los siguientes elementos: estructura portante formada por celosía [1] y pilares compuestos [2]; perfil para apoyo de celosía [3]; paneles de fachada, bien opacos o de vidrio [4]; estructura de fachada con perfiles T [5] y cubierta de losas de hormigón celular [6].

La estructura portante se distribuye reticularmente en planta, con luces de 9,6, 14,4 o 19,2 metros, y puede funcionar como estructura unidireccional o bidireccional. En el primer caso soporta cargas de hasta 300 kg/m2 y, en el segundo, de 350 kg/m2[14]. Dentro de esta modulación, la estructura puede ser ampliada libremente. Los pilares, formados por cuatro perfiles en L unidos por pletinas, tienen una dimensión en planta de 45 × 45 centímetros, y altura variable, siempre múltiplo de 0,6 metros. Las vigas de celosía, fabricadas con perfiles de acero soldados, tienen un canto total de 1,2 metros. La forma compuesta de los pilares facilita el encuentro entre estos y las cerchas, que se encajan entre las dos L y se apoyan en perfiles soldados a los pilares (figura 5).

5. A la izquierda, encuentro entre pilares y vigas en el sistema MAXI. A la derecha, fotografía del proceso de ensamblaje de los componentes estructurales.

La fachada se resuelve con unos perfiles verticales en T, entre los cuales se insertan piezas desmontables de 2,40 ×1,20 m, bien de vidrio o placas opacas aislantes, así como puertas u otros elementos. Aunque la modulación en altura es de 1,2 metros, también es posible insertar bandas de media altura (0,6 metros).

La cubierta consta de losas autoportantes de hormigón celular armado, de 4,80 m de longitud.[15] Para la iluminación natural se prevén claraboyas de 2,40 metros de ancho en el techo, con cristales que se oscurecen cuando brilla el sol y permanecen transparentes en días nublados, garantizando un rendimiento luminoso óptimo.[16]

Sistema de construcción en acero MINI

El sistema MINI (desarrollado desde 1962, primera puesta en obra en 1965)[17] permite la construcción de edificios de uno o dos pisos, con luces de hasta 8,4 metros, tales como viviendas unifamiliares[18], talleres, pabellones escolares, laboratorios, establecimientos comerciales, salas de exposiciones, etc.

El sistema consta de estructura portante con forjados intermedios, y envolvente exterior (figuras 6 y 7). La estructura, formada por pilares y vigas de perfiles de chapa conformados en frío, permite ampliaciones horizontales ilimitadas. Para los encuentros entre pilares y vigas se añaden unos perfiles especiales rigidizadores de planta triangular (figura 8). Como en el caso anterior, la envolvente externa permite, dentro de la división modular, el rápido reemplazo de ventanas, puertas u otros elementos cuando sea requerido.

6. Detalles constructivos originales del sistema MINI en planta y sección, donde se ven los elementos estructurales y sus encuentros con fachada y cubierta. Dibujos publicados en 1967 en un folleto informativo sobre el sistema constructivo Mini.

7. Axonometría del sistema MINI, donde se muestran los siguientes elementos: estructura portante, formada por pilares [1] y vigas [2] de perfiles de chapa conformados en frío; viguetas [3]; perfil adicional en fachada para absorber la fuerza del viento [4]; forjado intermedio [5]; fachada de vidrio [6] y cubierta, soportada por chapa grecada y con acabado variable [7].

8. Encuentro entre pilares y vigas en el sistema MINI.

Sistema de construcción en acero MIDI

El sistema MIDI (desarrollado desde 1972, primera puesta en obra en 1980)[19] está pensado para la construcción de edificios de varios pisos con fuerte presencia de instalaciones, como escuelas, edificios administrativos, laboratorios u hospitales[20].

Su desarrollo, más tardío que los otros dos sistemas, se basa en la integración de todos los componentes del edificio como un todo sistemático y coherente geométricamente, incluyendo, en particular, la disposición espacial de tuberías y otras instalaciones, coordinadas bajo un esquema de planificación de instalaciones. El modelo de instalaciones ARMILLA, desarrollado por Haller en un proyecto de investigación en la Universidad de Karlsruhe[21], se integra completamente en el sistema global MIDI.

La estructura portante tiene una distribución reticular en planta con luces más variables, respetando un módulo mínimo de 2,4 metros y alcanzando los 16,80 metros[22]. Funciona como estructura unidireccional de pórticos, que pueden ir alternando su dirección. Los pilares son tubos circulares de acero, también de altura variable, siempre múltiplo de 0,6 metros. Las cerchas, dobles, tienen 1,2 metros de canto (figura 9). El encuentro entre ambos se hace por medio de un marco o capitel cuadrado, soldado al pilar, al que se atornillan las cerchas mediante pernos estructurales (figura 10)[23].

9. A la izquierda, detalle de la estructura del sistema modular MIDI. A la derecha, axonometría donde se muestran: pilares de tubo circular [1]; cerchas dobles [2]; capitel cuadrado de encuentro, soldado al pilar [3]; vigueta de perfil no definido [4].

10. A la izquierda, encuentro entre pilares y vigas en el sistema MIDI. A la derecha, detalles de pilar de esquina y de pilar intermedio, procedentes de dibujos originales de 1981 para el proyecto del Centro de formación de SBB.

Filosofía común de los sistemas MAXI - MIDI - MINI

La familia de sistemas constructivos USM-Haller está diseñada desde la perspectiva de la operatividad y la interoperatividad. Si bien cada uno de los subsistemas trata de dar solución a espacios arquitectónicos diferentes, la filosofía común es la totipotencia[24]: posibilitar un espectro lo más amplio posible de funciones, por encima de la determinación típica de los elementos concretos. Los tres sistemas se complementan entre ellos y pueden combinarse fácilmente. Para ello, utilizan un módulo común de 1,20 metros, tanto en planta como en altura (figura 11).

11. Integración de estructura MINI en edificio preexistente construido con sistema MAXI, para ubicar unas oficinas en el interior de una nave fabril. Planta y sección.

Por otra parte, en los tres sistemas se aprecian decisiones de diseño que van más allá de la optimización geométrica y estructural, aun a costa de un aumento del número de soportes o la cantidad de material. Se busca, por ejemplo, la unificación de las dimensiones de las vigas, incluso en situaciones de carga diferentes. En los sistemas MINI y MIDI, las vigas se diseñan de dos piezas para poder mantener el mismo criterio constructivo en puntos especiales, como los bordes, y sus huecos permiten la integración de las instalaciones técnicas en ellas.

Línea de mobiliario modular USM Haller

A los tres sistemas arquitectónicos tratados se debe sumar un cuarto, destinado a mobiliario, que es, en realidad, el más popular e icónico. Fue creado en 1963 bajo el planteamiento de “transferir la idea de modularidad del sistema constructivo de la fábrica del macro-al micro-espacio del mobiliario[25]. Se basa en una retícula tridimensional de tubos metálicos, conectados mediante una pequeña esfera, y paneles que conforman paredes y baldas.

La rótula, una esfera de latón cromado con un diámetro de 25 mm, es el elemento central de todo el sistema. Seis orificios con rosca permiten conectar, en las tres dimensiones del espacio y en ambas direcciones, los tubos del sistema, de diámetro de 19 mm, creando un sistema ortogonal de módulo variable. Los tubos, con longitudes que varían de 100 a 750 mm, y las rótulas, siempre quedan visibles desde el exterior, como una línea continua (figura 12)[26].

12. Infografía y ejemplo actual de la línea de mobiliario USM Haller.

La extrema flexibilidad de sus configuraciones, junto con su robustez material y la continuidad intacta de su diseño a lo largo de las décadas, dota a estas piezas de mobiliario de gran durabilidad.

APLICACIÓN EN LA ARQUITECTURA INDUSTRIAL

A pesar de concebirse para su aplicación en distintos tipos de edificios, fue en la arquitectura industrial donde los sistemas Haller demostraron de forma más clara su eficacia y versatilidad[27]. La posibilidad de adaptarse a cambios y expansiones futuras evidenciaba una visión lúcida de las necesidades de la arquitectura industrial, al tiempo que expresaba una estética moderna y coherente con dicha función.

La sede de USM en Münsingen fue el verdadero laboratorio de ensayo de los sistemas MAXI, MIDI y MINI. Los tres sistemas se utilizaron en algunos de los edificios y pabellones que todavía forman parte del complejo (figura 13) y, al mismo tiempo, gran parte de los componentes se produjeron en la propia fábrica. El conjunto tiene actualmente consideración patrimonial, pues está incluido en el inventario de bienes culturales de importancia nacional y regional de Suiza (KGS), en la categoría A de interés nacional[28].

13. Complejo industrial USM en Münsingen en la actualidad. Vista exterior.

La nave principal, construida en 1961 con el sistema MAXI, con una altura única sobre rasante de 6 metros, y una distancia entre soportes de 14,40 metros, ofrece la flexibilidad requerida para los distintos procesos de fabricación, tal y como habían estudiado minuciosamente Haller y Schärer a partir de las necesidades de la propia empresa y del análisis de otros edificios industriales[29]. El pabellón de oficinas, construido en 1965 con el sistema MINI, es también un espacio diáfano de una planta sobre rasante, que sigue el modelo de oficina abierta[30].

La constante modernización de las máquinas y los cambios en los procesos de producción llevaron a una serie de ampliaciones a lo largo de las décadas, utilizando siempre el sistema de construcción de acero USM-Haller. Desde 1998, las ampliaciones ya no fueron planificadas ni realizadas por Haller, sino por los arquitectos de la empresa, algo indicativo de la verdadera estandarización y universalidad del sistema.

Tras la experiencia de la obra de Münsingen, tanto los sistemas MAXI y MINI como el sistema de mobiliario modular, se convirtieron en productos comerciales. Pronto, otras empresas hicieron a Haller encargos para implementarlo en sus nuevos edificios. La flexibilidad del sistema permitió hacer variaciones al diseño original para adaptarse a las necesidades concretas de las empresas, generando edificios de características espaciales diferentes al de la fábrica de Münsingen (figura 14).

14. Secciones de las naves: 1) Fábrica USM en Münsingen, 1963; 2) Fábrica Agathon en Bellach, 1965; 3) imprenta Peichär en Saalfelden, 1967; 4) Fábrica Dialform en Kirchberg, 1971. Se aprecian las modificaciones con respecto al sistema original MAXI (arriba), tanto en la estructura como en fachada y cubierta.

DEL SISTEMA CONSTRUCTIVO MODULAR A UN MODELO TEÓRICO DE ARQUITECTURA Y CIUDAD

El enfoque sistémico de Haller tuvo su manifestación más allá de la práctica profesional, trasladándose de sus diseños modulares a su faceta como docente, investigador y teórico.

Como se mencionó anteriormente, la actividad teórica de Haller estuvo estrechamente ligada a las ideas de Konrad Wachsmann[31]. En 1966, tras cinco años de intenso desempeño con edificios industriales, el entonces director del Instituto de Investigación de la Construcción de la Universidad del Sur de California, invitó al arquitecto suizo a hacer una estancia como profesor visitante. Allí, Haller desarrolló una investigación sobre modelos matemático-geométricos aplicables a la arquitectura; en concreto, “sobre las propiedades de puntos destacados en sistemas geométricos regulares[32]. Su objetivo era estudiar “los problemas fundamentales que todo diseñador de sistemas modulares complejos afronta constante y repetidamente: la coordinación geométrica de los componentes del sistema, la formación de sus conexiones, la seguridad de las tolerancias y el control de las fuerzas en el sistema estático[33].

En la investigación, Haller trabajó con cubos compuestos por celdas iguales conectadas por nodos. Con la ayuda de maquetas, estableció relaciones, analogías y condiciones geométricas distintas para cada nodo, dependiendo de su ubicación dentro del cubo, llegando a buscar una descripción matemática universal para estos nodos que fuera aplicable a todos los sistemas.

Haller exploró también la escala urbana, si bien siempre con un enfoque puramente teórico. Su sistema urbano utópico, publicado por primera vez en 1968[34], se basaba en la organización geométrica del espacio de la ciudad postindustrial a varias escalas, desde unas unidades básicas hasta conglomerados de 61 millones de personas, que fueron ampliados en una segunda versión de 1975[35] a una “ciudad total” de más de mil millones de habitantes. En ellas, se consideraban diferentes sistemas de comunicación y adaptaciones según condiciones sociales, climáticas y económicas. Las infraestructuras y las tecnologías del transporte, basadas en rigurosos estudios previos de los sistemas técnicos existentes o en desarrollo, desempeñaban un papel importante en el modelo.

En la totale stadt el orden geométrico es más importante que la cuantificación o el dimensionado. El modelo se centra en la “geometría coordinada” de los elementos constructivos, los “nudos” donde se encuentran las funciones, y los “movimientos y flujos” que ocurren en estos sistemas.

En su momento, el proyecto no fue ampliamente reconocido por la comunidad arquitectónica, incluso fue tachado de totalitario por su excesiva rigidez y racionalización[36]. Sin embargo, retrospectivamente se ha reconocido su coherencia dentro de la trayectoria del arquitecto y suele ser mencionado como una parte de la historia de la planificación urbana en Suiza.

LEGADO ARQUITECTÓNICO DE FRITZ HALLER Y EL SISTEMA USM-HALLER

El sistema USM-Haller fue uno de los primeros sistemas prefabricados suizos concebidos para edificios industriales. Los sistemas modulares más tempranos desarrollados en el país, existentes desde la década de 1940 (Durisol, NILBO) estaban planteados para viviendas unifamiliares o edificios de dimensiones reducidas[37]. En 1955 nació el primero diseñado para grandes luces, el sistema Isler, un sistema cerrado en estructura de hormigón[38]. Le sigue cronológicamente el sistema MAXI, de características completamente diferentes: en estructura metálica, adaptable a múltiples composiciones reticulares en planta, y concebido como un sistema abierto, fácilmente combinable con elementos propios y ajenos al sistema.

La aportación de la familia de sistemas USM-Haller no es tanto su temprana aparición como su nivel de versatilidad, flexibilidad, e interoperabilidad, ofreciendo soluciones tanto a las necesidades específicas de la industria como a otros usos, y representando, tal y como se ha calificado, “el que, tal vez, sea el ejemplo paradigmático de la arquitectura de la integración de sistemas en Europa[39]. Para ello, Haller trabajó desde una perspectiva sistémica, donde lo importante “no es tanto la forma generada como su morfogénesis[40].

En ese enfoque, definido como estructural[41] o matemático[42], se reconoce la filosofía de Konrad Wachsmann, que también podemos encontrar, por ejemplo, en Max Bill[43]. Algunas características de los sistemas USM están presentes en el pabellón de exposiciones de la Expo 64, diseñado por el arquitecto zuriqués. Los elaborados diseños de los nudos de su estructura metálica recuerdan tanto a los de Wachsmann como a los sistemas USM-Haller (figura 15).

15. Nudos y conexiones en el pabellón de la Expo 64 diseñados por Max Bill. Composición de fotografías publicada en 1994 en la revista Kunst + Architektur in der Schweiz.

Los cambios producidos en décadas posteriores -posmodernismos, cuestionamiento del paradigma tecnológico, y un creciente pluralismo formal- no facilitaron la transmisión de las ideas de Haller, basadas en una visión de progreso técnico y la búsqueda de soluciones universales. No obstante, en Suiza se dio, a partir de los años ochenta y a diferencia de otros países, una tendencia hacia la reducción y el minimalismo[44], que encontró en los edificios de Haller, y de la escuela de Soleura en general, el atractivo de la arquitectura minimalista en acero y vidrio inspirada en Mies van der Rohe, cuidadosa en los detalles, los acabados y las proporciones modulares. Tendencia, desarrollada principalmente en la parte de habla alemana del país, que recibió el calificativo de swissbox o “esencialismo suizo”.

Sin embargo, la influencia de Haller es más clara entre los seguidores de la arquitectura industrializada y la integración de sistemas prefabricados. Una influencia corroborada[45] en esta línea son algunos edificios de Norman Foster, a través del ingeniero de estructuras Anthony Hunt, colaborador del arquitecto británico y admirador del trabajo de Haller. La fábrica para Reliance Controls Electronics en Swindon (1965-1966), de Team 4[46], ha sido comparada con la fábrica de USM construida tres años antes[47], al igual que la casa Büchli, diseñada por Haller con el sistema MINI, presenta similitudes con la estructura de la casa del matrimonio Foster en Hampstead.

CONCLUSIONES

El interés de Haller por la construcción industrializada, presente desde sus inicios profesionales, es fruto de un contexto histórico y arquitectónico propicio, en la década de 1950 y en el seno de la Escuela de Soleura. Un contexto de transformación y optimismo tecnológico, que, en el caso de Haller, se vio impulsado, especialmente, por su relación con Konrad Wachsmann, en quien el arquitecto suizo encontró un apoyo a su trabajo y un soporte teórico a sus ideas.

Enfrentarse al encargo del equipamiento industrial de USM en 1961, con requerimientos concretos en términos de flexibilidad y transformación, obligó a Fritz Haller a desarrollar un enfoque racional y sistémico como arquitecto. En el proceso de diseño del sistema MAXI, posteriormente complementado con los sistemas MINI y MIDI, Haller tomó decisiones de diseño no únicamente basadas en una optimización geométrica o estática, sino también operativa e interoperativa, tales como el mantenimiento de un módulo constante de 120 cm en los tres subsistemas, el esfuerzo por reducir el número de elementos diferentes, y el cuidadoso diseño de los encuentros entre pilares y vigas.

Haller se centró repetidamente en la cuestión de los “puntos singulares”, a diferentes escalas. En el caso de los sistemas MAXI-MINI-MIDI, se identifica, precisamente, en los “nudos”, encuentros entre vigas o entre vigas y pilares; en el caso del icónico mobiliario de oficina, son las rótulas esféricas de conexión que dan solución a todo el sistema; en su proyecto urbano de la totale stadt, son los puntos de conexión de los sistemas de transporte. También su investigación teórica en Los Ángeles versa sobre “puntos destacados” a nivel matemático. En dicha atención por nodos y puntos destacados se identifica claramente la influencia de Wachsmann, en cuyas estructuras espaciales los puntos de conexión son también tema central.

Igualmente prevalece el deseo, común con Wachsmann, de encontrar soluciones de validez general en arquitectura, llevándolo hasta lo universal. La creación de una familia de sistemas modulares, vinculados entre ellos por medio de unas dimensiones compatibles, que aspiran a resolver, de forma conjunta, el espectro más amplio posible de requerimientos, en lugar de sistemas independientes para resolver necesidades aisladas, denota una visión de sistema poco común. Los sistemas Haller acabaron estructurando toda la producción del arquitecto a lo largo de las décadas, desde la escala más pequeña hasta la más grande, haciendo que cada edificio encajara en el sistema general como una pieza del puzzle. Para ello se mantienen presentes dos mecanismos necesarios: modulación y estandarización de componentes.

Por otra parte, los sistemas USM-Haller constituyen un ejemplo exitoso de trabajo en equipo y de colaboración arquitecto-industria. Si bien se atribuye a Haller la creación de los sistemas, el arquitecto relata siempre el proceso de diseño utilizando el plural, dando visibilidad a la colaboración con el ingeniero Paul Schärer y la empresa USM. Ambos, diseñador y fabricante, se beneficiaron mutuamente: para Haller, supuso su trabajo más importante y prolongado en el tiempo, y lo definió profesionalmente como un arquitecto, y posteriormente profesor, especializado en construcción industrializada. Le llevó, además, a desarrollar un enfoque sistémico y una búsqueda constante de soluciones universales en todos los ámbitos de la arquitectura. A su vez, para la empresa USM, el edificio de su sede en Münsingen se convirtió en su emblema, no solo albergando su actividad industrial sino también convirtiéndose en muestrario de los productos fabricados en ella. Pero el principal legado de Haller a la empresa fue, indudablemente, el diseño de la línea de mobiliario que lleva su nombre, y que es, sesenta años después, su producto principal y su seña de identidad.

Además de ser una figura destacada de la arquitectura suiza de los años sesenta y setenta, Fritz Haller supone una aportación importante a la arquitectura industrializada en la segunda mitad del siglo XX, tanto en el diseño como en la aplicación y la integración de sistemas prefabricados, y que ha tenido repercusión en el trabajo de arquitectos reconocidos, también fuera de las fronteras suizas, como Norman Foster y Richard Rogers.

En la arquitectura actual, centrada en la sostenibilidad y, como parte de ello, consciente del valor de la longevidad y la importancia de la reducción de residuos, las características de la obra de Haller constituyen, sesenta años después, valores en alza. La estandarización y la adaptabilidad facilitan el reaprovechamiento y ayudan a alcanzar objetivos de sostenibilidad y minimización de residuos, en un tipo de arquitectura, la industrial, que por su uso está a menudo sujeta a frecuentes cambios a lo largo del tiempo.

Aportación de cada autor CRediT

Conceptualización: AFM (50%); MSM (25%); MQC (25%)

Investigación, metodología, redacción y revisión: AFM 33%; MSM 33%; MQC 33%

Elaboración y gestión de imágenes: AFM (50%); MSM (25%); MQC (25%)

Todos los/las autores/as declaran que no existe ningún conflicto de intereses con los resultados del trabajo.

Fuentes de financiación

GRAPHYC_Grupo de Representación Arquitectónica del Patrimonio Histórico y Contemporáneo. Gobierno de Aragón (H32_23R).

Biografía de los autores

Angélica Fernández-Morales (Zaragoza, 1979) es profesora titular del área de Expresión Gráfica Arquitectónica de la Universidad de Zaragoza. Miembro del grupo de investigación Representación Arquitectónica del Patrimonio Histórico y Contemporáneo (GRAPHyC) y del Instituto de Patrimonio y Humanidades (IPH) de la UZ. Su trabajo investigador se centra en el uso de técnicas digitales combinadas para la representación y simulación arquitectónica, particularmente de edificios de interés patrimonial. Paralelamente, trabaja sobre la relación entre arquitectura y artes plásticas contemporáneas en el contexto europeo.

Miguel Sancho-Mir (Zaragoza, 1982) Dr. Arquitecto, profesor contratado doctor en el área de Expresión Gráfica Arquitectónica en la Escuela de Ingeniería y Arquitectura de la Universidad de Zaragoza. Miembro de ICOMOS, del grupo de investigación H32_23R Grupo de Representación Arquitectónica del Patrimonio Histórico y Contemporáneo. GRAPHyC y del Instituto Universitario de Investigación en Patrimonio y Humanidades de la Universidad de Zaragoza. La labor investigadora se ha centrado fundamentalmente en el estudio, representación y revalorización del patrimonio arquitectónico y urbano, incidiendo de especial manera en la importancia de un correcto análisis gráfico del mismo como parte indispensable para su conocimiento.

Marta Quintilla-Castán (Zaragoza, 1984) Dra. Arquitecta, profesora ayudante doctor del Área de Expresión Gráfica Arquitectónica en la Universidad de Zaragoza desde 2016. Acreditada como profesora contratada doctora desde 2023. Arquitecta por la ETSAUN (2009). Diploma de Especialización en planeamiento y Desarrollo Urbanístico por la Universidad de Navarra y Diploma de Especialización en Certificación Energética de Edificios. En 2014 obtiene el título de Máster en Arquitectura por la Universidad de Zaragoza. En 2022 obtiene el título de Doctor con la tesis “Inventario Gráfico Digital del Patrimonio arquitectónico mudéjar en Aragón”. Miembro del Instituto del Patrimonio y Humanidades (IPH) de la Universidad de Zaragoza y del Grupo de investigación reconocido “Grupo de representación arquitectónica del Patrimonio Histórico y Contemporáneo. GRAPHyC”.

Bibliografía

ANGÉLIL, Marc; HIMMELREICH, Jørg. Architekturdialoge: Positionen, Konzepte, Visionen. Salenstein: Niggli, 2011. ISBN 978-3-7212-0801-6.

ARRIBAS BLANCO, Ruth; Jean Prouvé y Konrad Wachsmann . Dos formas de utilizar la maqueta como herramienta de proyecto. En: Proyecto, Progreso, Arquitectura [en línea]. Sevilla: Editorial Universidad de Sevilla, 2016, n.° 15, pp. 56-69. [consulta: 30-09-2024]. ISSN 2173-1616. DOI: https://doi.org/10.12795/ppa.2016.i15.04.

DÍAZ SEGURA, Alfonso; MOCHOLÍ FERRÁNDIZ, Guillermo. Les Maisons Loucheur. La máquina para habitar se industrializa. En: Proyecto, Progreso, Arquitectura [en línea]. Sevilla: Editorial Universidad de Sevilla, 2012, n.° 6, pp. 34-49 [consulta: 30-09-2024]. ISSN 2173-1616. DOI: https://doi.org/10.12795/ppa.2012.i6.02.

DRACH, Angelika; HOVESTADT, Ludger. Intelligente CAD-Systeme : Instrumente für die Planung und Verwaltung komplexer Gebäude. En: Werk, Bauen + Wohnen [en línea]. Zúrich: Organ des Bundes Schweizer Architekten, 1992, n.° 79, cuad. 10: Fritz Haller, pp. 16-24) [consulta: 30-09-2024]. Disponible en: https://www.e-periodica.ch/digbib/view?pid=wbw-004%3A1992%3A79%3A%3A883.

GRASER, Jürg Martin. Die Schule von Solothurn: Der Beitrag von Alfons Barth, Hans Zaugg, Max Schlup, Franz Füeg und Fritz Haller zur Schweizer Architektur der zweiten Hälfte des 20. Jahrhunderts. Tesis doctoral. Zúrich: ETHZ, 2008. Disponible en: https://www.research-collection.ethz.ch/handle/20.500.11850/150915.

HALLER, Fritz. Allgemeine Lösungen in der Bautechnik. En: Bauen + Wohnen [en línea]. Zúrich: Organ des Bundes Schweizer Architekten, 1962, n.° 16, cuad. 11: Planen und rationelles Bauen, pp. 456-475 [consulta: 30-09-2024]. Disponible en: https://www.e-periodica.ch/digbib/view?pid=buw-001%3A1962%3A16%3A%3A1404#1405.

HALLER, Fritz. Fabrikhalle in Münsingen = Halle de fabrication à Münsingen = Factory shed at Münsingen. En: Bauen + Wohnen [en línea]. Zúrich: Organ des Bundes Schweizer Architekten, 1964, n.° 18, cuad. 10, pp. 394-401 [consulta: 30-09-2024]. Disponible en: https://www.e-periodica.ch/digbib/view?pid=buw-001%3A1964%3A18%3A%3A1290#1290.

HALLER, Fritz. Von Eigenschaften ausgezeichneter Punkte in regulären geometrischen Systemen. En: Bauen + Wohnen [en línea]. Zúrich: Organ des Bundes Schweizer Architekten, 1967, n.° 21, cuad. 11: Bauforschung, pp. 425-438 [consulta: 30-09-2024]. Disponible en: https://www.e-periodica.ch/digbib/view?pid=buw-001%3A1967%3A21%3A%3A1390#1390.

HALLER, Fritz. Totale stadt. Ein model. Olten: Walter Verlag, 1968.

HALLER, Fritz. Totale stadt. Ein globales model. zweite studie. Olten: Walter Verlag, 1975.

HALLER, Fritz. Bauen und Forschen. Dokumentation der Ausstellung. Solothurn: Kunstmuseum, 1988.

HERBERT, Gilbert. The Dream of the Factory-Made House. Cambridge: MIT Press, 1984. ISBN-e 9780262368018.

ICOMOS Suisse. System & Serie. Systembau in der Schweiz - Geschichte und Erhaltung. Zürich: GTA Verlag, 2022. Disponible en: https://www.system-serie.ch/.

JOEDICKE, Jürgen. Moderne Architektur: Strömungen und Tendenzen. Stuttgart: Krämer, 1969.

KLEMP, Klaus. The USM Haller Furniture System. Design Classics Series. Frankfurt: Verlag Form, 2002. ISBN 9783931317430.

MEDINA WARMBURG, Joaquín; LEOPOLD, Cornelie. Strukturelle Architektur: Zur Aktualität eines Denkens zwischen Technik und Ästhetik. Bielefeld: Transcript Verlag, 2012. ISBN 978-3-8376-1817-4.

PANCORBO, Luis; MARTÍN, Inés. Architecture as technical object. Industrial architecture of Albert Kahn. En: VLC arquitectura [en línea]. Valencia: Universitat Politècnica de València, 2014, vol. 1, n.° 2, pp. 1-3 [consulta: 30-09-2024]. ISSN-e 2341-2747. DOI: https://doi.org/10.4995/vlc.2014.2333.

SOLÉ BRAVO, Carlos. La casa de Norman y Wendy Foster en Hampstead. Tecnología y domesticidad entre los años 1960 y 1980. Tesis doctoral. UPM, 2017. Disponible en: https://oa.upm.es/45408/1/CARLOS_SOLE_BRAVO.pdf.

STALDER, Laurent; VRACHLIOTIS, Georg, eds. Fritz Haller. Architekt und Forscher. Zúrich: GTA Verlag, 2016. ISBN 978-3-85676-334-3.

USM. The history of a family business. Página web corporativa [consulta: 21 de agosto de 2024]. Disponible en: https://www.usm.com/en/office/about-usm/our-history-alt/.

WICHMANN, Hans. System Design: Fritz Haller Bauten - Möbel - Forschung. Basilea: Birkhäuser, 1989. ISBN 978-3-7643-2325-7.


[1] PANCORBO, Luis; MARTÍN, Inés. Architecture as technical object. Industrial architecture of Albert Kahn. En: VLC arquitectura [en línea]. Valencia: Universitat Politècnica de València,2014, vol. 1, n.° 2, pp. 1-3 [consulta: 30-09-2024]. ISSN-e 2341-2747. DOI: https://doi.org/10.4995/vlc.2014.2333.

[2] Si bien los fabricantes británicos lideraban el mundo en nuevas técnicas de construcción industrializada, los arquitectos desempeñaron un papel insignificante en ellas. (HERBERT, Gilbert. The Dream of the Factory-Made House. Cambridge: MIT Press, 1984, pp. 29-30)

[3] GRASER, Jürg Martin. Die Schule von Solothurn: Der Beitrag von Alfons Barth, Hans Zaugg, Max Schlup, Franz Füeg und Fritz Haller zur Schweizer Architektur der zweiten Hälfte des 20. Jahrhunderts. Tesis doctoral. Zúrich: ETHZ, 2008, p. 60. Disponible en: https://www.research-collection.ethz.ch/handle/20.500.11850/150915.

[4] Ibid, p. 267.

[5] Sobre los proyectos de construcción prefabricada de Le Corbusier, ver: DÍAZ SEGURA, Alfonso; MOCHOLÍ FERRÁNDIZ, Guillermo. Les Maisons Loucheur. La máquina para habitar se industrializa. En: Proyecto, Progreso, Arquitectura [en línea]. Sevilla: Editorial Universidad de Sevilla, 2012, n.° 6, pp. 34-49 [consulta: 30-09-2024]. ISSN 2173-1616. DOI: https://doi.org/10.12795/ppa.2012.i6.02.

[6] Una descripción detallada del sistema constructivo del aeroclub en Buc se encuentra en: ARRIBAS BLANCO, Ruth. Jean Prouvé y Konrad Wachsmann. Dos formas de utilizar la maqueta como herramienta de proyecto. Proyecto, Progreso, Arquitectura [en línea]. Sevilla: Editorial Universidad de Sevilla, 2016, n.° 15, pp. 56-69. [consulta: 30-09-2024]. ISSN 2173-1616. DOI: https://doi.org/10.12795/ppa.2016.i15.04.

[7] JOEDICKE, Jürgen. Moderne Architektur: Strömungen und Tendenzen. Stuttgart: Krämer, 1969, p. 104.

[8] USM. The history of a family business. Página web corporativa. Disponible en: https://www.usm.com/en/office/about-usm/our-history-alt/.

[9] SCHÄRER, Paul. Erlebnisse und Errungenschaften beim Aufbau der neuen USM. En: STALDER, Laurent; VRACHLIOTIS, Georg, eds. Fritz Haller. Architekt und Forscher. Zúrich: GTA Verlag, 2016, p. 205. ISBN 978-3-85676-334-3.

[10] El sistema constructivo de la escuela cantonal de Baden, proyectada por Haller en 1958 y construida en 1962-1964, es considerado el predecesor de los sistemas USM (ICOMOS Suisse. System & Serie. Systembau in der Schweiz - Geschichte und Erhaltung. Zürich: GTA Verlag, 2022, p. 167. Disponible en: https://www.system-serie.ch/).

[11] HALLER, Fritz. Allgemeine Lösungen in der Bautechnik. Bauen + Wohnen [en línea].Zúrich: Organ des Bundes Schweizer Architekten,1962, n.° 16, cuad. 11: Planen und rationelles Bauen, p. 473 [consulta: 30-09-2024]. Disponible en: https://www.e-periodica.ch/digbib/view?pid=buw-001%3A1962%3A16%3A%3A1404#1405.

[12] Se consideran sistemas abiertos aquellos que permiten la construcción en combinación con componentes de otros sistemas constructivos, o con sus propios subsistemas (por ejemplo, para fachadas o instalaciones), debido a sus dimensiones estandarizadas, su método de construcción o sus conexiones. Los sistemas abiertos tampoco están necesariamente vinculados a un fabricante (ICOMOS Suisse, op. cit. supra, nota 10, p. 181).

[13] WICHMANN, Hans. System Design: Fritz Haller Bauten - Möbel - Forschung. Basilea: Birkhäuser, 1989, p. 70. ISBN 978-3-7643-2325-7.

[14] Ibid., p. 72.

[15] HALLER, Fritz, op. cit. supra, nota 11, p. 473.

[16] Ibid.

[17] WICHMANN, Hans, op. cit. supra, nota 13, p. 138.

[18] El edificio más conocido construido con el sistema MINI es la “casa Büchli”, residencia privada del propietario de la empresa USM, Päul Schärer, construida en 1968-1969 y protegida en la actualidad como edificio de valor patrimonial.

[19] WICHMANN, Hans, op. cit. supra, nota 13, p. 102.

[20] El encargo más importante construido con el sistema MIDI es el Centro de formación de SBB (compañía ferroviaria estatal suiza) en Loewenberg (1980-1983). El complejo incluye nave de formación, sala de máquinas, edificio escolar, comedor y dos pabellones residenciales.

[21] Desde 1977, Haller fue profesor titular en la Universidad de Karlsruhe, y director del Instituto de Producción de Edificios Industriales, hasta 1990 llamado Instituto de Diseño de Edificios (DRACH, Angelika; HOVESTADT, Ludger. Intelligente CAD-Systeme : Instrumente für die Planung und Verwaltung komplexer Gebäude. En: Werk, Bauen + Wohnen [en línea].Zúrich: Organ des Bundes Schweizer Architekten, 1992, n.° 79, cuad. 10: Fritz Haller, pp. 16-24) [consulta: 30-09-2024]. Disponible en: https://www.e-periodica.ch/digbib/view?pid=wbw-004%3A1992%3A79%3A%3A883.

[22] STADLER, Laurent; VRACHLIOTIS, Georg, op. cit. supra, nota 9, p. 292.

[23] Ibid.

[24] SABATTO, Steeve. Zur Frage von Massstab und Ökonomie. Totipotenz und Automation bei Konrad Wachsmann und Fritz Haller. En: STALDER, Laurent; VRACHLIOTIS, Georg, op. cit. supra, nota 9, p. 140.

[25] SCHÄRER, Paul, op. cit. supra, nota 9, p. 207

[26] KLEMP, Klaus. The USM Haller Furniture System. Design Classics Series. Frankfurt: Verlag Form, 2002, p. 17. ISBN 9783931317430.

[27] El sistema MAXI, el más utilizado de los tres, fue empleado casi exclusivamente para naves de producción, con excepción de una vivienda unifamiliar. El sistema MINI fue mayoritariamente empleado para edificios de oficinas vinculadas a plantas de producción, y para viviendas unifamiliares. El sistema MIDI tuvo una aplicación menor, con un total de cinco trabajos llevados a cabo, incluyendo varios edificios de uso residencial, administrativo y educacional. El inventario completo de todos los proyectos, tanto ejecutados como no ejecutados, que incluyeron uno de los tres sistemas Haller, se recoge en: ICOMOS Suisse, op. cit. supra, nota 10, pp. 167-169.

[28] ADMINISTRACIÓN FEDERAL DE SUIZA. Protection of cultural property inventory with objects of national importance (Federal Office for Civil Protection FOCP). Plataforma de Información Geográfica de la Confederación Suiza. Disponible en: https://api3.geo.admin.ch/rest/services/ech/MapServer/ch.babs.kulturgueter/9038/extendedHtmlPopup?lang=en.

[29] HALLER, Fritz. Fabrikhalle in Münsingen = Halle de fabrication à Münsingen = Factory shed at Münsingen. En: Bauen + Wohnen [en línea].Zúrich: Organ des Bundes Schweizer Architekten, 1964, n.° 18, cuad. 10, p. 394 [consulta: 30-09-2024]. Disponible en: https://www.e-periodica.ch/digbib/view?pid=buw-001%3A1964%3A18%3A%3A1290#1290.

[30] Bürohaus Schärer’s Söhne, Münsingen = Immeuble des bureaux, Schärer et fils, Münsingen = Office building, Schärer’s sons, Münsingen. En: Bauen + Wohnen [en línea].Zúrich: Organ des Bundes Schweizer Architekten, 1965, n.° 19, cuad. 8, p. 323 [consulta: 30-09-2024]. Disponible en: https://www.e-periodica.ch/digbib/view?pid=buw-001%3A1965%3A19%3A%3A1077#1077.

[31] GRASER, Jürg Martin, op. cit. supra, nota 3, p. 267.

[32] HALLER, Fritz. Von Eigenschaften ausgezeichneter Punkte in regulären geometrischen Systemen. En: Bauen + Wohnen [en línea].Zúrich: E Organ des Bundes Schweizer Architekten, 1967, n.° 21, cuad. 11: Bauforschung, pp. 425-438 [consulta: 30-09-2024]. Disponible en: https://www.e-periodica.ch/digbib/view?pid=buw-001%3A1967%3A21%3A%3A1390#1390.

[33] HALLER, Fritz. Bauen und Forschen. Dokumentation der Ausstellung. Solothurn: Kunstmuseum, 1988, sin página (3.3.0)

[34] HALLER, Fritz. totale stadt. ein model. Olten: Walter Verlag, 1968.

[35] HALLER, Fritz. totale stadt. ein globales model. zweite studie. Olten: Walter Verlag, 1975.

[36] STADLER, Laurent; VRACHLIOTIS, Georg, op. cit. supra, nota 9, p. 299.

[37] ICOMOS Suisse, op. cit. supra, nota 10, p. 40-43; 103-107.

[38] Diseñado por el ingeniero Heinz Isler, consistía en estructuras de hormigón de planta cuadrada, con cubierta cupular tipo “concha”. Se trataba de un sistema cerrado y comercializado como producto final (ICOMOS Suisse, op. cit. supra, nota 10, p. 81-83).

[39] SOLÉ BRAVO, Carlos. La casa de Norman y Wendy Foster en Hampstead. Tecnología y domesticidad entre los años 1960 y 1980. Tesis doctoral. UPM, 2017, p. 153. Disponible en: https://oa.upm.es/45408/1/CARLOS_SOLE_BRAVO.pdf.

[40] SABATTO, Steeve, op. cit. supra, nota 24, p. 143.

[41] MEDINA WARMBURG, Joaquín; LEOPOLD, Cornelie. Strukturelle Architektur: Zur Aktualität eines Denkens zwischen Technik und Ästhetik. Bielefeld: Transcript Verlag, 2012. ISBN 978-3-8376-1817-4.

[42] FREI, Hans. Freiheit im Korsett. Die mathematische Denkweise in der Architektur von Fritz Haller. En: STADLER, Laurent; VRACHLIOTIS, Georg, op. cit. supra, nota 9, pp. 124-139.

[43] Wachsman fue profesor en la escuela de Ulm entre 1954 y 1957, especializado en arquitectura industrial y trabajo en equipo, por lo que la relación de Bill con el arquitecto alemán fue estrecha.

[44] HIMMELREICH, Jørg. Alles bleibt anders? Beobachtungen zu zwei Jahrzehnten Schweizer Architektur. En: ANGÉLIL, Marc; HIMMELREICH, Jørg, eds. Architekturdialoge : Positionen, Konzepte, Visionen. Salenstein: Niggli, 2011, p. 120. ISBN 978-3-7212-0801-6.

[45] En la tesis doctoral de Carlos Solé sobre la obra de Norman Foster se recoge “la influencia que la obra del arquitecto y diseñador industrial suizo Fritz Haller ejerció sobre la integración de sistemas en la “nave bien servida”, a través del ingeniero de estructuras Anthony Hunt.” (SOLÉ BRAVO, Carlos, op. cit. supra, nota 39, p. 152.

[46] Equipo de arquitectos del que formaban parte Norman Foster y Richard Rogers, disuelto en 1967.

[47] SOLÉ BRAVO, Carlos, op. cit. supra, nota 39, p. 369.