Proyecto, Progreso, Arquitectura. N31 (2024)

Arquitecturas para la industria

Noviembre 2024

ISSN 2171–6897 / ISSNe 2173–1616

© 2024. E. Universidad de Sevilla.

Creative Commons Attribution-NonCommercial-ShareAlike 4.0 International (CC BY-NC-SA 4.0)

Arquitectura industrial en las publicaciones de posguerra de los estados unidos de América

Industrial architecture in post-war publications in the United States of America

Ricardo Manuel Merí de la Maza 0000-0002-6462-8847

Persona de contacto / Corresponding author: rimede@pra.upv.es. Univesitat Politècnica de València. España.

Bartolomé Serra Soriano 0000-0003-3491-5615

Alfonso Díaz Segura 0000-0002-1424-3068

Recepción: 14-03-2024. Aceptación: 04-11-2024

Cómo citar:

MERÍ de la MAZA, Ricardo, SERRA SORIANO, Bartolomé y DÍAZ SEGURA, Alfonso. Arquitectura industrial en las publicaciones de posguerra de los Estados Unidos de América. En: Proyecto, Progreso, Arquitectura. Sevilla: Editorial Universidad de Sevilla, noviembre 2024, nº 31 Arquitecturas para la industria, pp. 52-75. https://dx.doi.org/10.12795/ppa.2024.i31.03

RESUMEN En los Estados Unidos de América después de la segunda guerra mundial la arquitectura industrial tenía un considerable peso específico en las revistas de arquitectura, que se correspondía con la realidad de la práctica profesional y con las demandas de la sociedad. La guerra supuso una demora y parálisis de las construcciones industriales civiles, pero su final permitió una actualización y expansión del tejido arquitectónico-industrial que conservó la descentralización promovida por las estrategias de seguridad bélica. Las publicaciones periódicas especializadas de la época son una fuente de información indispensable para recuperar los avances que se produjeron en esa década de posguerra y que siguen vigentes en lo que se refiere a arquitectura industrial. En estos años, en las revistas no van a primar los aspectos estéticos sino los avances organizativos, técnicos y tecnológicos. Las revistas de arquitectura se convirtieron en manuales técnicos con una clara función de transmisión al conjunto del colectivo. El artículo presenta una recopilación de las publicaciones más destacadas relacionadas con la arquitectura para la industria en las publicaciones de los EE.UU. posteriores a la segunda guerra mundial, desde 1945 hasta 1949. Las principales revistas seleccionadas son The Architectural Forum, Architectural Record y Progressive Architecture.

PALABRAS CLAVE revistas de arquitectura; arquitectura bélica; innovación arquitectónica; plantas industriales; Albert Kahn; The Austin Company.

SUMMARY In the United States, after the Second World War, industrial architecture had considerable weight in architectural journals, which corresponded to the reality of professional practice and the demands of society. The war delayed and paralyzed civilian industrial construction, but its end allowed an updating and expansion of the architectural-industrial fabric, preserving the decentralization promoted by wartime security strategies. The periodicals of the time are an indispensable source of information for reconstructing the progress made in the post-war decade and still in force in industrial architecture. In those years, the magazines did not focus on aesthetic aspects, but rather on organizational, technical and technological advances. Architectural magazines became technical manuals with a clear transmission function to the collective as a whole. The article presents a compilation of the most important publications on architecture for industry in U.S. publications after the Second World War, from 1945 to 1949. The main journals selected are The Architectural Forum, Architectural Record and Progressive Architecture.

KEYWORDS architectural journals; war architecture; architectural innovation; industrial plants; Albert Kahn; The Austin Company.

Arquitecturas olvidadas: publicaciones norteamericanas de posguerra

Las revistas de arquitectura han sido durante el último siglo una fuente fundamental de información, y difusión del panorama arquitectónico internacional. Pero su temporalidad y su idiosincrasia implica que las obras publicadas pueden pasar al olvido con la misma inmediatez que fueron divulgadas. Por otra parte, la arquitectura industrial ha quedado relegada en la actualidad a una presencia testimonial dentro de las publicaciones periódicas arquitectónicas.

No siempre ha sido así, en los Estados Unidos de América después de la segunda guerra mundial la arquitectura industrial tenía un considerable peso específico en las revistas de arquitectura, en correspondencia con la realidad de la práctica profesional y las demandas de una sociedad concienciada de la importancia que tenía el desarrollo industrial. Las publicaciones arquitectónicas, afectadas por la movilización de sus colaboradores y los racionamientos de guerra, retomaron su actividad con mayor intensidad al finalizar el conflicto. La segunda guerra mundial y la intensificación de la industria facilitaron la reconversión de las revistas en manuales de arquitectura[1].

Muestra del peso social de la arquitectura industrial en esos años lo da el catálogo de la exposición del MoMA Built in USA: Post-War Architecture, donde se presentaban cuatro obras de carácter industrial entre las 43 escogidas. La selección se llevó a cabo por un comité de expertos independientes supervisados por Henry-Russell Hitchcock, conforme al método de “calidad y significancia del momento[2]. Hitchcock apunta en la introducción que “comparativamente, las obras industriales se mantienen a un alto nivel y, sin embargo, como siempre, es difícil encontrar fábricas que destaquen especialmente[3]. Comentario que va a refrendar unos años después: “La construcción industrial aún no ha sido aceptada en el ámbito de la arquitectura como lo ha sido la construcción comercial en los últimos cien años (…). Resulta difícil mencionar fábricas concretas, aunque solo sea porque su diseño, ya sea obra de ingenieros o de estudios de arquitectura especializados como Albert Kahn, Inc. ha llegado a una estandarización en gran medida anónima -el destino, por cierto, hacia el que algunos críticos consideran que se dirige inevitablemente toda la arquitectura del siglo XX-[4]. Cabe resaltar que, de las cuatro obras industriales referenciadas, dos se corresponden con edificios de Mies y Wright, la Boiler plant en el IIT y la torre de investigación para la Johnson Wax Co. Otro de los ejemplos es el General Motors Technical Center de Saarinen, y que el mismo Hitchcock definió como “más comparable en escala y complejidad con una ciudad universitaria que con una factoría[5]. El último ejemplo, la Bluebonnet Plant para el procesado de productos del maíz de Frank L. Whitney, es el único genuinamente industrial.

Las historiografías más importantes de la arquitectura moderna han tendido a olvidar la existencia de estas obras de arquitectura. En las compilaciones de Frampton, Colquhom, Curtis, Benevolo o Zevi la arquitectura industrial de esa época no tiene presencia[6]. Una excepción la encontramos en el controvertido libro de J. Buschard y A. Bush-Brown sobre la influencia social y cultural de la arquitectura americana, que dedica fragmentos a la arquitectura industrial, su influencia y las firmas que la desarrollaron, pero dando un panorama incompleto[7]. Así pues, las publicaciones periódicas especializadas de la época son una fuente de información indispensable para recuperar una visión específica de lo que estas arquitecturas aportaron en su momento y que todavía hoy puede ser de utilidad.

Para tener una panorámica lo más completa posible, hemos recorrido y compilado cerca de 200 artículos relacionados con la arquitectura industrial americana durante los diez años posteriores a la segunda guerra mundial, desde 1945 hasta 1954. Donde se observa un pico de publicaciones en 1951 con cierto retraso sobre la ejecución de las obras. Posteriormente, nos hemos centrado en los 5 primeros años acotando la investigación al periodo de transición de posguerra que facilitó la expansión posterior (figura 1).

1. Presencia de la arquitectura industrial en las publicaciones americanas, 1945-1954.

Las revistas seleccionadas para su análisis y compilación son: The Architectural Forum, Architectural Record, Progressive Architecture, AIA Journal, Arts & Architecture, Interiors y American Builder. La selección se ha realizado tanto por su importancia y difusión en la época como por la existencia de bases de datos con ejemplares digitalizados. Las tres primeras son las más relevantes ya que son las que incluyen un mayor número de artículos y ejemplos vinculados con la arquitectura industrial. En otras, la presencia es testimonial cuando no inexistente, pero aportan datos relevantes sobre el estado de la profesión y de la construcción durante la posguerra (figura 2).

2. Tabla resumen de los resultados de la investigación en el tramo 1945-1949.

El contexto histórico, social, económico y profesional

El final de la segunda guerra mundial fue más precipitado de lo que la sociedad americana se esperaba. Estados Unidos no estaba preparado para transformar la economía de guerra y reemprender las actividades económicas de manera inmediata, y necesitó seis meses para “sobreponerse al shock de la paz[8]. Numerosos arquitectos licenciados se reincorporaban a sus puestos de trabajo o emprendían nuevas actividades de manera independiente. Al terminar el conflicto, el déficit de edificios era grande y, además, la demora impuesta por la guerra permitió un cambio generacional en la industria que facilitó la aceptación de una nueva arquitectura[9].

En enero de 1945, American Builder publicó un artículo firmado por Herman Byer sobre el volumen de construcción de 1944 y 1945. Incluye una tabla sobre la construcción pública y privada por sectores en los 30 años anteriores, donde se muestra que el volumen de construcción total casi se duplicó en los primeros años de la guerra para luego caer hasta algo más de un tercio. El incremento inicial se obtuvo a costa de la construcción privada, reducida a cifras similares a los años de la gran depresión, y gracias exclusivamente a la inversión pública de construcción militar, naval e industrial. Byer explica que “un gran número de empresas desean ampliar o remodelar sus fábricas lo antes posible como preparación para la reconversión, y que otras empresas tienen preparados planes específicos de expansión[10]. Parte de las plantas industriales dedicadas a la producción bélica fueron vendidas a firmas privadas inmediatamente después de la guerra, bajo la condición de permanecer disponibles en caso de emergencia. Y el crecimiento del mercado interior permitió a muchas corporaciones reconvertir y utilizar sus factorías ampliadas durante el conflicto[11].

El problema más acuciante para la construcción durante el año 1946 fue el cuello de botella de la carencia de materiales en el mercado que implicó un incremento considerable de los plazos de ejecución[12]. Un problema provocado esencialmente por los desajustes en la distribución de los materiales en bruto y por las regulaciones de precio máximo determinadas por la OPA[13]. A pesar de ello, aunque “el familiar sonido de la remachadora seguía ausente de las calles de las ciudades, el ruido de la sierra del carpintero se oía con fuerza en los suburbios, y las parcelas de la periferia se vendían casi tan rápido como en los años veinte[14].

La gran pregunta en 1946 era qué edificios se consideraban esenciales para darles prioridad en el uso de los materiales. El Wyatt program[15] puso todo su énfasis en las viviendas de bajo coste para veteranos y existía además cierto consenso en incluir entre las necesidades primordiales escuelas y hospitales[16]. Aunque ya se permitían casi todos los tipos de vivienda, aún existían restricciones para ciertas construcciones. La situación global llevó a una mayor escalada de los precios, con una inflación general de posguerra especialmente acentuada en la construcción.

Mientras tanto, en 1946 la industria automovilística se preparaba para una expansión imparable y las solicitudes para permisos de construcción industrial se producían a un ritmo de casi 150 por día. La CPA[17] de Detroit aprobó 12 millones de dólares en sus primeras semanas de existencia, ya que muchos de los materiales previstos para las expansiones de las plantas estaban ya en proceso de fabricación y no podían ser reutilizados. A finales de 1946 el presidente Truman comenzó a retirar parte de las restricciones vigentes para la construcción. Algunas medidas se mantendrían como coletazos de los controles de guerra, en especial sobre las reservas de acero, lo que significaba inevitablemente un cierto control gubernamental sobre toda la producción industrial[18].

Ese también fue el año del anuncio por parte de Republic Steel de que “el sueño centenario de los siderúrgicos se había hecho realidad[19]: el acero podía fundirse en un proceso continuo de un solo paso. Consecuentemente, las plantas de procesamiento de acero podían construirse a un coste sensiblemente inferior y de manera descentralizada. La decisión del Tribunal Supremo de los EE.UU. de prohibir el sistema de fijación de precios establecido para las industrias de acero, cemento y otros materiales, dio el empuje definitivo a la evolución industrial. A todo ello se sumó la recomendación del National Security Resources Board de que una distribución geográfica del poder industrial resultaba vital para la seguridad nacional[20]. La política de deslocalización estratégica de la industria durante la guerra tendría continuidad en la década siguiente, favoreciendo la expansión industrial privada en múltiples zonas del país.

La construcción industrial en los años posteriores a la guerra comenzó a decelerar ligeramente hasta 1949. Una gráfica publicada por The Architectural Forum en julio de 1949[21] muestra la caída desde el 5% hasta el 2,5% sobre el total de la construcción no residencial por sectores. Los números se confirman a finales de 1949 con una previsión de una caída del 25% en el sector de la construcción industrial para el año 1950[22]; aunque posiblemente también reflejan en parte el inmenso crecimiento de la edificación residencial privada de aquellos años.

En 1949 el presidente de la Dodge Corporation daba una visión muy clara y concisa de las tres fases de la recuperación tras la guerra[23]:

El comienzo de la década de los cincuenta trajo una enorme expansión económica y un periodo de optimismo levemente condicionado por las enormes dudas que generaba la amenaza de la bomba atómica, que afectaron también a la arquitectura industrial.

Las grandes firmas y las repercusiones de las instalaciones bélicas

En los primeros años de posguerra aún no había nuevas edificaciones industriales que mostrar, tan solo los proyectos en desarrollo. En cambio, ya era posible divulgar los avances de la arquitectura industrial bélica de los años previos sin la censura de guerra. Esas construcciones se llevaron a cabo por una serie de firmas profesionales de gran tamaño y con una metodología innovadora que era interesante contar al resto de la profesión. Entre ellas destacaban The Austin Company y Albert Kahn Associates[24]que, además, extendieron su posición predominante durante los años siguientes.

The Architectural Forum dedicó parte de sus números de enero y febrero de 1945 a un artículo sobre The Austin Company donde recoge las modernas organizaciones industriales de guerra llevadas a cabo con el ‘Austin Method’ conforme a su eslogan de ‘undivided responsability’. El artículo presenta además su programa de investigación material y técnica, y cómo se estaban preparando para la posguerra. También pone de relieve la ruptura entre las fronteras profesionales desde la guerra:

“Aunque las normas profesionales del Instituto Americano de Arquitectos siguen prohibiendo la participación en obras de construcción, cada vez son más los grandes estudios de arquitectura que suscriben la idea de que una cierta relajación de esta norma para permitir un control más directo del proceso de construcción podría ser ventajosa tanto para el arquitecto como para el cliente. Especialmente desde la guerra, la antigua distinción entre servicios puramente arquitectónicos y servicios puramente de ingeniería se ha roto casi por completo”[25].

Los avances esenciales se pueden resumir en los siguientes: velocidad y economía mediante la estandarización del sistema estructural; aplicación de los principios de marco rígido a estructuras de hormigón y madera para ahorrar en acero; losas y vigas pretensadas en hormigón armado para ahorrar tiempo y mano de obra; arcos de madera laminada para grandes luces; vigas para 300 pies de luz; dobles paredes exteriores aislantes con bloque acústico al interior; techos acústicos aislantes; ‘breathing walls’ para economizar en aire acondicionado; nuevos sistemas de iluminación industrial más eficaces empleando las nuevas lámparas fluorescentes; edificios sin ventanas con innovaciones en calefacción y ventilación; estudio de los diagramas de flujo y disposición funcional tridimensional; estudio de los flujos humanos además de los de producción (figura 3).

3. “Under continuous fluorescent lighting workers produce Douglas Skytrains in vast assembly área”. The Austin Company.

Las obras de The Austin Company estuvieron presentes recurrentemente en las tres grandes revistas de arquitectura americanas: una planta para la American Paper Goods Company como medida de eficiencia moderna[26]; una planta industrial para Boeing Aircraft Company[27]; El diseño con control antipolvo y gérmenes para la Winthrop Chemical Co.[28]; o una nueva planta para la Bayer Company[29].

La otra firma con mucha presencia en las publicaciones de esos años fue Albert Kahn, Associates Architects & Engineers, primero con sus trabajos bélicos para la United Aircraft Corporation[30] o la U.S. Navy[31], y posteriormente con variados encargos ya en tiempos de paz: una fábrica de ropa en Rochester[32] o varios proyectos para la Chevrolet[34] (figura 4).

4. Diesel Engine Plant. Albert Kahn, Ass. Arch. & Eng.

En enero de 1946, Progressive Architecture subtituló su portada “Since you went away”, tratando de poner al día a los arquitectos retornados. El artículo firmado por Thomas H. Creighton, del American Institute of Architects, recogía gran variedad de aspectos que afectaban a la profesión. Las publicaciones de arquitectura habían evolucionado de presentar una información básica a análisis detallados de materiales y métodos de construcción. Respecto a la arquitectura industrial constata: “La palabra ‘fábrica’ había pasado a significar un edificio que funcionaba bien pero no tenía buen aspecto. Varios diseñadores, en particular la organización de Albert Kahn y la Austin Corporation, intentaron eliminar este estigma[35].

Ese mismo año, The Architectural Forum publica una recopilación de las construcciones más importantes llevadas a cabo por la marina estadounidense durante la guerra[36]. Entre las variadas tipologías mostradas se incluyen hangares, astilleros, almacenes, fábricas y otros edificios de carácter industrial, con innovadoras soluciones técnicas y materiales (figura 5).

5. The Navy Builds. Construcciones de la Marina Americana durante la segunda guerra mundial.

Avances y tendencias en arquitectura industrial

La presencia de A. Kahn Associates se extendía a otro tipo de artículos sobre las tendencias y necesidades industriales del momento, como “The design of Factories Today”. El artículo está basado en las conclusiones de un estudio realizado sobre 23 plantas industriales en el que se consultó al personal responsable de las distintas áreas sobre la idoneidad de sus instalaciones y los cambios que podrían recomendar. Comienza con un desiderátum: “En los últimos veinte años, los edificios industriales han entrado en el ámbito de la arquitectura gracias a un diseño limpio y decente; en los próximos veinte años, quizá estos edificios salgan de su aislamiento y traten de compartir la agradabilidad del resto de la vida[37].

Las claves planteadas se pueden resumir en: mayor eficiencia y lugares de trabajo agradables sin necesidad de embellecimiento artístico; edificios bien organizados, iluminados y completamente equipados; localizados fuera de las ciudades teniendo en cuenta el tratamiento del paisaje exterior y las posibles ampliaciones futuras; la necesidad de plantas flexibles tanto nuevas como adaptando las existentes; cuidando la circulación y las instalaciones de los empleados mediante el estudio de su comportamiento real (figura 6).

6. The design of factories today. Albert Kahn, Ass. Arch. & Eng. Esquema organizativo y características de los espacios.

En diciembre de 1946, el presidente de A. Kahn Associates escribió sobre nuevas tendencias en el diseño de plantas industriales[38]. Los temas tratados recorren todos los aspectos fundamentales del diseño para la industria: repercusión de las relaciones personales en el diseño de los edificios; nuevos materiales de construcción; cambios en el diseño estructural; influencia de la distribución de la producción en el diseño de los edificios; cubiertas y cerramientos; distancias entre soportes; calefacción, ventilación y aire acondicionado; construcción sin ventanas frente a construcción con luz natural; pintura interior y uso del color; comedores; instalaciones sanitarias; instalaciones recreativas; instalaciones exteriores; aparcamientos; paisajismo; acústica.

En ese mismo número encontramos otros artículos centrados en las plantas industriales como lugares de trabajo; en el diseño de las pequeñas plantas industriales; en la necesidad de la estandarización para rebajar los costes; y en el aumento de los costes de construcción y el peligro de ahorrar en el proceso de ejecución de la fábrica a costa de una pérdida futura de eficacia.

Otro artículo de ese año especialmente interesante es el que presentaba las ‘Mobilar structures’[39] inventadas por Konrad Wachsmann utilizando elementos estructurales tubulares y paredes móviles. Ante la carencia de materiales, la búsqueda de métodos de construcción más económicos se convirtió en esencial. El sistema tiene dos partes: elementos de armazón normalizados consistentes en tubos de acero de diámetro exterior constante con conectores simples soldados a ambos extremos; y paneles de pared móviles que pueden separarse de la estructura o fijarse a ella a voluntad (figura 7).

7. Mobilar structures. Konrad Wachsmann.

En agosto de 1947, Roland A. Wank escribió en Architectural Record sobre las oportunidades de los arquitectos en el diseño de fábricas. Estas se encontraban principalmente relacionadas con las pequeñas industrias que conforman la mayoría del tejido industrial estadounidense, y que suponían una importante fuente de encargos para las firmas profesionales comunes. Ponía de relieve la dicotomía entre las necesidades de crecimiento de estas industrias y las dificultades de hacerlo en sus instalaciones, al tiempo que resultaba difícil su deslocalización. También comentaba las dificultades de renovar los equipamientos dadas unas necesidades espaciales y ambientales que las viejas fábricas tenían difícil asumir: “Un arquitecto observador debería ser capaz de adivinar hasta qué punto las plantas de su entorno se han visto afectadas por estas tendencias (…). Su preocupación de toda la vida por las reacciones de las personas ante su entorno físico probablemente le capacitará para hacer observaciones válidas sobre cuestiones de relaciones con los empleados, eficacia en el trabajo y efecto sobre el público[40].

En ese mismo número se incluían varias obras recientes de arquitectura industrial, un estudio sobre detalles económicos para la estructura de acero[41] a cargo del American Institute of Steel Construction for Small Industrial Buildings, y un resumen de un proyecto de investigación llevado a cabo por los alumnos de Harvard sobre la construcción de edificios industriales bajo la dirección del profesor de arquitectura Walter F. Bogner[42] (figura 8).

8. Industrial plants - A Harvard research Project. Walter F. Bogner.

En agosto de 1948, Architectural Record publicó el artículo “An Enlightened look at a factory[43] con la visión del General Robert Johnson sobre los ideales de los edificios industriales de acuerdo a sus elevados estándares y su concepción de la gestión industrial. Uno de sus preceptos fundamentales era que una fábrica debe ser pequeña, y si la empresa es grande la producción debe dividirse en unidades menores. Esto surgía del principio que los trabajadores debían ser considerados como seres humanos y no sólo como unidades de producción, al igual que los gestores de las plantas también lo eran y debían pasar tiempo con los trabajadores. El lugar que propicia ese encuentro es la pequeña factoría. De acuerdo con Johnson existen seis puntos básicos para la gestión industrial: “(1) buen mantenimiento de la casa; (2) sencillez y belleza de la planta y las instalaciones; (3) ingeniería humana; (4) descentralización; (5) énfasis en la juventud; (6) conciencia de los costes[44]. Estos principios explicaban los motivos por los cuales las plantas de la Johnson & Johnson diferían tanto unas de las otras. Posteriormente el artículo recogía el modus operandi de diseño de la empresa codificado por su director de construcción de fábricas, F.N. Manley.

En ese mismo número encontramos otro artículo de Julian Ellsworth Garnsey dedicado al color como elemento funcional en los edificios industriales[45], en el que se destaca su importancia en cualquier edificio donde se lleven a cabo tareas que requieren de concentración visual. Entre otros temas, el texto trata: del contraste simultáneo en la percepción visual; del efecto de memoria del color; de la influencia de los colores fríos y cálidos; de las asociaciones fisiológicas; y de las consideraciones estéticas.

Los nuevos edificios industriales

En agosto de 1947 The Architectural Forum publica la nueva factoría de forja y herramientas para la H.K. Porter Inc. diseñada por Walter F. Bogner[46]. La empresa, en pleno auge de pedidos de guerra, pidió al arquitecto que estudiara el coste de ampliación comparándolo a una nueva. Bogner diseño una planta completamente moderna con un coste inicial que duplicaba la ampliación, pero también ayudo a seleccionar el nuevo emplazamiento que reducía los gastos de explotación en un 10%. Tras numerosos estudios se llegó a una solución de la máxima eficiencia que integraba las dos factorías y que además facilitaba las futuras expansiones. Y en diciembre de ese mismo año, The Architectural Forum publicó una factoría de productos de limpieza para la B.T. Babbitt Co. en el distrito industrial Clearing de Chicago[47]. El arquitecto, Henry L. Blatner, convenció a la compañía de las ventajas de un esquema en una única planta con flujo ininterrumpido de materiales y carga interior. Además, para garantizar unas condiciones de trabajo saludables, se instaló un sistema especial de captación de polvo y sistemas de calefacción e iluminación (figura 9).

9. Esquemas de funcionamiento, iluminación y acondicionamiento de aire. Factoría B. T. Babbitt Co., Chicago.

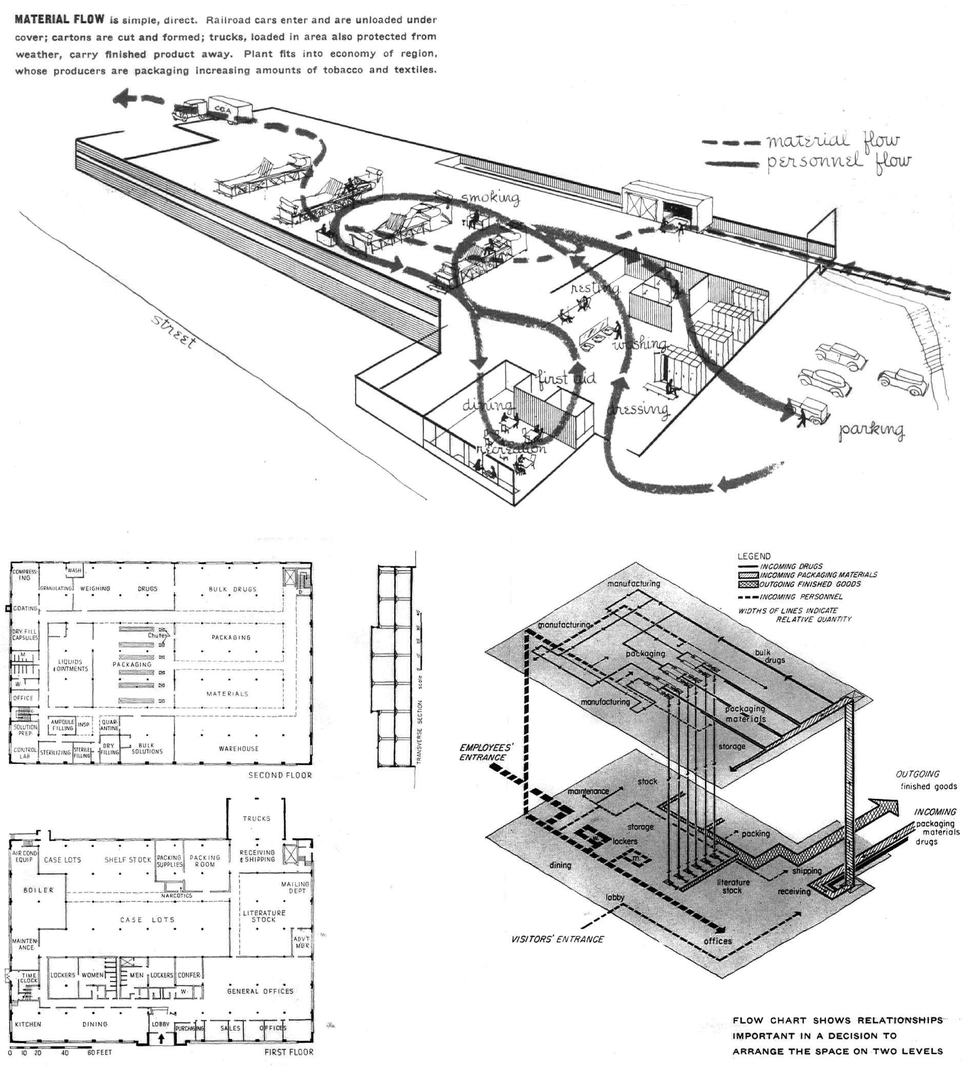
La misma revista incluía en su número de agosto de 1948 un artículo sobre nuevos edificios industriales[48]. El primero es una planta de plegado de cartón diseñada por The Ballinger Co. junto a Walter Gropius cuyo requisito fundamental era facilitar la producción continua y el trabajo de los supervisores, para lo cual ampliaron las luces habituales a un esquema de 50 × 20 pies en la zona de fabricación. El segundo edificio era un almacén diseñado para vender secciones de barras de acero pesadas “en el mostrador”; el único almacén completamente mecanizado de la industria siderúrgica del momento según sus ingenieros. Y la tercera obra presentada es una planta farmacéutica para los Abbot Lab. diseñada por Harper Richards y H.J. Doran. En este caso, el estudio se centraba en optimizar el funcionamiento y reducir los costes, para lo que se llegó a una solución en dos niveles donde las tareas de fabricación se agruparon teniendo en cuenta el movimiento periódico masivo de personal y materiales entre departamentos (figura 10).

10. Superior: esquema de flujos, The Ballinger Co. Inferior: plantas y diagramas de funcionamiento, Abbot Lab.

El número de Progressive Architecture de agosto de 1948 dedicaba su apartado de crítica arquitectónica a cuatro ejemplos de edificios industriales con los comentarios de Roland Wank, antiguo arquitecto jefe de la Tennessee Valley Authority. La introducción del estudio eleva el edificio industrial a la categoría de la arquitectura más orgánica de la época: “Su función puede enunciarse con una exactitud casi matemática. Dado que la eficiencia es la consigna, la planta puede desarrollarse tan lógicamente como lo permita la habilidad del diseñador. Debido a la necesidad de buenas condiciones de trabajo, el arquitecto puede recurrir a los últimos avances técnicos para crear el entorno ideal para el trabajo. Al carecer de un sentimiento arquitectónico engolado, el arquitecto tiene libertad para crear una auténtica armonía entre forma y función[49]. Los ejemplos incluidos se mueven entre una sencilla factoría de papel en Maine construida íntegramente en madera, una planta de producción de nylon en condiciones atmosféricas precisas con un reluciente acabado en aluminio, o un elegante almacén en Illinois para la J.A. Roebling Corp. proyectado por Skidmore, Owings & Merrill (figura 11).

11. Factory, West Bath. Throwing mil, Winston-Salem. Warehouse and branch office, Cicero.

Los premios de arquitectura de la revista Progressive Architecture del año 1948 se dieron a conocer en el número de junio de 1949, y otorgaban en la categoría de edificaciones no residenciales el máximo galardón al edificio de artillería y óptica del Departamento de Marina de los EE.UU. en el Astillero Naval de San Francisco. El jurado valoró la obra del arquitecto Ernest J. Kump y el ingeniero estructural Mark Falk por ser uno de los edificios industriales más imaginativos y mejor diseñados del mundo: “El concepto, el tratamiento de los materiales y la iluminación están perfectamente integrados. Por su planteamiento tan directo, tan hábilmente realizado, el Jurado consideró que representa un progreso definitivo en la humanización de las plantas industriales[50] (figura 12).

12. Edificio de artillería y óptica del Departamento de Marina de los EE.UU. en San Francisco.

Architectural Record dedicó buena parte de su número de noviembre de 1949 a publicar algunas fábricas de tamaño pequeño en los EE.UU. El principal caso de estudio era una refinería en Texas proyectada por H.K. Ferguson Co., con Frank L. Whitney como arquitecto responsable[51]. Además, recoge en un artículo de Eric L. Bird, editor del Journal of the Royal Institute of British Architects, algunas construcciones industriales de posguerra en Inglaterra[52]. Y el artículo de análisis corría a cargo Kenneth K. Stowell, arquitecto de la firma Giffels & Vallet, Inc. Eng., L. Rossetti Arch[53].

Los grandes proyectos corporativos

Durante los primeros años de posguerra también se publicaron como novedades algunos proyectos de gran escala en elaboración que acapararían muchas páginas en las publicaciones de los años cincuenta.

Los primeros se recogían en el número de noviembre de 1945 de Architectural Record. La firma Giffels & Vallet, Inc. L. Rossetti, Associated Engineers and Architects diseñó para la General Electric Co. en Syracuse, Nueva York, un nuevo ‘Electronics Park[54] destinado a convertirse en la nueva capital mundial de la electrónica. Se trataba de un conjunto de fábricas y edificios de investigación que incluía nueve edificios en total: Administración, Recepción, Laboratorio, Recepción de radio, Transmisión de radio, Especialidades, Restaurante, Mantenimiento y Calderas. Cada uno de ellos debía funcionar como una unidad autónoma. Y además de las extensas instalaciones de investigación estaban previstas aulas, auditorio y otras instalaciones educativas.

En ese mismo número se publicó el proyecto de Saarinen & Swanson para el nuevo Cetro Técnico de la General Motors en Detroit[55], una de las intervenciones con más atención mediática. La enorme inversión prevista reunía un grupo de edificios en un terreno de 350 acres con el objetivo de lograr un intercambio más rápido de ideas y un contacto más estrecho entre la ciencia pura y la aplicación práctica. Además de los edificios de administración el conjunto incluía laboratorios de investigación, y secciones de ingeniería avanzada, de diseño y de proceso de desarrollo. Los edificios se agrupaban entorno a una gran esplanada central con un lago de siete acres que se preveía como alimentador del sistema de enfriamiento para el aire acondicionado (figura 13).

13. General Motors Technical Center. Saarinen & Swanson, Arch.

Otro proyecto importante fue la remodelación y ampliación de la factoría Heinz en Pittsburgh[56], a cargo de Gordon Bunshaft, como socio de SOM. El conjunto industrial de Heinz estaba conformado por 19 edificios principales, el más antiguo con más de 50 años. Ante el estrangulamiento de la producción y la saturación de los espacios decidieron poner orden en el conjunto mediante un nuevo plan director. El primero de sus problemas eran las importantes crecidas de los ríos Allegheny y Monongahela, que en la última gran inundación de 1936 habían llegado hasta la primera planta. La solución de SOM planteaba los nuevos edificios sobre pilotes o con previsión de no tener ninguna maquinaria importante por debajo del nivel de la última crecida. El segundo problema era la ocupación de un 60% de la superficie en planta por stock de materiales, que se buscaba solventar con un nuevo almacén centralizado de tres niveles para productos acabados. El tercer problema estaba relacionado con los aparcamientos y con la accesibilidad de camiones para carga y descarga que se resolvía con nuevas dotaciones. Y el cuarto problema eran los edificios obsoletos, siete se demolían para dar cabida a una nueva gran factoría de vinagre, a la nueva sede central de la empresa, y al nuevo edificio de investigación y control de calidad (figura 14).

14. Remodelación de la planta industrial de Heinz. Nuevo Centro de Investigación. Gordon Bunshaft, SOM.

Algunas consideraciones finales

El quinquenio posterior a la guerra preparó a la sociedad para el gran desarrollo económico de la década siguiente. Supuso un resurgimiento con fuerza de las actividades industriales privadas, y fue necesaria una gran renovación y crecimiento de las empresas después de años de estancamiento. Un informe publicado por The Architectural Forum en su número de diciembre de 1950[57], incide en que de un total de 231 oficinas de arquitectura estudiadas el 74% habían diseñado en los años anteriores algún edificio de tipología industrial, solo por detrás de las tipologías comerciales. Aunque las grandes firmas técnicas siguieron teniendo una enorme presencia en el mercado, la importante cantidad de encargos industriales aportaron trabajo a muchos estudios de arquitectura de diversos tamaños. Sus características específicas y el cambio generacional facilitaron además la expansión de los preceptos modernos.

Esas circunstancias se reflejaron en las revistas de la época, que publicaron un número considerable de artículos dedicados a la arquitectura para la industria. Después de las restricciones bélicas, las publicaciones van a poder mostrar con todo detalle los avances producidos durante la guerra y también sus nuevas posibilidades de aplicación en la arquitectura industrial posterior. Durante estos años, en las revistas no van a primar los aspectos estéticos sino los avances organizativos, técnicos y tecnológicos; se convirtieron en manuales técnicos con una clara función de transmisión al conjunto del colectivo. Muchos de los avances que se produjeron en esa década de posguerra siguen vigentes en lo que se refiere a arquitectura industrial: planificación, flexibilidad espacial, flujo de materiales y personas, técnicas constructivas y estructurales, e importancia de los espacios para las personas.

Esta investigación recoge un análisis exhaustivo de la arquitectura industrial de posguerra en los EE.UU., recuperando arquitecturas olvidadas en las historiografías consolidadas, y facilitando la labor de futuras investigaciones sobre la temática. Igualmente, permite comprender en profundidad los desarrollos técnicos, funcionales y sociales específicos de este periodo. Y pone de manifiesto la importancia que la arquitectura industrial tuvo para la disciplina tanto en el desarrollo profesional de los arquitectos, como en la aceptación y expansión de la arquitectura moderna.

Aportación de cada autor CRediT

Ricardo Meri de la Maza (RMM); Bartolomé Serra Soriano (BSS); Alfonso Díaz Segura (ADS). Conceptualización, metodología, análisis y preparación del escrito (RMM 33,3% - BSS 33,3% - ADS 33,3%). Autoría (RMM 33,3% - BSS 33,3% - ADS 33,3%)

Todos los/las autores/as declaran que no existe ningún conflicto de intereses con los resultados del trabajo.

Agradecimientos:

Las fotografías de la figura 5 son cortesía del Naval History & Heritage Command Archive; la figura 7 cortesía de Ray Wachsmann; las fotografías de las figuras 4 y 11 © The Chicago History Museum Collection; la fotografía de la figura 14 © Photographer/Esto. Licensing agreement as per email correspondence with Esto sales agent.

Biografía de los autores

Ricardo Merí de la Maza (Valencia, 1976). Arquitecto y Doctor Arquitecto por la Universitat Politècnica de València. Actualmente es profesor Titular en el Departamento de Proyectos Arquitectónicos de la Universitat Politècnica de València. Ha impartido clases en la Universidad CEU Cardenal Herrera y en la Universidade Lusófona do Porto. Ha publicado artículos entre otras revistas en Energy & Buildings, PpA, Informes de la Construcción, VLC Arquitectura, Rita fundamentos, Dearq, Zarch, etc. En la actualidad es director de la revista TC Cuadernos, donde ha editado numerosas monografías de los más importantes arquitectos contemporáneos, y co-director de la colección de libros de investigación Architectural Research Tribune.

Bartolomé Serra Soriano (Valencia, 1982). Arquitecto por la Universidad Politécnica de Valencia y Doctor Arquitecto por la Universidad Cardenal Herrera CEU. Profesor de Construcciones Arquitectónicas. Departamento de Proyectos, Teoría y Técnica del Diseño y la Arquitectura de la Escuela Superior de Enseñanzas Técnicas de la Universidad Cardenal Herrera CEU. Acreditado por la ANECA como Profesor Ayudante Doctor y acreditado por la AQU como Profesor Lector (Contratado Doctor). Dos Sexenios de investigación 2010-2015 y 2016-2021 reconocidos por el CNEAI. Artículos publicados en Energy & Buildings, Informes de la Construcción, PpA, VLC Arquitectura, Rita redfundamentos, En Blanco y Springer. Actualmente es IP del grupo de investigación Teoría y Técnica Arquitectónica de la Universidad CEU Cardenal Herrera.

Alfonso Díaz Segura (Valencia, 1976). Arquitecto y Doctor Arquitecto por la Universitat Politècnica de València. Profesor de Proyectos Arquitectónicos en la Universidad CEU Cardenal Herrera e investigador del grupo Teoría y Técnica Arquitectónica. Dos Sexenios de investigación reconocidos por el CNEAI. Artículos publicados en Energy & Buildings, Informes de la Construcción, PpA, VLC Arquitectura, Rita redfundamentos, En Blanco y LC Revue. Actualmente es el director de Marketing e Internacionalización de la Fundación CEU San Pablo.

Bibliografía citada

A measure of modern efficiency. En: Architectural Record [en línea]. Nueva York: F. W. Dodge Corp., diciembre 1946, vol. 100, n.º 6, pp. 102-105 [consulta: 30-09-2024]. Disponible en: https://www.architecturalrecord.com/ext/resources/archives/backissues/1946-12.pdf?-728506800.

Albert Kahn, Ass. Arch. & Eng. The Design of Factories Today. En: Architectural Record [en línea]. Nueva York: F. W. Dodge Corp., noviembre 1945, vol. 98, n.º 5, pp. 120-138 [consulta: 30-09-2024]. Disponible en: https://www.architecturalrecord.com/ext/resources/archives/backissues/1945-11.pdf?-762634800.

An Enlightened look at a factory. En: Architectural Record [en línea]. Nueva York: F. W. Dodge Corp., agosto 1948, vol. 104 nº2, pp. 108-111 [consulta: 30-09-2024]. Disponible en: https://www.architecturalrecord.com/ext/resources/archives/backissues/1948-08.pdf?-675892800.

Annual Progressive Architecture Awards. En: Progressive Architecture [en línea]. Nueva York: Reinhold Pub. Corp., junio 1949, vol. 30, n.º 6, pp. 43-49 [consulta: 30-09-2024]. Disponible en: https://usmodernist.org/PA/PA-1949-06.pdf.

Architecture meets machinery and likes it. En: Architectural Record [en línea]. Nueva York: F. W. Dodge Corp., noviembre 1949, vol. 106, n.º 5, pp. 91-108 [consulta: 30-09-2024]. Disponible en: https://www.architecturalrecord.com/ext/resources/archives/backissues/1949-11.pdf.

Assembly plant. En: Progressive Architecture [en línea]. Nueva York: Reinhold Pub. Corp., agosto 1948, vol. 31, n.º 2, pp. 52-56 [consulta: 30-09-2024]. Disponible en: https://usmodernist.org/PA/PA-1948-02.pdf.

BAYER, Herman B. The construction Picture, 1944 and 1945. En: American Builder [en línea]. Chicago: Simmons-Boardman Pub. Corp., enero 1945, vol. 67, n.º 1, pp. 112-113 [consulta: 30-09-2024]. Disponible en: https://usmodernist.org/AB/AB-1945-01.pdf.

Bird, Eric L. Postwar factory construction in England. En: Architectural Record [en línea]. Nueva York: F. W. Dodge Corp., noviembre 1949, vol. 106, n.º 5, pp. 120-121 [consulta: 30-09-2024]. Disponible en: https://www.architecturalrecord.com/ext/resources/archives/backissues/1949-11.pdf.

Bogner, Walter F. Industrial plants - A Harvard research Project. En: Architectural Record [en línea]. Nueva York: F. W. Dodge Corp., agosto 1947, vol. 102, n.º 2, pp. 103-114 [consulta: 30-09-2024]. Disponible en: https://www.architecturalrecord.com/ext/resources/archives/backissues/1947-08.pdf.

Building in One Package. Part 1. En: The Architectural Forum [en línea]. Nueva York: Time Inc., enero 1945, vol. 82, n.º 1, pp. 93-112 [consulta: 30-09-2024]. Disponible en: https://usmodernist.org/AF/AF-1945-01.pdf.

Building in One Package. Part 2. En: The Architectural Forum [en línea]. Nueva York: Time Inc., febrero 1945, vol. 82, n.º 2, pp. 113-128 [consulta: 30-09-2024]. Disponible en: https://usmodernist.org/AF/AF-1945-02.pdf.

Building Month. En: The Architectural Forum [en línea]. Nueva York: Time Inc., mayo 1946, vol. 84, n.º 5, p. 5. [consulta: 30-09-2024]. Disponible en: https://usmodernist.org/AF/AF-1946-05.pdf.

Building Month. En: The Architectural Forum [en línea]. Nueva York: Time Inc., abril 1948, vol. 88, n.º 4, p. 9 [consulta: 30-09-2024]. Disponible en: https://usmodernist.org/AF/AF-1948-04.pdf.

Building Month. En: The Architectural Forum [en línea]. Nueva York: Time Inc., septiembre 1948, vol. 89, n.º 3, p. 11 [consulta: 30-09-2024]. Disponible en: https://usmodernist.org/AF/AF-1948-03.pdf.

Burchard, John y Albert Bush-Brown. The Architecture of America: A social and Cultural History. Boston: Little Brown & Co., 1961. Ed. en castellano: Burchard, John y Albert Bush-Brown. La Arquitectura en los Estados Unidos. Su influencia social y cultural. México D.F.: Editorial de Letras, 1963.

Clothing Plant. En: The Architectural Forum [en línea]. Nueva York: Time Inc., abril 1947, vol. 86, n.º 4, pp. 118-119 [consulta: 30-09-2024]. Disponible en: https://usmodernist.org/AF/AF-1947-04.pdf.

COHEN, Jean-Louis. Architecture in Uniform. Designing and Buildig for the Second World War. Montreal: CCA, 2011. ISBN 978-2-75410-530-9.

Creighton, Thomas A. Pearl Harbour to Nagasaki. A review of Architectural progress during the war years. En: Progressive Architecture Architecture [en línea]. Nueva York: Reinhold Pub. Corp., enero 1946, vol. 27, n.º 1, pp. 42-93 [consulta: 30-09-2024]. Disponible en: https://usmodernist.org/PA/PA-1946-01.pdf.

DAVIDSON, Joel. Building for War, Preparing for Peace: World War II and the Military-Industrial Complex. En: ALBRETCH, Donald (Ed.). World War II and the American dream: How Wartime Building Changed a Nation. Washington D.C.: National Building Museum & MIT Press, 1995. ISBN 9780262510837.

Designed for dust and germ control. En: Architectural Record [en línea]. Nueva York: F. W. Dodge Corp., agosto 1947, vol. 102, n.º 2, pp. 100-102 [consulta: 30-09-2024]. Disponible en: https://www.architecturalrecord.com/ext/resources/archives/backissues/1947-08.pdf.

Diesel engine plant. En: Progressive Architecture [en línea]. Nueva York: Reinhold Pub. Corp., marzo 1945, vol. 26, n.º 3, pp. 79-84 [consulta: 30-09-2024]. Disponible en: https://usmodernist.org/PA/PA-1945-3.pdf.

Economical steel framing details. En: Architectural Record [en línea]. Nueva York: F. W. Dodge Corp., agosto 1947, vol. 102, n.º 2, pp. 115-121 [consulta: 30-09-2024]. Disponible en: https://www.architecturalrecord.com/ext/resources/archives/backissues/1947-08.pdf.

Ellsworth, Julian. Functional Color in Industrial Buildings. En: Architectural Record [en línea]. Nueva York: F.W. Dodge Corp., agosto 1948, vol. 104, n.º 2, pp. 118-123 [consulta: 30-09-2024]. Disponible en: https://www.architecturalrecord.com/ext/resources/archives/backissues/1948-08.pdf.

Fast Construction for Fast Production. En: Architectural Record [en línea]. Nueva York: F. W. Dodge Corp., febrero 1945, vol. 97, n.º 2, pp. 66-73 [consulta: 30-09-2024]. Disponible en: https://www.architecturalrecord.com/ext/resources/archives/backissues/1945-02.pdf?-786225600.

Flood-free Industrial Buildings. En: The Architectural Forum [en línea]. Nueva York: Time Inc., mayo 1949, vol. 90, n.º 5, pp. 102-105 [consulta: 30-09-2024]. Disponible en: https://usmodernist.org/AF/AF-1949-05.pdf.

Forge and Tool Factory. En: The Architectural Forum [en línea]. Nueva York: Time Inc., agosto 1948, vol. 87, n.º 2, pp. 121-135 [consulta: 30-09-2024]. Disponible en: https://usmodernist.org/AF/AF-1948-02.pdf.

General Motors Technical Center to unite science with its application. En: Architectural Record [en línea]. Nueva York: F. W. Dodge Corp., noviembre 1945, vol. 98, n.º 5, pp. 98-103 [consulta: 30-09-2024]. Disponible en: https://www.architecturalrecord.com/ext/resources/archives/backissues/1945-11.pdf.

Hitchcock, Henry-Russell y Arthur Drexler. Built in USA: Post-war Architecture. New York: Museum of Modern Art, 1952.

Hitchcock, Henry-Russell. Architecture. Nineteenth and Twentieth Centuries. Baltimore: Penguin Books, 1958.

HOLDEN, Thomas S. The Three Phases of Postwar Recovery. En: Architectural Record [en línea]. Nueva York: F.W. Dodge Corp., agosto 1949, vol. 106, n.º 2, pp. 94-97 [consulta: 30-09-2024]. Disponible en: https://www.architecturalrecord.com/ext/resources/archives/backissues/1949-08.pdf.

Industrial Buildings. En: Progressive Architecture [en línea]. Nueva York: Reinhold Pub. Corp., agosto 1948, vol. 29, n.º 3, pp. 47-66 [consulta: 30-09-2024]. Disponible en: https://usmodernist.org/PA/PA-1948-03.pdf.

Industrial Buildings. En: The Architectural Forum [en línea]. Nueva York: Time Inc., agosto 1948, vol. 89, n.º 2, pp. 90-100 [consulta: 30-09-2024]. Disponible en: https://usmodernist.org/AF/AF-1948-02.pdf.

Industrial group on the campus plan. En: Architectural Record [en línea]. Nueva York: F. W. Dodge Corp., noviembre 1945, vol. 98, n.º 5, pp. 116-117 [consulta: 30-09-2024]. Disponible en: https://www.architecturalrecord.com/ext/resources/archives/backissues/1945-11.pdf.

Industrial Plant. En: Progressive Architecture [en línea]. Nueva York: Reinhold Pub. Corp., diciembre 1946, vol. 27, n.º 12, pp. 40-49 [consulta: 30-09-2024]. Disponible en: https://usmodernist.org/PA/PA-1946-12.pdf.

Mammoth Automobile Factory. En: Architectural Record [en línea]. Nueva York: F. W. Dodge Corp., agosto 1948, vol. 104, n.º 2 , pp. 112-117 [consulta: 30-09-2024]. Disponible en: https://www.architecturalrecord.com/ext/resources/archives/backissues/1948-08.pdf.

Midwest Bab-O Plant. En: The Architectural Forum [en línea]. Nueva York: Time Inc., diciembre 1947, vol. 87, n.º 6, pp. 61-66 [consulta: 30-09-2024]. Disponible en: https://usmodernist.org/AF/AF-1947-06.pdf.

Miehls, George H. Trends in industrial plat design. En: Architectural Record [en línea]. Nueva York: F. W. Dodge Corp., diciembre 1946, vol. 100, n.º 6, pp. 96-101 Disponible en: https://www.architecturalrecord.com/ext/resources/archives/backissues/1946-12.pdf.

New plant to relieve a nation’s headaches. En: Architectural Record [en línea]. Nueva York: F. W. Dodge Corp., agosto 1948, vol. 104, n.º 2, pp. 124-127 [consulta: 30-09-2024]. Disponible en: https://www.architecturalrecord.com/ext/resources/archives/backissues/1948-08.pdf.

News. En: The Architectural Forum [en línea]. Nueva York: Time Inc., diciembre 1949, vol. 91, n.º 6, p. 7 [consulta: 30-09-2024]. Disponible en: https://usmodernist.org/AF/AF-1949-06.pdf.

News. En: The Architectural Forum [en línea]. Nueva York: Time Inc., diciembre 1949, vol. 91, n.º 6, p. 7 [consulta: 30-09-2024]. Disponible en: https://usmodernist.org/AF/AF-1949-06.pdf.

Panigyrakis, Phoebus Ilias. Architectural record 1942-1967: chapters from the history of an architectural magazine. Delft: TU Delft, 2020. ISBN 9789463663014.

Shortage of Major Building Materials Was 1946 Construction Bottleneck. En: American Builder [en línea]. Chicago: Simmons-Boardman Pub. Corp., enero 1947, vol. 69 n.º 1, pp. 64-65 [consulta: 30-09-2024]. Disponible en: https://usmodernist.org/AB/AB-1947-01.pdf.

Stowell, Kenneth K. The designing of industrial buildings. En: Architectural Record [en línea]. Nueva York: F. W. Dodge Corp., noviembre 1949, vol. 106, n.º 5, pp. 109-116 [consulta: 30-09-2024]. Disponible en: https://www.architecturalrecord.com/ext/resources/archives/backissues/1949-11.pdf.

The Building Outlook -1946 a Crucial Year- A Review and a Forecast. En: American Builder [en línea]. Chicago: Simmons-Boardman Pub. Corp., enero 1946, vol. 68, n.º 1, pp. 60-63 [consulta: 30-09-2024]. Disponible en: https://usmodernist.org/AB/AB-1946-01.pdf.

The Navy builds. En: The Architectural Forum [en línea]. Nueva York: Time Inc., agosto 1948, vol. 87, n.º 2, pp. 121-135 [consulta: 30-09-2024]. Disponible en: https://usmodernist.org/AF/AF-1948-02.pdf.

Wachsmann, Konrad. Mobilar structures. En: Progressive Architecture [en línea]. Nueva York: Reinhold Pub. Corp., marzo 1946, vol. 27, n.º 3, pp. 87-99 [consulta: 30-09-2024]. Disponible en: https://usmodernist.org/PA/PA-1946-03.pdf.

WANK, Roland A. The Architect’s opportunities in factory design. En: Architectural Record [en línea]. Nueva York: F. W. Dodge Corp., agosto 1947, vol. 102, n.º 2, pp. 86-90 [consulta: 30-09-2024]. Disponible en: https://www.architecturalrecord.com/ext/resources/archives/backissues/1947-08.pdf.

What are essential buildings? En: Architectural Record [en línea]. Nueva York: F. W. Dodge Corp., junio 1946, vol. 99, n.º 6, p. 71 [consulta: 30-09-2024]. Disponible en: https://www.architecturalrecord.com/ext/resources/archives/backissues/1946-06.pdf.

What is a Typical Architectural Organization? En: Progressive Architecture [en línea]. Nueva York: Reinhold Pub. Corp., diciembre 1950, vol. 31, n.º 12, pp. 49-50 [consulta: 30-09-2024]. Disponible en: https://usmodernist.org/PA/PA-1950-12.pdf.


[1] Panigyrakis, Phoebus Ilias. Architectural record 1942-1967: chapters from the history of an architectural magazine. Delft: TU Delft, 2020, p. 55. ISBN 9789463663014.

[2] JOHNSON, P. C. Preface. En: Hitchcock, HR. y A. Drexler. Built in USA: Post-war Architecture. New York: Museum of Modern Art, 1952, p. 9.

[3] Ibíd., p. 16.

[4] Hitchcock, Henry-Russell. Architecture. Nineteenth and Twentieth Centuries. Baltimore: Penguin Books, 1958, pp. 417-418.

[5] Ibíd., p. 418.

[6] Salvo referencias indirectas a SOM, Saarinen y Albert Kahn, o algunas obras de los ‘maestros’.

[7] Burchard, John; Bush-Brown, Albert. La Arquitectura en los Estados Unidos. Su influencia social y cultural. México D.F.: Editorial de Letras, 1963, pp. 546, 598.

[8] The Building Outlook -1946 a Crucial Year- A Review and a Forecast. En: American Builder [en línea]. Chicago: Simmons-Boardman Pub. Corp., enero 1946, vol. 68, n.º 1, pp. 60-63 [consulta: 30-09-2024]. Disponible en: https://usmodernist.org/AB/AB-1946-01.pdf.

[9] Burchard, John; Bush-Brown, Albert. La Arquitectura en los Estados Unidos. Su influencia social y cultural. México D.F.: Editorial de Letras, 1963, p. 517.

[10] BAYER, Herman B. The construction Picture, 1944 and 1945. En: American Builder [en línea]. Chicago: Simmons-Boardman Pub. Corp., enero 1945, vol. 67, n.º 1, pp. 112-113 [consulta: 30-09-2024]. Disponible en: https://usmodernist.org/AB/AB-1945-01.pdf.

[11] DAVIDSON, Joel. Building for War, Preparing for Peace: World War II and the Military-Industrial Complex. En: ALBRETCH, Donald, ed. World War II and the American dream: How Wartime Building Changed a Nation. Washington D.C.: National Building Museum & MIT Press, 1995, p. 218.

[12] Shortage of Major Building Materials Was 1946 Construction Bottleneck. En: American Builder [en línea]. Chicago: Simmons-Boardman Pub. Corp., enero 1947, vol. 69 n.º 1, pp. 64-65 [consulta: 30-09-2024]. Disponible en: https://usmodernist.org/AB/AB-1947-01.pdf.

[13] La Oficina de Administración de Precios (OPA) se creó mediante la Orden Ejecutiva 8875 de 28 de agosto de 1941. Sus funciones eran controlar los precios y los alquileres tras el estallido de la segunda guerra mundial.

[14] Building Month. En: The Architectural Forum [en línea]. Nueva York: Time Inc., mayo 1946, vol. 84, n.º 5, p. 5. [consulta: 30-09-2024]. Disponible en: https://usmodernist.org/AF/AF-1946-05.pdf.

[15] Nombre con el que era conocido el Veterans Emergency Housing Program (VEHP) promovido por Wilson Wyatt y puesto en funcionamiento en diciembre de 1945.

[16] What are essential buildings? En: Architectural Record [en línea]. Nueva York: F. W. Dodge Corp., junio 1946, vol. 99, n.º 6, p. 71 [consulta: 30-09-2024]. Disponible en: https://www.architecturalrecord.com/ext/resources/archives/backissues/1946-06.pdf.

[17] La Civilian Production Administration fue una agencia estatal creada en octubre de 1945 para sustituir a la War Production Board. Se función era promover la transición de la producción industrial de guerra a una producción en tiempo de paz libre de controles gubernamentales.

[18] Building Month. En: The Architectural Forum [en línea]. Nueva York: Time Inc., abril 1948, vol. 88, n.º 4, p. 9 [consulta: 30-09-2024]. Disponible en: https://usmodernist.org/AF/AF-1948-04.pdf.

[19] Building Month. En: The Architectural Forum [en línea]. Nueva York: Time Inc., septiembre 1948, vol. 89, n.º 3, p. 11 [consulta: 30-09-2024]. Disponible en: https://usmodernist.org/AF/AF-1948-03.pdf.

[20] Ídem.

[21] News. En: The Architectural Forum [en línea]. Nueva York: Time Inc., julio 1949, vol. 91, n.º 1, p. 9 [consulta: 30-09-2024]. Disponible en: https://usmodernist.org/AF/AF-1949-01.pdf.

[22] News. En: The Architectural Forum [en línea]. Nueva York: Time Inc., diciembre 1949, vol. 91, n.º 6, p. 7 [consulta: 30-09-2024]. Disponible en: https://usmodernist.org/AF/AF-1949-06.pdf.

[23] HOLDEN, Thomas S. The Three Phases of Postwar Recovery. En: Architectural Record [en línea]. Nueva York: F.W. Dodge Corp., agosto 1949, vol. 106, n.º 2, pp. 94-97 [consulta: 30-09-2024]. Disponible en: https://www.architecturalrecord.com/ext/resources/archives/backissues/1949-08.pdf.

[24] Para más información ver: COHEN, Jean-Louis. Architecture in Uniform. Designing and Building for the Second World War. Montreal: CCA, 2011, pp. 86-99. ISBN 978-2-75410-530-9.

[25] Building in One Package. Part 1. En: The Architectural Forum [en línea]. Nueva York: Time Inc., enero 1945, vol. 82, n.º 1, pp. 93-112 [consulta: 30-09-2024]. Disponible en: https://usmodernist.org/AF/AF-1945-01.pdf. Building in One Package. Part 2. En: The Architectural Forum [en línea]. Nueva York: Time Inc., febrero 1945, vol. 82, n.º 2, pp. 113-128 [consulta: 30-09-2024]. Disponible en: https://usmodernist.org/AF/AF-1945-02.pdf.

[26] A measure of modern efficiency. En: Architectural Record [en línea]. Nueva York: F. W. Dodge Corp., diciembre 1946, vol. 100, n.º 6, pp. 102-105 [consulta: 30-09-2024]. Disponible en: https://www.architecturalrecord.com/ext/resources/archives/backissues/1946-12.pdf.

[27] Industrial Plant. En: Progressive Architecture [en línea]. Nueva York: Reinhold Pub. Corp., diciembre 1946, vol. 27, n.º 12, pp. 40-49 [consulta: 30-09-2024]. Disponible en: https://usmodernist.org/PA/PA-1946-12.pdf.

[28] Designed for dust and germ control. En: Architectural Record [en línea]. Nueva York: F. W. Dodge Corp., agosto 1947, vol. 102, n.º 2, pp. 100-102 [consulta: 30-09-2024]. Disponible en: https://www.architecturalrecord.com/ext/resources/archives/backissues/1947-08.pdf.

[29] New plant to relieve a nation’s headaches. En: Architectural Record [en línea]. Nueva York: F. W. Dodge Corp., agosto 1948, vol. 104, n.º 2, pp. 124-127 [consulta: 30-09-2024]. Disponible en: https://www.architecturalrecord.com/ext/resources/archives/backissues/1948-08.pdf.

[30] Fast Construction for Fast Production. En: Architectural Record [en línea]. Nueva York: F. W. Dodge Corp., febrero 1945, vol. 97, n.º 2, pp. 66-73 [consulta: 30-09-2024]. Disponible en: https://www.architecturalrecord.com/ext/resources/archives/backissues/1945-02.pdf.

[31] Diesel engine plant. En: Progressive Architecture [en línea]. Nueva York: Reinhold Pub. Corp., marzo 1945, vol. 26, n.º 3, pp. 79-84 [consulta: 30-09-2024]. Disponible en: https://usmodernist.org/PA/PA-1945-3.pdf.

[32] Clothing Plant. En: The Architectural Forum [en línea]. Nueva York: Time Inc., abril 1947, vol. 86, n.º 4, pp. 118-119 [consulta: 30-09-2024]. Disponible en: https://usmodernist.org/AF/AF-1947-04.pdf.

[33] Mammoth Automobile Factory. En: Architectural Record [en línea]. Nueva York: F. W. Dodge Corp., agosto 1948, vol. 104, n.º 2 , pp. 112-117 [consulta: 30-09-2024]. Disponible en: https://www.architecturalrecord.com/ext/resources/archives/backissues/1948-08.pdf.

[34] Assembly plant. En: Progressive Architecture [en línea]. Nueva York: Reinhold Pub. Corp., agosto 1948, vol. 31, n.º 2, pp. 52-56 [consulta: 30-09-2024]. Disponible en: https://usmodernist.org/PA/PA-1948-02.pdf.

[35] Creighton, Thomas A. Pearl Harbour to Nagasaki. A review of Architectural progress during the war years. En: Progressive Architecture Architecture [en línea]. Nueva York: Reinhold Pub. Corp., enero 1946, vol. 27, n.º 1, pp. 42-93 [consulta: 30-09-2024]. Disponible en: https://usmodernist.org/PA/PA-1946-01.pdf.

[36] The Navy builds. En: The Architectural Forum [en línea]. Nueva York: Time Inc., marzo 1946, vol. 84, n.º 3, pp. 121-135 [consulta: 30-09-2024]. Disponible en: https://usmodernist.org/AF/AF-1946-03.pdf.

[37] Albert Kahn, Ass. Arch. & Eng. The Design of Factories Today. En: Architectural Record [en línea]. Nueva York: F. W. Dodge Corp., noviembre 1945, vol. 98, n.º 5, pp. 120-138 [consulta: 30-09-2024]. Disponible en: https://www.architecturalrecord.com/ext/resources/archives/backissues/1945-11.pdf.

[38] Miehls, George H. Trends in industrial plat design. En: Architectural Record [en línea]. Nueva York: F. W. Dodge Corp., diciembre 1946, vol. 100, n.º 6, pp. 96-101 Disponible en: https://www.architecturalrecord.com/ext/resources/archives/backissues/1946-12.pdf.

[39] Wachsmann, Konrad. Mobilar structures. En: Progressive Architecture [en línea]. Nueva York: Reinhold Pub. Corp., marzo 1946, vol. 27, n.º 3, pp. 87-99 [consulta: 30-09-2024]. Disponible en: https://usmodernist.org/PA/PA-1946-03.pdf.

[40] WANK, Roland A. The Architect’s opportunities in factory design. En: Architectural Record [en línea]. Nueva York: F. W. Dodge Corp., agosto 1947, vol. 102, n.º 2, pp. 86-90 [consulta: 30-09-2024]. Disponible en: https://www.architecturalrecord.com/ext/resources/archives/backissues/1947-08.pdf.

[41] Economical steel framing details. En: Architectural Record [en línea]. Nueva York: F. W. Dodge Corp., agosto 1947, vol. 102, n.º 2, pp. 115-121 [consulta: 30-09-2024]. Disponible en: https://www.architecturalrecord.com/ext/resources/archives/backissues/1947-08.pdf.

[42] Bogner, Walter F. Industrial plants - A Harvard research Project. En: Architectural Record [en línea]. Nueva York: F. W. Dodge Corp., agosto 1947, vol. 102, n.º 2, pp. 103-114 [consulta: 30-09-2024]. Disponible en: https://www.architecturalrecord.com/ext/resources/archives/backissues/1947-08.pdf.

[43] An Enlightened look at a factory. En: Architectural Record [en línea]. Nueva York: F. W. Dodge Corp., agosto 1948, vol. 104 nº2, pp. 108-111 [consulta: 30-09-2024]. Disponible en: https://www.architecturalrecord.com/ext/resources/archives/backissues/1948-08.pdf.

[44] Ídem.

[45] Ellsworth, Julian. Functional Color in Industrial Buildings. En: Architectural Record [en línea]. Nueva York: F.W. Dodge Corp., agosto 1948, vol. 104, n.º 2, pp. 118-123 [consulta: 30-09-2024]. Disponible en: https://www.architecturalrecord.com/ext/resources/archives/backissues/1948-08.pdf.

[46] Forge and Tool Factory. En: The Architectural Forum [en línea]. Nueva York: Time Inc., agosto 1948, vol. 87, n.º 2, pp. 121-135 [consulta: 30-09-2024]. Disponible en: https://usmodernist.org/AF/AF-1948-02.pdf.

[47] Midwest Bab-O Plant. En: The Architectural Forum [en línea]. Nueva York: Time Inc., diciembre 1947, vol. 87, n.º 6, pp. 61-66 [consulta: 30-09-2024]. Disponible en: https://usmodernist.org/AF/AF-1947-06.pdf.

[48] Industrial Buildings. En: The Architectural Forum [en línea]. Nueva York: Time Inc., agosto 1948, vol. 89, n.º 2, pp. 90-100 [consulta: 30-09-2024]. Disponible en: https://usmodernist.org/AF/AF-1948-02.pdf.

[49] Industrial Buildings. En: Progressive Architecture [en línea]. Nueva York: Reinhold Pub. Corp., agosto 1948, vol. 29, n.º 3, pp. 47-66 [consulta: 30-09-2024]. Disponible en: https://usmodernist.org/PA/PA-1948-03.pdf.

[50] Annual Progressive Architecture Awards. En: Progressive Architecture [en línea]. Nueva York: Reinhold Pub. Corp., junio 1949, vol. 30, n.º 6, pp. 43-49 [consulta: 30-09-2024]. Disponible en: https://usmodernist.org/PA/PA-1949-06.pdf.

[51] Architecture meets machinery and likes it. En: Architectural Record [en línea]. Nueva York: F. W. Dodge Corp., noviembre 1949, vol. 106, n.º 5, pp. 91-108 [consulta: 30-09-2024]. Disponible en: https://www.architecturalrecord.com/ext/resources/archives/backissues/1949-11.pdf.

[52] Bird, Eric L. Postwar factory construction in England. En: Architectural Record [en línea]. Nueva York: F. W. Dodge Corp., noviembre 1949, vol. 106, n.º 5, pp. 120-121 [consulta: 30-09-2024]. Disponible en: https://www.architecturalrecord.com/ext/resources/archives/backissues/1949-11.pdf.

[53] Stowell, Kenneth K. The designing of industrial buildings. En: Architectural Record [en línea]. Nueva York: F. W. Dodge Corp., noviembre 1949, vol. 106, n.º 5, pp. 109-116 [consulta: 30-09-2024]. Disponible en: https://www.architecturalrecord.com/ext/resources/archives/backissues/1949-11.pdf.

[54] Industrial group on the campus plan. En: Architectural Record [en línea]. Nueva York: F. W. Dodge Corp., noviembre 1945, vol. 98, n.º 5, pp. 116-117 [consulta: 30-09-2024]. Disponible en: https://www.architecturalrecord.com/ext/resources/archives/backissues/1945-11.pdf.

[55] General Motors Technical Center to unite science with its application. En: Architectural Record [en línea]. Nueva York: F. W. Dodge Corp., noviembre 1945, vol. 98, n.º 5, pp. 98-103 [consulta: 30-09-2024]. Disponible en: https://www.architecturalrecord.com/ext/resources/archives/backissues/1945-11.pdf.

[56] Flood-free Industrial Buildings. En: The Architectural Forum [en línea]. Nueva York: Time Inc., mayo 1949, vol. 90, n.º 5, pp. 102-105 [consulta: 30-09-2024]. Disponible en: https://usmodernist.org/AF/AF-1949-05.pdf.

[57] What is a Typical Architectural Organization? En: Progressive Architecture [en línea]. Nueva York: Reinhold Pub. Corp., diciembre 1950, vol. 31, n.º 12, pp. 49-50 [consulta: 30-09-2024]. Disponible en: https://usmodernist.org/PA/PA-1950-12.pdf.